|
|
|
| Larry Stein Oklahoma County Assessor (405) 713-1200 - Public Access System |
|
|
|
|
|
|
| Real Property Display - Screen Produced 4/1/2026 7:44:49 PM | ||||
|---|---|---|---|---|
| Account: R052504950 | Type: Residential | Location: |
3109 NW 32ND ST |
|
| Building Name/Occupant: |
|
OKLAHOMA CITY |
||
| Owner Name 1: | SFR OWNER I LLC |
Parcel PIN#: |
2893-05-250-4950 |
|
| Owner Name 2: | 1/4 section #: |
2893 |
||
| Owner Name 3: | Parent Acct: |
|
||
| Billing Address: | PO BOX 130 | Tax District: |
|
|
| City, State, Zip | PORTSMOUTH, NH 03802-0069 | School System: |
Oklahoma City #89 |
|
|
Country: (If noted) |
Land Size: |
0.1354 Acres |
||
|
Land Value: 14,160 |
|
|||
|
Sect 24-T12N-R4W Qtr NE |
LYONS WILL ROGERS PK
Block
004
Lot
048
|
|||
| Full Legal Description: LYONS WILL ROGERS PK 004 048 |
| Photo & Sketch (if available) | Comp Sales (ordered by relevancy) |
|
||||||||||||||||||
|
||||||||||||||||||||
| Value History (*The County Treasurer 405-713-1300 posts & collects actual tax amounts. Contact information HERE) | |||||||||||||
|---|---|---|---|---|---|---|---|---|---|---|---|---|---|
| Year | Market Value | Taxable Mkt Value | Gross Assessed | Exemption | Net Assessed | Millage | Est. Tax | Tax Savings | |||||
|
2026 |
118,500 |
118,500 |
13,035 |
0 |
13,035 |
122.90 |
$1,602 |
$0 |
|||||
|
2025 |
118,000 |
87,104 |
9,581 |
0 |
9,581 |
122.90 |
$1,178 |
$418 |
|||||
|
2024 |
112,000 |
82,957 |
9,124 |
0 |
9,124 |
123.89 |
$1,131 |
$396 |
|||||
|
2023 |
102,500 |
79,007 |
8,689 |
0 |
8,689 |
122.82 |
$1,067 |
$317 |
|||||
|
2022 |
84,500 |
75,245 |
8,276 |
0 |
8,276 |
117.63 |
$974 |
$120 |
|||||
| Property Account Status/Adjustments/Exemptions | ||||||
|---|---|---|---|---|---|---|
| Account # | Exemption Description | Amount | ||||
| No adjustment/exemption records returned. | ||||||
| Property Deed Transaction History (Recorded in the County Clerk's Office) | ||||||||||
|---|---|---|---|---|---|---|---|---|---|---|
| Date | Type | Book | Page | Price | Grantor | Grantee | ||||
|
9/26/2025 |
|
Deeds |
$110,000 |
BROWN DALE A TRS |
SFR OWNER I LLC |
|||||
|
5/14/2019 |
|
Hmstd Off & |
$0 |
BROWN DALE A |
BROWN DALE A TRS |
|||||
|
12/20/2016 |
|
Deeds |
$68,000 |
SELECT SOLUTIONS LLC |
BROWN DALE A |
|||||
|
9/7/2011 |
|
Deeds |
$18,000 |
BLALOCK NANCY |
SELECT SOLUTIONS LLC |
|||||
|
11/25/1992 |
|
Historical |
$15,000 |
KAPLAN JERRY LEO TRS |
BLALOCK NANCY |
|||||
| Last Mailed Notice of Value (N.O.V.) Information/History | ||||||||
|---|---|---|---|---|---|---|---|---|
| Year | Date | Market Value | Taxable Market Value | Gross Assessed | Exemption | Net Assessed | ||
|
2026 |
02/23/2026 |
118,500 |
118,500 |
13,035 |
0 |
13,035 |
||
|
2025 |
02/14/2025 |
118,000 |
87,104 |
9,581 |
0 |
9,581 |
||
|
2024 |
02/13/2024 |
112,000 |
82,957 |
9,124 |
0 |
9,124 |
||
|
2023 |
02/14/2023 |
102,500 |
79,007 |
8,689 |
0 |
8,689 |
||
|
2022 |
03/15/2022 |
84,500 |
75,245 |
8,276 |
0 |
8,276 |
||
| Property Building Permit History | |||||||||||
|---|---|---|---|---|---|---|---|---|---|---|---|
| Issued | Permit # | Provided by | Bldg # | Description | Est Construction Cost | Status | |||||
| No Building Permit records returned. | |||||||||||
| Click button on building number to access detailed information: | ||||||
|---|---|---|---|---|---|---|
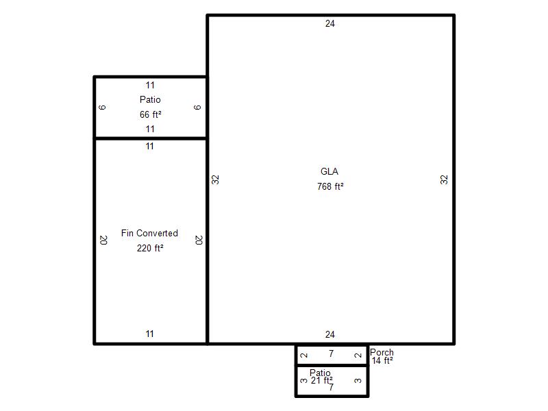
| Bldg # | Vacant/Improved Land | Bldg Description | Year Built | SqFt | # Stories | |
|
1 |
Improved |
Ranch 1 Story |
1948 |
768 |
1 Stories |
|