|
|
|
| Larry Stein Oklahoma County Assessor (405) 713-1200 - Public Access System |
|
|
|
|
|
|
| Real Property Display - Screen Produced 3/13/2026 9:07:23 AM | ||||
|---|---|---|---|---|
| Account: R150834205 | Type: Residential | Location: |
4202 NOBLE DR |
|
| Building Name/Occupant: |
|
DEL CITY |
||
| Owner Name 1: | CERVANTES SHARIK |
Parcel PIN#: |
1420-15-083-4205 |
|
| Owner Name 2: | CERVANTES SARAI | 1/4 section #: |
1420 |
|
| Owner Name 3: | Parent Acct: |
|
||
| Billing Address: | 4202 NOBLE DR | Tax District: |
|
|
| City, State, Zip | DEL CITY, OK 73115 | School System: |
Mid-Del #52 |
|
|
Country: (If noted) |
Land Size: |
0.1894 Acres |
||
|
Land Value: 27,017 |
|
|||
|
Sect 5-T11N-R2W Qtr NW |
UNPLTD PT SEC 05 11N 2W
Block
000
Lot
000
|
|||
| Full Legal Description: UNPLTD PT SEC 05 11N 2W 000 000 PT NW4 SEC 5 11N 2W BEG 1090FT S & 163FT E OF NW/C OF NW4 TH E75FT S110FT W75FT N110FT TO BEG |
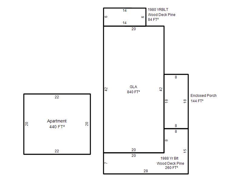
| Photo & Sketch (if available) | Comp Sales (ordered by relevancy) |
|
||||||||||||||||||
|
||||||||||||||||||||
| Value History (*The County Treasurer 405-713-1300 posts & collects actual tax amounts. Contact information HERE) | |||||||||||||
|---|---|---|---|---|---|---|---|---|---|---|---|---|---|
| Year | Market Value | Taxable Mkt Value | Gross Assessed | Exemption | Net Assessed | Millage | Est. Tax | Tax Savings | |||||
|
2025 |
163,500 |
153,825 |
16,920 |
0 |
16,920 |
114.72 |
$1,941 |
$122 |
|||||
|
2024 |
146,500 |
146,500 |
16,115 |
0 |
16,115 |
117.21 |
$1,889 |
$0 |
|||||
|
2023 |
77,000 |
60,196 |
6,621 |
0 |
6,621 |
112.46 |
$745 |
$208 |
|||||
|
2022 |
70,000 |
57,330 |
6,306 |
0 |
6,306 |
110.76 |
$698 |
$154 |
|||||
|
2021 |
58,000 |
54,600 |
6,006 |
0 |
6,006 |
114.70 |
$689 |
$43 |
|||||
| Property Account Status/Adjustments/Exemptions | ||
|---|---|---|
| Account # | Exemption Description | Amount |
|
R150834205 |
5% Capped Account |
0 |
| Property Deed Transaction History (Recorded in the County Clerk's Office) | |||||||
|---|---|---|---|---|---|---|---|
| Date | Type | Book | Page | Price | Grantor | Grantee | |
|
5/5/2023 |
|
Deeds |
$135,000 |
HOMES INVESTMENT & GENERAL CONSTRUCTION LLC |
CERVANTES SHARIK |
||
|
9/24/2019 |
|
Deeds |
$36,500 |
LEMMONS MANDY MICHELLE |
HOMES INVESTMENT & GENERAL CONSTRUCTION LLC |
||
|
9/17/2019 |
|
Hmstd Off & |
$0 |
STAGGS ROBERT WADE |
LEMMONS MANDY MICHELLE |
||
|
7/1/1979 |
|
Historical |
$0 |
|
STAGGS ROBERT WADE |
||
| Last Mailed Notice of Value (N.O.V.) Information/History | ||||||||
|---|---|---|---|---|---|---|---|---|
| Year | Date | Market Value | Taxable Market Value | Gross Assessed | Exemption | Net Assessed | ||
|
2026 |
02/06/2026 |
154,500 |
154,500 |
16,995 |
0 |
16,995 |
||
|
2025 |
01/31/2025 |
163,500 |
153,825 |
16,920 |
0 |
16,920 |
||
|
2024 |
01/22/2024 |
146,500 |
146,500 |
16,115 |
0 |
16,115 |
||
|
2023 |
01/23/2023 |
77,000 |
60,196 |
6,621 |
0 |
6,621 |
||
|
2022 |
02/22/2022 |
70,000 |
57,330 |
6,306 |
0 |
6,306 |
||
| Property Building Permit History | |||||||||||
|---|---|---|---|---|---|---|---|---|---|---|---|
| Issued | Permit # | Provided by | Bldg # | Description | Est Construction Cost | Status | |||||
| No Building Permit records returned. | |||||||||||
| Click button on building number to access detailed information: | ||||||
|---|---|---|---|---|---|---|
| Bldg # | Vacant/Improved Land | Bldg Description | Year Built | SqFt | # Stories | |
|
1 |
Improved |
Ranch 1 Story |
1940 |
840 |
1 Stories |
|