|
|
|
| Larry Stein Oklahoma County Assessor (405) 713-1200 - Public Access System |
|
|
|
|
|
|
| Real Property Display - Screen Produced 4/3/2026 2:37:48 PM | ||||
|---|---|---|---|---|
| Account: R052511930 | Type: Residential | Location: |
3621 N DREXEL BLVD |
|
| Building Name/Occupant: |
|
OKLAHOMA CITY |
||
| Owner Name 1: | SHAHAB RIZKI |
Parcel PIN#: |
2893-05-251-1930 |
|
| Owner Name 2: | 1/4 section #: |
2893 |
||
| Owner Name 3: | Parent Acct: |
|
||
| Billing Address: | 964 TERLINGUA CREEK DR | Tax District: |
|
|
| City, State, Zip | CONROE, TX 77304 | School System: |
Oklahoma City #89 |
|
|
Country: (If noted) |
UNITED STATES |
Land Size: |
0.1621 Acres |
|
|
Land Value: 23,305 |
|
|||
|
Sect 24-T12N-R4W Qtr NE |
MORRIS WILL ROGER PARK
Block
010
Lot
000
|
|||
| Full Legal Description: MORRIS WILL ROGER PARK 010 000 S1 1/2FT OF LOT 4 & LOT 5 EX S1 1/2FT |
| Photo & Sketch (if available) | Comp Sales (ordered by relevancy) |
|
||||||||||||||||||
|
||||||||||||||||||||
| Value History (*The County Treasurer 405-713-1300 posts & collects actual tax amounts. Contact information HERE) | |||||||||||||
|---|---|---|---|---|---|---|---|---|---|---|---|---|---|
| Year | Market Value | Taxable Mkt Value | Gross Assessed | Exemption | Net Assessed | Millage | Est. Tax | Tax Savings | |||||
|
2026 |
336,500 |
331,080 |
36,418 |
0 |
36,418 |
122.90 |
$4,476 |
$73 |
|||||
|
2025 |
343,000 |
315,315 |
34,684 |
0 |
34,684 |
122.90 |
$4,263 |
$374 |
|||||
|
2024 |
338,000 |
300,300 |
33,033 |
0 |
33,033 |
123.89 |
$4,092 |
$514 |
|||||
|
2023 |
286,000 |
286,000 |
31,460 |
0 |
31,460 |
122.82 |
$3,864 |
$0 |
|||||
|
2022 |
261,500 |
226,083 |
24,868 |
0 |
24,868 |
117.63 |
$2,925 |
$458 |
|||||
| Property Account Status/Adjustments/Exemptions | ||
|---|---|---|
| Account # | Exemption Description | Amount |
|
R052511930 |
5% Capped Account |
0 |
| Property Deed Transaction History (Recorded in the County Clerk's Office) | ||||||||||
|---|---|---|---|---|---|---|---|---|---|---|
| Date | Type | Book | Page | Price | Grantor | Grantee | ||||
|
7/7/2022 |
|
Deeds |
$285,000 |
DAMICO DAVID T |
SHAHAB RIZKI |
|||||
|
12/17/2013 |
|
Deeds |
$189,000 |
HARRIS LEMAN WAYNE |
DAMICO DAVID T |
|||||
|
4/10/2008 |
|
Deeds |
$192,500 |
DORN MAESEL |
HARRIS LEMAN WAYNE |
|||||
|
10/3/2007 |
|
Deeds |
$0 |
FINLEY TERRY LANE |
DORN MAESEL |
|||||
|
3/17/2003 |
|
Deeds |
$0 |
LABOUNTY MARY M |
DORN MAESEL |
|||||
| Last Mailed Notice of Value (N.O.V.) Information/History | ||||||||
|---|---|---|---|---|---|---|---|---|
| Year | Date | Market Value | Taxable Market Value | Gross Assessed | Exemption | Net Assessed | ||
|
2026 |
02/23/2026 |
336,500 |
331,080 |
36,418 |
0 |
36,418 |
||
|
2025 |
02/14/2025 |
343,000 |
315,315 |
34,684 |
0 |
34,684 |
||
|
2024 |
02/13/2024 |
338,000 |
300,300 |
33,033 |
0 |
33,033 |
||
|
2023 |
02/14/2023 |
286,000 |
286,000 |
31,460 |
0 |
31,460 |
||
|
2022 |
03/15/2022 |
261,500 |
226,083 |
24,868 |
0 |
24,868 |
||
| Property Building Permit History | |||||||||||
|---|---|---|---|---|---|---|---|---|---|---|---|
| Issued | Permit # | Provided by | Bldg # | Description | Est Construction Cost | Status | |||||
| No Building Permit records returned. | |||||||||||
| Click button on building number to access detailed information: | ||||||
|---|---|---|---|---|---|---|
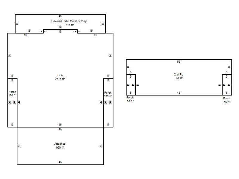
| Bldg # | Vacant/Improved Land | Bldg Description | Year Built | SqFt | # Stories | |
|
1 |
Improved |
Duplex One half Story |
1980 |
3,530 |
1.5 Stories |
|