|
|
|
| Larry Stein Oklahoma County Assessor (405) 713-1200 - Public Access System |
|
|
|
|
|
|
| Real Property Display - Screen Produced 3/13/2026 5:38:54 AM | ||||
|---|---|---|---|---|
| Account: R153261030 | Type: Residential | Location: |
4313 PRAIRIE LN |
|
| Building Name/Occupant: |
|
DEL CITY |
||
| Owner Name 1: | FRAZIER CRYSTAL D |
Parcel PIN#: |
1420-15-326-1030 |
|
| Owner Name 2: | 1/4 section #: |
1420 |
||
| Owner Name 3: | Parent Acct: |
|
||
| Billing Address: | 4313 PRAIRIE LN | Tax District: |
|
|
| City, State, Zip | DEL CITY, OK 73115-2935 | School System: |
Mid-Del #52 |
|
|
Country: (If noted) |
Land Size: |
0.1731 Acres |
||
|
Land Value: 28,585 |
|
|||
|
Sect 5-T11N-R2W Qtr NW |
DEL HAVEN
Block
001
Lot
004
|
|||
| Full Legal Description: DEL HAVEN 001 004 |
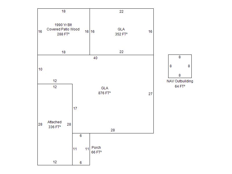
| Photo & Sketch (if available) | Comp Sales (ordered by relevancy) |
|
||||||||||||||||||
|
||||||||||||||||||||
| Value History (*The County Treasurer 405-713-1300 posts & collects actual tax amounts. Contact information HERE) | |||||||||||||
|---|---|---|---|---|---|---|---|---|---|---|---|---|---|
| Year | Market Value | Taxable Mkt Value | Gross Assessed | Exemption | Net Assessed | Millage | Est. Tax | Tax Savings | |||||
|
2025 |
143,000 |
76,709 |
8,437 |
1,000 |
7,437 |
114.72 |
$853 |
$951 |
|||||
|
2024 |
133,000 |
74,475 |
8,191 |
1,000 |
7,191 |
117.21 |
$843 |
$872 |
|||||
|
2023 |
117,500 |
72,306 |
7,953 |
1,000 |
6,953 |
112.46 |
$782 |
$672 |
|||||
|
2022 |
70,200 |
70,200 |
7,722 |
1,000 |
6,722 |
110.76 |
$745 |
$111 |
|||||
|
2021 |
70,200 |
70,200 |
7,722 |
1,000 |
6,722 |
114.70 |
$771 |
$115 |
|||||
| Property Account Status/Adjustments/Exemptions | ||
|---|---|---|
| Account # | Exemption Description | Amount |
|
R153261030 |
3% Cap Homestead |
0 |
|
R153261030 |
Homestead |
1,000 |
| Property Deed Transaction History (Recorded in the County Clerk's Office) | |||||||
|---|---|---|---|---|---|---|---|
| Date | Type | Book | Page | Price | Grantor | Grantee | |
|
8/27/2013 |
|
Deeds |
$67,500 |
GONZALES MELISSA A |
FRAZIER CRYSTAL D |
||
|
6/27/2002 |
|
Deeds |
$60,500 |
GONZALES ANTHONY R & DIANE |
GONZALES MELISSA A |
||
|
3/1/1981 |
|
Historical |
$0 |
|
GONZALES ANTHONY R & DIANE |
||
| Last Mailed Notice of Value (N.O.V.) Information/History | ||||||
|---|---|---|---|---|---|---|
| Year | Date | Market Value | Taxable Market Value | Gross Assessed | Exemption | Net Assessed |
|
2026 |
02/06/2026 |
145,000 |
79,010 |
8,690 |
1,000 |
7,690 |
|
2025 |
01/31/2025 |
143,000 |
76,709 |
8,437 |
1,000 |
7,437 |
|
2024 |
01/22/2024 |
133,000 |
74,475 |
8,191 |
1,000 |
7,191 |
|
2023 |
01/23/2023 |
117,500 |
72,306 |
7,953 |
1,000 |
6,953 |
| Property Building Permit History | |||||||||||
|---|---|---|---|---|---|---|---|---|---|---|---|
| Issued | Permit # | Provided by | Bldg # | Description | Est Construction Cost | Status | |||||
| No Building Permit records returned. | |||||||||||
| Click button on building number to access detailed information: | ||||||
|---|---|---|---|---|---|---|
| Bldg # | Vacant/Improved Land | Bldg Description | Year Built | SqFt | # Stories | |
|
1 |
Improved |
Ranch 1 Story |
1963 |
1,228 |
1 Stories |
|