|
|
|
| Larry Stein Oklahoma County Assessor (405) 713-1200 - Public Access System |
|
|
|
|
|
|
| Real Property Display - Screen Produced 3/13/2026 5:38:53 AM | ||||
|---|---|---|---|---|
| Account: R153261120 | Type: Residential | Location: |
4349 PRAIRIE LN |
|
| Building Name/Occupant: |
|
DEL CITY |
||
| Owner Name 1: | GREESON CAROLYN |
Parcel PIN#: |
1420-15-326-1120 |
|
| Owner Name 2: | 1/4 section #: |
1420 |
||
| Owner Name 3: | Parent Acct: |
|
||
| Billing Address: | 4349 PRAIRIE LN | Tax District: |
|
|
| City, State, Zip | DEL CITY, OK 73115-2935 | School System: |
Mid-Del #52 |
|
|
Country: (If noted) |
Land Size: |
0.1596 Acres |
||
|
Land Value: 28,585 |
|
|||
|
Sect 5-T11N-R2W Qtr NW |
DEL HAVEN
Block
001
Lot
013
|
|||
| Full Legal Description: DEL HAVEN 001 013 |
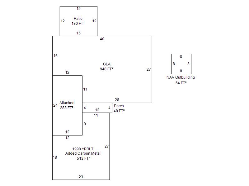
| Photo & Sketch (if available) | Comp Sales (ordered by relevancy) |
|
||||||||||||||||||
|
||||||||||||||||||||
| Value History (*The County Treasurer 405-713-1300 posts & collects actual tax amounts. Contact information HERE) | |||||||||||||
|---|---|---|---|---|---|---|---|---|---|---|---|---|---|
| Year | Market Value | Taxable Mkt Value | Gross Assessed | Exemption | Net Assessed | Millage | Est. Tax | Tax Savings | |||||
|
2025 |
128,500 |
85,205 |
9,371 |
1,000 |
8,371 |
114.72 |
$960 |
$661 |
|||||
|
2024 |
120,500 |
82,724 |
9,099 |
1,000 |
8,099 |
117.21 |
$949 |
$604 |
|||||
|
2023 |
105,500 |
80,315 |
8,834 |
1,000 |
7,834 |
112.46 |
$881 |
$424 |
|||||
|
2022 |
96,000 |
77,976 |
8,576 |
1,000 |
7,576 |
110.76 |
$839 |
$330 |
|||||
|
2021 |
82,000 |
75,705 |
8,327 |
1,000 |
7,327 |
114.70 |
$840 |
$194 |
|||||
| Property Account Status/Adjustments/Exemptions | ||
|---|---|---|
| Account # | Exemption Description | Amount |
|
R153261120 |
3% Cap Homestead |
0 |
|
R153261120 |
Homestead |
1,000 |
| Property Deed Transaction History (Recorded in the County Clerk's Office) | |||||||
|---|---|---|---|---|---|---|---|
| Date | Type | Book | Page | Price | Grantor | Grantee | |
|
2/4/1998 |
|
Historical |
$0 |
MAURER MICHAEL D |
GREESON CAROLYN |
||
|
1/6/1998 |
|
Historical |
$0 |
GREESON CAROLYN |
MAURER MICHAEL D |
||
|
12/18/1987 |
|
Historical |
$0 |
GREESON LARRY D & CAROLYN J |
GREESON CAROLYN |
||
|
11/11/1911 |
|
Historical |
$0 |
|
GREESON LARRY D & CAROLYN J |
||
| Last Mailed Notice of Value (N.O.V.) Information/History | ||||||||
|---|---|---|---|---|---|---|---|---|
| Year | Date | Market Value | Taxable Market Value | Gross Assessed | Exemption | Net Assessed | ||
|
2026 |
02/06/2026 |
129,500 |
87,761 |
9,653 |
1,000 |
8,653 |
||
|
2025 |
01/31/2025 |
128,500 |
85,205 |
9,371 |
1,000 |
8,371 |
||
|
2024 |
01/22/2024 |
120,500 |
82,724 |
9,099 |
1,000 |
8,099 |
||
|
2023 |
01/23/2023 |
105,500 |
80,315 |
8,834 |
1,000 |
7,834 |
||
|
2022 |
02/22/2022 |
96,000 |
77,976 |
8,576 |
1,000 |
7,576 |
||
| Property Building Permit History | |||||||||||
|---|---|---|---|---|---|---|---|---|---|---|---|
| Issued | Permit # | Provided by | Bldg # | Description | Est Construction Cost | Status | |||||
| No Building Permit records returned. | |||||||||||
| Click button on building number to access detailed information: | ||||||
|---|---|---|---|---|---|---|
| Bldg # | Vacant/Improved Land | Bldg Description | Year Built | SqFt | # Stories | |
|
1 |
Improved |
Ranch 1 Story |
1965 |
948 |
1 Stories |
|