|
|
|
| Larry Stein Oklahoma County Assessor (405) 713-1200 - Public Access System |
|
|
|
|
|
|
| Real Property Display - Screen Produced 3/13/2026 5:38:16 AM | ||||
|---|---|---|---|---|
| Account: R153261440 | Type: Residential | Location: |
4301 E FAIRVIEW ST |
|
| Building Name/Occupant: |
|
DEL CITY |
||
| Owner Name 1: | DD NGUYEN INVESTMENTS LLC |
Parcel PIN#: |
1420-15-326-1440 |
|
| Owner Name 2: | 1/4 section #: |
1420 |
||
| Owner Name 3: | Parent Acct: |
|
||
| Billing Address: | 13508 CASCATA STRADA | Tax District: |
|
|
| City, State, Zip | OKLAHOMA CITY , OK 73170 | School System: |
Mid-Del #52 |
|
|
Country: (If noted) |
Land Size: |
0.2089 Acres |
||
|
Land Value: 28,585 |
|
|||
|
Sect 5-T11N-R2W Qtr NW |
DEL HAVEN
Block
002
Lot
030
|
|||
| Full Legal Description: DEL HAVEN 002 030 |
| Photo & Sketch (if available) | Comp Sales (ordered by relevancy) |
|
||||||||||||||||||
|
||||||||||||||||||||
| Value History (*The County Treasurer 405-713-1300 posts & collects actual tax amounts. Contact information HERE) | |||||||||||||
|---|---|---|---|---|---|---|---|---|---|---|---|---|---|
| Year | Market Value | Taxable Mkt Value | Gross Assessed | Exemption | Net Assessed | Millage | Est. Tax | Tax Savings | |||||
|
2025 |
143,000 |
134,863 |
14,834 |
0 |
14,834 |
114.72 |
$1,702 |
$103 |
|||||
|
2024 |
140,000 |
128,441 |
14,127 |
0 |
14,127 |
117.21 |
$1,656 |
$149 |
|||||
|
2023 |
127,500 |
122,325 |
13,455 |
0 |
13,455 |
112.46 |
$1,513 |
$64 |
|||||
|
2022 |
116,500 |
116,500 |
12,815 |
0 |
12,815 |
110.76 |
$1,419 |
$0 |
|||||
|
2021 |
99,000 |
95,025 |
10,452 |
0 |
10,452 |
114.70 |
$1,199 |
$50 |
|||||
| Property Account Status/Adjustments/Exemptions | ||
|---|---|---|
| Account # | Exemption Description | Amount |
|
R153261440 |
5% Capped Account |
0 |
| Property Deed Transaction History (Recorded in the County Clerk's Office) | ||||||||||
|---|---|---|---|---|---|---|---|---|---|---|
| Date | Type | Book | Page | Price | Grantor | Grantee | ||||
|
7/21/2021 |
|
Deeds |
$111,000 |
PETERSON GREGORY J & CONNIE S |
DD NGUYEN INVESTMENTS LLC |
|||||
|
10/3/2006 |
|
Deeds |
$89,500 |
CASEY JAMES WESLEY & MARY J |
PETERSON GREGORY J & CONNIE S |
|||||
|
11/2/2001 |
|
Deeds |
$0 |
CASEY JAMES WESLEY MAYFIELD MARY J |
CASEY JAMES WESLEY |
|||||
|
11/2/2001 |
|
Deeds |
$0 |
CASEY JAMES WESLEY |
CASEY JAMES WESLEY & MARY J |
|||||
|
5/10/1996 |
|
Historical |
$0 |
CASEY JAMES WESLEY |
CASEY JAMES WESLEY |
|||||
| Last Mailed Notice of Value (N.O.V.) Information/History | ||||||||
|---|---|---|---|---|---|---|---|---|
| Year | Date | Market Value | Taxable Market Value | Gross Assessed | Exemption | Net Assessed | ||
|
2026 |
02/06/2026 |
148,500 |
141,606 |
15,575 |
0 |
15,575 |
||
|
2025 |
01/31/2025 |
143,000 |
134,863 |
14,834 |
0 |
14,834 |
||
|
2024 |
01/22/2024 |
140,000 |
128,441 |
14,127 |
0 |
14,127 |
||
|
2023 |
01/23/2023 |
127,500 |
122,325 |
13,455 |
0 |
13,455 |
||
|
2022 |
02/22/2022 |
116,500 |
116,500 |
12,815 |
0 |
12,815 |
||
| Property Building Permit History | |||||||||||
|---|---|---|---|---|---|---|---|---|---|---|---|
| Issued | Permit # | Provided by | Bldg # | Description | Est Construction Cost | Status | |||||
| No Building Permit records returned. | |||||||||||
| Click button on building number to access detailed information: | ||||||
|---|---|---|---|---|---|---|
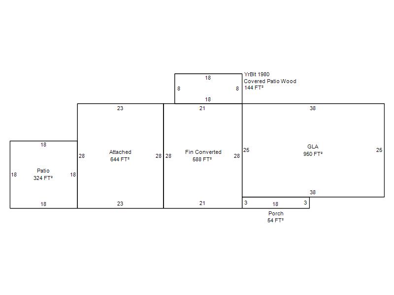
| Bldg # | Vacant/Improved Land | Bldg Description | Year Built | SqFt | # Stories | |
|
1 |
Improved |
Ranch 1 Story |
1964 |
950 |
1 Stories |
|