|
|
|
| Larry Stein Oklahoma County Assessor (405) 713-1200 - Public Access System |
|
|
|
|
|
|
| Real Property Display - Screen Produced 3/13/2026 5:38:53 AM | ||||
|---|---|---|---|---|
| Account: R153261790 | Type: Residential | Location: |
817 DEL HAVEN DR |
|
| Building Name/Occupant: |
|
DEL CITY |
||
| Owner Name 1: | ARAUJO FRANCISCO ATILANO |
Parcel PIN#: |
1420-15-326-1790 |
|
| Owner Name 2: | 1/4 section #: |
1420 |
||
| Owner Name 3: | Parent Acct: |
|
||
| Billing Address: | 817 DEL HAVEN DR | Tax District: |
|
|
| City, State, Zip | DEL CITY, OK 73115-2909 | School System: |
Mid-Del #52 |
|
|
Country: (If noted) |
Land Size: |
0.2208 Acres |
||
|
Land Value: 28,585 |
|
|||
|
Sect 5-T11N-R2W Qtr NW |
DEL HAVEN
Block
004
Lot
018
|
|||
| Full Legal Description: DEL HAVEN 004 018 |
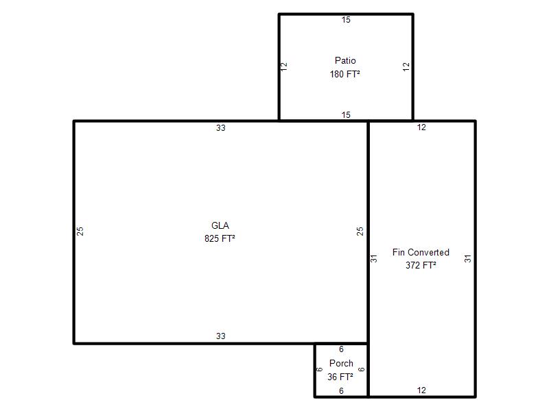
| Photo & Sketch (if available) | Comp Sales (ordered by relevancy) |
|
||||||||||||||||||
|
||||||||||||||||||||
| Value History (*The County Treasurer 405-713-1300 posts & collects actual tax amounts. Contact information HERE) | |||||||||||||
|---|---|---|---|---|---|---|---|---|---|---|---|---|---|
| Year | Market Value | Taxable Mkt Value | Gross Assessed | Exemption | Net Assessed | Millage | Est. Tax | Tax Savings | |||||
|
2025 |
121,500 |
82,306 |
9,052 |
1,000 |
8,052 |
114.72 |
$924 |
$609 |
|||||
|
2024 |
116,500 |
79,909 |
8,789 |
1,000 |
7,789 |
117.21 |
$913 |
$589 |
|||||
|
2023 |
102,500 |
77,582 |
8,533 |
1,000 |
7,533 |
112.46 |
$847 |
$421 |
|||||
|
2022 |
93,000 |
75,323 |
8,285 |
1,000 |
7,285 |
110.76 |
$807 |
$326 |
|||||
|
2021 |
79,000 |
73,130 |
8,044 |
1,000 |
7,044 |
114.70 |
$808 |
$189 |
|||||
| Property Account Status/Adjustments/Exemptions | ||
|---|---|---|
| Account # | Exemption Description | Amount |
|
R153261790 |
Homestead |
1,000 |
|
R153261790 |
3% Cap Homestead |
0 |
| Property Deed Transaction History (Recorded in the County Clerk's Office) | |||||||
|---|---|---|---|---|---|---|---|
| Date | Type | Book | Page | Price | Grantor | Grantee | |
|
9/29/2014 |
|
Deeds |
$0 |
LOPEZ SONIA ARAUJO FRANCISCO ATILANO |
ARAUJO FRANCISCO ATILANO |
||
|
2/15/2013 |
|
Deeds |
$0 |
LOPEZ SONIA |
LOPEZ SONIA ARAUJO FRANCISCO ATILANO |
||
|
5/23/2001 |
|
Deeds |
$50,000 |
ESTER MARIA |
LOPEZ SONIA |
||
|
11/18/1997 |
|
Historical |
$18,000 |
ALLEN MORRIS H JR & GWENDOLYN |
ESTER MARIA |
||
|
8/1/1976 |
|
Historical |
$0 |
|
ALLEN MORRIS H JR & GWENDOLYN |
||
| Last Mailed Notice of Value (N.O.V.) Information/History | ||||||||
|---|---|---|---|---|---|---|---|---|
| Year | Date | Market Value | Taxable Market Value | Gross Assessed | Exemption | Net Assessed | ||
|
2026 |
02/06/2026 |
123,500 |
84,775 |
9,324 |
1,000 |
8,324 |
||
|
2025 |
01/31/2025 |
121,500 |
82,306 |
9,052 |
1,000 |
8,052 |
||
|
2024 |
01/22/2024 |
116,500 |
79,909 |
8,789 |
1,000 |
7,789 |
||
|
2023 |
01/23/2023 |
102,500 |
77,582 |
8,533 |
1,000 |
7,533 |
||
|
2022 |
02/22/2022 |
93,000 |
75,323 |
8,285 |
1,000 |
7,285 |
||
| Property Building Permit History | |||||||||||
|---|---|---|---|---|---|---|---|---|---|---|---|
| Issued | Permit # | Provided by | Bldg # | Description | Est Construction Cost | Status | |||||
| No Building Permit records returned. | |||||||||||
| Click button on building number to access detailed information: | ||||||
|---|---|---|---|---|---|---|
| Bldg # | Vacant/Improved Land | Bldg Description | Year Built | SqFt | # Stories | |
|
1 |
Improved |
Ranch 1 Story |
1964 |
825 |
1 Stories |
|