|
|
|
| Larry Stein Oklahoma County Assessor (405) 713-1200 - Public Access System |
|
|
|
|
|
|
| Real Property Display - Screen Produced 3/24/2026 10:04:55 AM | ||||
|---|---|---|---|---|
| Account: R065265600 | Type: Residential | Location: |
3220 NW 18TH ST |
|
| Building Name/Occupant: |
|
OKLAHOMA CITY |
||
| Owner Name 1: | LAWLIS CLARKE DIANE |
Parcel PIN#: |
2897-06-526-5600 |
|
| Owner Name 2: | 1/4 section #: |
2897 |
||
| Owner Name 3: | Parent Acct: |
|
||
| Billing Address: | 3220 NW 18TH ST | Tax District: |
|
|
| City, State, Zip | OKLAHOMA CITY, OK 73107-3811 | School System: |
Oklahoma City #89 |
|
|
Country: (If noted) |
Land Size: |
0.3444 Acres |
||
|
Land Value: 75,000 |
|
|||
|
Sect 25-T12N-R4W Qtr NE |
LINWOOD PLACE AMENDED
Block
034
Lot
003
|
|||
| Full Legal Description: LINWOOD PLACE AMENDED 034 003 |
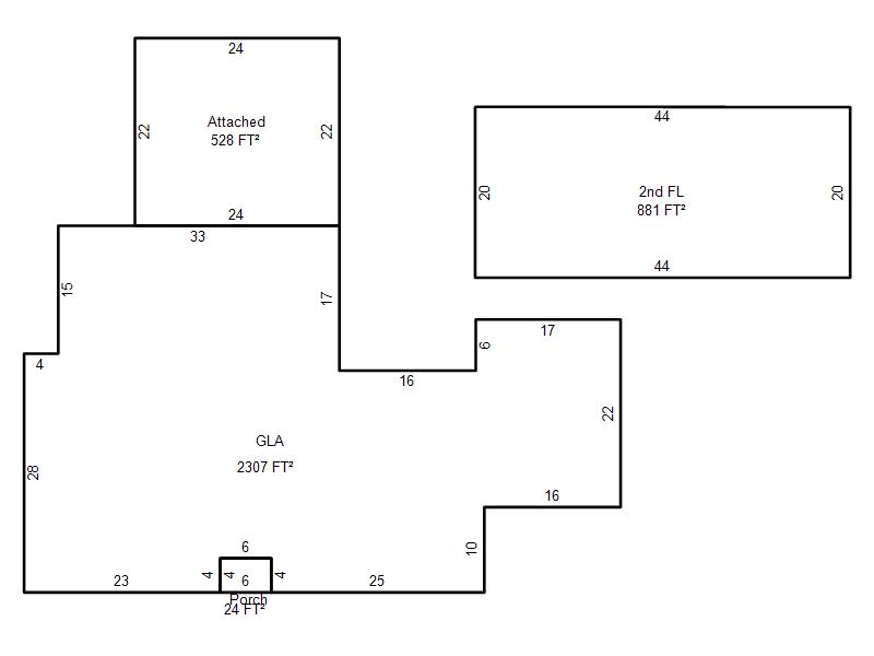
| Photo & Sketch (if available) | Comp Sales (ordered by relevancy) |
|
||||||||||||||||||
|
||||||||||||||||||||
| Value History (*The County Treasurer 405-713-1300 posts & collects actual tax amounts. Contact information HERE) | |||||||||||||
|---|---|---|---|---|---|---|---|---|---|---|---|---|---|
| Year | Market Value | Taxable Mkt Value | Gross Assessed | Exemption | Net Assessed | Millage | Est. Tax | Tax Savings | |||||
|
2025 |
445,500 |
407,996 |
44,879 |
1,000 |
43,879 |
122.90 |
$5,393 |
$630 |
|||||
|
2024 |
451,000 |
396,113 |
43,572 |
1,000 |
42,572 |
123.89 |
$5,274 |
$872 |
|||||
|
2023 |
420,500 |
384,576 |
42,303 |
1,000 |
41,303 |
122.82 |
$5,073 |
$608 |
|||||
|
2022 |
398,000 |
373,375 |
41,071 |
1,000 |
40,071 |
117.63 |
$4,714 |
$436 |
|||||
|
2021 |
362,500 |
362,500 |
39,875 |
1,000 |
38,875 |
117.70 |
$4,576 |
$118 |
|||||
| Property Account Status/Adjustments/Exemptions | ||
|---|---|---|
| Account # | Exemption Description | Amount |
|
R065265600 |
3% Cap Homestead |
0 |
|
R065265600 |
Homestead |
1,000 |
| Property Deed Transaction History (Recorded in the County Clerk's Office) | ||||||||||
|---|---|---|---|---|---|---|---|---|---|---|
| Date | Type | Book | Page | Price | Grantor | Grantee | ||||
|
10/2/2019 |
|
Deeds |
$0 |
CORDER LOY J TRS |
CORDER LOY J SUC TRS |
|||||
|
10/2/2019 |
|
Deeds |
$379,000 |
CORDER LOY J SUC TRS |
LAWLLS CLARKE DIANE |
|||||
|
10/2/2019 |
|
Deeds |
$0 |
CORDER LOY J REV TRUST |
LAWILS CLARKE DIANE |
|||||
|
10/7/2018 |
|
Deeds |
$0 |
LAWILS CLARKE DIANE |
LAWLIS CLARKE DIANE |
|||||
|
7/9/2018 |
|
Deeds |
$0 |
CORDER CLINTON N & LOY J TRS |
CORDER LOY J TRS |
|||||
| Last Mailed Notice of Value (N.O.V.) Information/History | ||||||||
|---|---|---|---|---|---|---|---|---|
| Year | Date | Market Value | Taxable Market Value | Gross Assessed | Exemption | Net Assessed | ||
|
2026 |
02/23/2026 |
432,500 |
420,235 |
46,225 |
1,000 |
45,225 |
||
|
2025 |
02/14/2025 |
445,500 |
407,996 |
44,879 |
1,000 |
43,879 |
||
|
2024 |
02/13/2024 |
451,000 |
396,113 |
43,572 |
1,000 |
42,572 |
||
|
2024 |
04/05/2024 |
451,000 |
396,113 |
43,572 |
1,000 |
42,572 |
||
|
2023 |
02/14/2023 |
420,500 |
384,576 |
42,303 |
1,000 |
41,303 |
||
| Property Building Permit History | |||||||||||
|---|---|---|---|---|---|---|---|---|---|---|---|
| Issued | Permit # | Provided by | Bldg # | Description | Est Construction Cost | Status | |||||
| No Building Permit records returned. | |||||||||||
| Click button on building number to access detailed information: | ||||||
|---|---|---|---|---|---|---|
| Bldg # | Vacant/Improved Land | Bldg Description | Year Built | SqFt | # Stories | |
|
1 |
Improved |
1½ Story Fin |
1954 |
3,188 |
1.5 Stories |
|