|
|
|
| Larry Stein Oklahoma County Assessor (405) 713-1200 - Public Access System |
|
|
|
|
|
|
| Real Property Display - Screen Produced 3/24/2026 10:02:54 AM | ||||
|---|---|---|---|---|
| Account: R065267200 | Type: Residential | Location: |
3141 NW 21ST ST |
|
| Building Name/Occupant: |
|
OKLAHOMA CITY |
||
| Owner Name 1: | BLACK RICHARD C |
Parcel PIN#: |
2897-06-526-7200 |
|
| Owner Name 2: | BLACK CATHRYN E | 1/4 section #: |
2897 |
|
| Owner Name 3: | Parent Acct: |
|
||
| Billing Address: | 3141 NW 21ST ST | Tax District: |
|
|
| City, State, Zip | OKLAHOMA CITY, OK 73107-3009 | School System: |
Oklahoma City #89 |
|
|
Country: (If noted) |
Land Size: |
0.1722 Acres |
||
|
Land Value: 37,500 |
|
|||
|
Sect 25-T12N-R4W Qtr NE |
LINWOOD PLACE AMENDED
Block
041
Lot
014
|
|||
| Full Legal Description: LINWOOD PLACE AMENDED 041 014 |
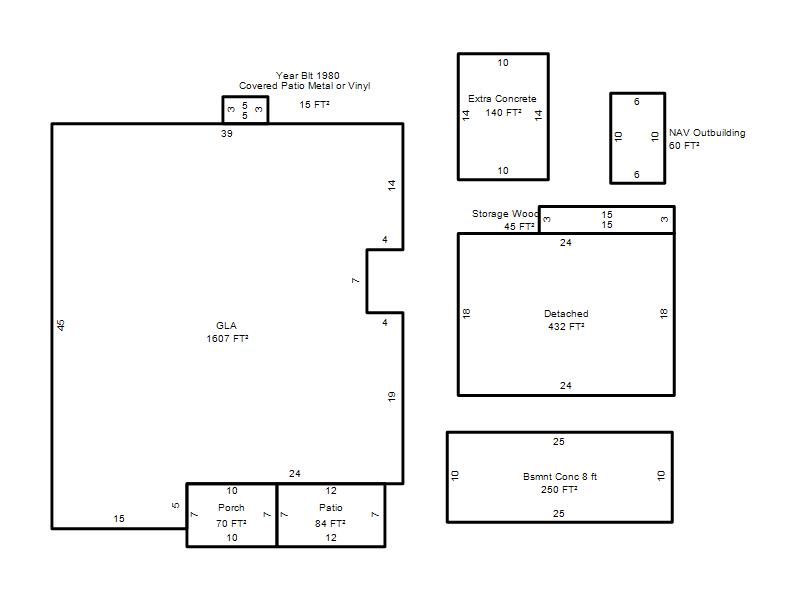
| Photo & Sketch (if available) | Comp Sales (ordered by relevancy) |
|
||||||||||||||||||
|
||||||||||||||||||||
| Value History (*The County Treasurer 405-713-1300 posts & collects actual tax amounts. Contact information HERE) | |||||||||||||
|---|---|---|---|---|---|---|---|---|---|---|---|---|---|
| Year | Market Value | Taxable Mkt Value | Gross Assessed | Exemption | Net Assessed | Millage | Est. Tax | Tax Savings | |||||
|
2025 |
362,000 |
344,754 |
37,922 |
1,000 |
36,922 |
122.90 |
$4,538 |
$356 |
|||||
|
2024 |
361,500 |
334,713 |
36,818 |
1,000 |
35,818 |
123.89 |
$4,438 |
$489 |
|||||
|
2023 |
339,500 |
324,965 |
35,746 |
1,000 |
34,746 |
122.82 |
$4,268 |
$319 |
|||||
|
2022 |
315,500 |
315,500 |
34,705 |
1,000 |
33,705 |
117.63 |
$3,965 |
$118 |
|||||
|
2021 |
174,000 |
154,756 |
17,022 |
1,000 |
16,022 |
117.70 |
$1,886 |
$367 |
|||||
| Property Account Status/Adjustments/Exemptions | ||
|---|---|---|
| Account # | Exemption Description | Amount |
|
R065267200 |
3% Cap Homestead |
0 |
|
R065267200 |
Homestead |
1,000 |
| Property Deed Transaction History (Recorded in the County Clerk's Office) | ||||||||||
|---|---|---|---|---|---|---|---|---|---|---|
| Date | Type | Book | Page | Price | Grantor | Grantee | ||||
|
8/6/2021 |
|
Deeds |
$298,000 |
PARKER HEATHER |
BLACK RICHARD C |
|||||
|
7/8/2016 |
|
Deeds |
$0 |
WILSON MINCHUN |
WILSON ALICE |
|||||
|
7/8/2016 |
|
Deeds |
$110,000 |
WILSON RONALD EDWARD |
PARKER HEATHER |
|||||
|
7/8/2014 |
|
Deeds |
$0 |
WILSON ALICE |
WILSON RONALD |
|||||
|
10/9/2003 |
|
Deeds |
$0 |
WILSON RONALD E |
WILSON ALICE |
|||||
| Last Mailed Notice of Value (N.O.V.) Information/History | ||||||||
|---|---|---|---|---|---|---|---|---|
| Year | Date | Market Value | Taxable Market Value | Gross Assessed | Exemption | Net Assessed | ||
|
2026 |
02/23/2026 |
359,000 |
355,096 |
39,059 |
1,000 |
38,059 |
||
|
2025 |
02/14/2025 |
362,000 |
344,754 |
37,922 |
1,000 |
36,922 |
||
|
2024 |
02/13/2024 |
361,500 |
334,713 |
36,818 |
1,000 |
35,818 |
||
|
2023 |
02/14/2023 |
339,500 |
324,965 |
35,746 |
1,000 |
34,746 |
||
|
2022 |
03/15/2022 |
315,500 |
315,500 |
34,705 |
0 |
34,705 |
||
| Property Building Permit History | |||||||||||
|---|---|---|---|---|---|---|---|---|---|---|---|
| Issued | Permit # | Provided by | Bldg # | Description | Est Construction Cost | Status | |||||
| No Building Permit records returned. | |||||||||||
| Click button on building number to access detailed information: | ||||||
|---|---|---|---|---|---|---|
| Bldg # | Vacant/Improved Land | Bldg Description | Year Built | SqFt | # Stories | |
|
1 |
Improved |
Ranch 1 Story |
1930 |
1,607 |
1 Stories |
|