|
|
|
| Larry Stein Oklahoma County Assessor (405) 713-1200 - Public Access System |
|
|
|
|
|
|
| Real Property Display - Screen Produced 3/22/2026 2:05:47 PM | ||||
|---|---|---|---|---|
| Account: R064540240 | Type: Commercial | Location: |
3020 NW 16TH ST |
|
| Building Name/Occupant: |
PUBLIC WHOLESALE SUPERMERCADO |
OKLAHOMA CITY |
||
| Owner Name 1: | TB HOLDINGS LLC |
Parcel PIN#: |
2898-06-454-0240 |
|
| Owner Name 2: | 1/4 section #: |
2898 |
||
| Owner Name 3: | Parent Acct: |
|
||
| Billing Address: | PO BOX 20527 | Tax District: |
|
|
| City, State, Zip | OKLAHOMA CITY, OK 73156 | School System: |
Oklahoma City #89 |
|
|
Country: (If noted) |
UNITED STATES |
Land Size: |
101,906.0000 Square Feet |
|
|
Land Value: 392,023 |
|
|||
|
Sect 25-T12N-R4W Qtr SE |
SHARTEL BOULEVARD
Block
001
Lot
000
|
|||
| Full Legal Description: SHARTEL BOULEVARD BLK 001 LOT 000 LOTS 5 THRU 21 & ALL OF VACATED ALLEY LYING E OF LOTS 12 13 & W OF LOT 14 & A PT OF VACATED E/W ALLEY ALSO DESCRIBED AS BEG NE/C LT 5 TH W380FT S280.20FT E349.80FT N135FT W15FT N10.20FT E45FT N135FT TO BEG |
| No comparable sales report available. | ||||||||||||||||||||||
|
||||||||||||||||||||||
| Value History (*The County Treasurer 405-713-1300 posts & collects actual tax amounts. Contact information HERE) | |||||||||||||
|---|---|---|---|---|---|---|---|---|---|---|---|---|---|
| Year | Market Value | Taxable Mkt Value | Gross Assessed | Exemption | Net Assessed | Millage | Est. Tax | Tax Savings | |||||
|
2025 |
1,818,109 |
1,818,109 |
199,991 |
0 |
199,991 |
122.90 |
$24,579 |
$0 |
|||||
|
2024 |
1,818,109 |
1,818,109 |
199,991 |
0 |
199,991 |
123.89 |
$24,777 |
$0 |
|||||
|
2023 |
1,818,109 |
1,818,109 |
199,991 |
0 |
199,991 |
122.82 |
$24,563 |
$0 |
|||||
|
2022 |
1,818,109 |
1,818,109 |
199,991 |
0 |
199,991 |
117.63 |
$23,525 |
$0 |
|||||
|
2021 |
1,818,109 |
1,818,109 |
199,991 |
0 |
199,991 |
117.70 |
$23,539 |
$0 |
|||||
| Property Account Status/Adjustments/Exemptions | ||
|---|---|---|
| Account # | Exemption Description | Amount |
|
R064540240 |
5% Capped Account |
0 |
| Property Deed Transaction History (Recorded in the County Clerk's Office) | |||||||
|---|---|---|---|---|---|---|---|
| Date | Type | Book | Page | Price | Grantor | Grantee | |
|
10/17/2023 |
|
Sheriff's/Ma |
$1,051,000 |
NEEDS LLC |
TB HOLDINGS LLC |
||
|
12/20/2018 |
|
Deeds |
$1,600,000 |
TSM DEVELOPMENT LLC |
NEEDS LLC |
||
|
7/10/2007 |
|
Deeds |
$487,000 |
DREXEL INVESTMENTS LLC |
TSM DEVELOPMENT LLC |
||
|
3/16/2004 |
|
Mult Parcel |
$295,000 |
OKLA CITY ASSOC C.O FIRST OXFORD CORPORATION |
DREXEL INVESTMENTS LLC |
||
|
3/1/1980 |
|
Historical |
$0 |
|
OKLA CITY ASSOC |
||
| Last Mailed Notice of Value (N.O.V.) Information/History | ||||||
|---|---|---|---|---|---|---|
| Year | Date | Market Value | Taxable Market Value | Gross Assessed | Exemption | Net Assessed |
|
2026 |
03/23/2026 |
2,727,164 |
1,909,014 |
209,990 |
0 |
209,990 |
|
2021 |
03/22/2021 |
1,818,109 |
1,818,109 |
199,991 |
0 |
199,991 |
|
2020 |
03/16/2020 |
1,818,109 |
1,764,000 |
194,040 |
0 |
194,040 |
|
2019 |
04/05/2019 |
1,821,681 |
1,821,681 |
200,385 |
0 |
200,385 |
| Property Building Permit History | ||||||
|---|---|---|---|---|---|---|
| Issued | Permit # | Provided by | Bldg # | Description | Est Construction Cost | Status |
|
12/6/2011 |
10436245 |
OKLAHOMA CITY |
1 |
Commercial |
163,000 |
Inactive |
|
12/14/2005 |
10321783 |
OKLAHOMA CITY |
1 |
Remodeled |
20,800 |
Inactive |
|
11/22/1991 |
10194164 |
OKLAHOMA CITY |
1 |
Burn - Trip |
200 |
Inactive |
| Click button on building number to access detailed information: | ||||||
|---|---|---|---|---|---|---|
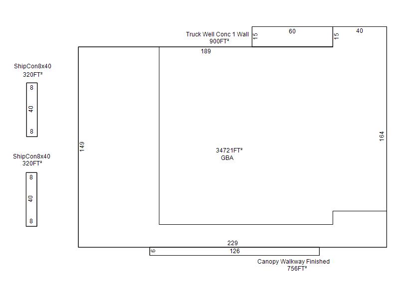
| Bldg # | Vacant/Improved Land | Bldg Description | Year Built | SqFt | # Stories | |
|
1 |
Improved |
SuperMarket |
1968 |
34,721 |
1 Stories |
|