|
|
|
| Larry Stein Oklahoma County Assessor (405) 713-1200 - Public Access System |
|
|
|
|
|
|
| Real Property Display - Screen Produced 3/22/2026 2:12:08 PM | ||||
|---|---|---|---|---|
| Account: R064545550 | Type: Residential | Location: |
3109 NW DREXEL CT |
|
| Building Name/Occupant: |
|
OKLAHOMA CITY |
||
| Owner Name 1: | RODRIGUEZ PEDRO H |
Parcel PIN#: |
2898-06-454-5550 |
|
| Owner Name 2: | 1/4 section #: |
2898 |
||
| Owner Name 3: | Parent Acct: |
|
||
| Billing Address: | 3109 NW DREXEL CT | Tax District: |
|
|
| City, State, Zip | OKLAHOMA CITY, OK 73107-5227 | School System: |
Oklahoma City #89 |
|
|
Country: (If noted) |
Land Size: |
0.1607 Acres |
||
|
Land Value: 18,900 |
|
|||
|
Sect 25-T12N-R4W Qtr SE |
SHARTEL BOULEVARD
Block
00A
Lot
000
|
|||
| Full Legal Description: SHARTEL BOULEVARD 00A 000 E25FT OF N140FT OF S170FT LOT 7 & W25FT OF N140FT OF S170FTLOT 8 |
| Photo & Sketch (if available) | Comp Sales (ordered by relevancy) |
|
||||||||||||||||||
|
||||||||||||||||||||
| Value History (*The County Treasurer 405-713-1300 posts & collects actual tax amounts. Contact information HERE) | |||||||||||||
|---|---|---|---|---|---|---|---|---|---|---|---|---|---|
| Year | Market Value | Taxable Mkt Value | Gross Assessed | Exemption | Net Assessed | Millage | Est. Tax | Tax Savings | |||||
|
2025 |
166,500 |
112,117 |
12,332 |
0 |
12,332 |
122.90 |
$1,516 |
$735 |
|||||
|
2024 |
161,500 |
106,779 |
11,745 |
0 |
11,745 |
123.89 |
$1,455 |
$746 |
|||||
|
2023 |
149,000 |
101,695 |
11,185 |
0 |
11,185 |
122.82 |
$1,374 |
$639 |
|||||
|
2022 |
128,500 |
96,853 |
10,653 |
0 |
10,653 |
117.63 |
$1,253 |
$409 |
|||||
|
2021 |
107,000 |
92,241 |
10,146 |
0 |
10,146 |
117.70 |
$1,194 |
$191 |
|||||
| Property Account Status/Adjustments/Exemptions | ||
|---|---|---|
| Account # | Exemption Description | Amount |
|
R064545550 |
5% Capped Account |
0 |
| Property Deed Transaction History (Recorded in the County Clerk's Office) | |||||||
|---|---|---|---|---|---|---|---|
| Date | Type | Book | Page | Price | Grantor | Grantee | |
|
4/28/1997 |
|
Historical |
$47,500 |
JOHNSON MICHAEL D & CHRISTY A |
RODRIGUEZ PEDRO H |
||
|
9/1/1977 |
|
Historical |
$0 |
|
JOHNSON MICHAEL D & CHRISTY A |
||
| Last Mailed Notice of Value (N.O.V.) Information/History | ||||||||
|---|---|---|---|---|---|---|---|---|
| Year | Date | Market Value | Taxable Market Value | Gross Assessed | Exemption | Net Assessed | ||
|
2026 |
02/23/2026 |
167,000 |
117,722 |
12,948 |
0 |
12,948 |
||
|
2025 |
02/14/2025 |
166,500 |
112,117 |
12,332 |
0 |
12,332 |
||
|
2024 |
02/13/2024 |
161,500 |
106,779 |
11,745 |
0 |
11,745 |
||
|
2023 |
02/14/2023 |
149,000 |
101,695 |
11,185 |
0 |
11,185 |
||
|
2022 |
03/15/2022 |
128,500 |
96,853 |
10,653 |
0 |
10,653 |
||
| Property Building Permit History | |||||||||||
|---|---|---|---|---|---|---|---|---|---|---|---|
| Issued | Permit # | Provided by | Bldg # | Description | Est Construction Cost | Status | |||||
| No Building Permit records returned. | |||||||||||
| Click button on building number to access detailed information: | ||||||
|---|---|---|---|---|---|---|
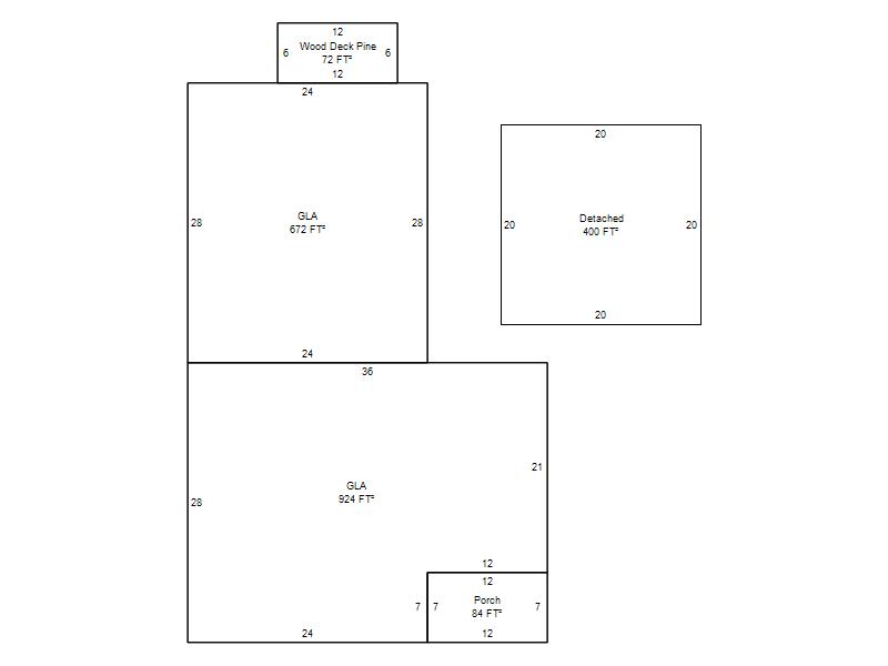
| Bldg # | Vacant/Improved Land | Bldg Description | Year Built | SqFt | # Stories | |
|
1 |
Improved |
Ranch 1 Story |
1938 |
1,596 |
1 Stories |
|