|
|
|
| Larry Stein Oklahoma County Assessor (405) 713-1200 - Public Access System |
|
|
|
|
|
|
| Real Property Display - Screen Produced 3/24/2026 5:12:49 AM | ||||
|---|---|---|---|---|
| Account: R064545610 | Type: Residential | Location: |
3108 NW DREXEL CT |
|
| Building Name/Occupant: |
|
OKLAHOMA CITY |
||
| Owner Name 1: | NAJERA GRACIELA |
Parcel PIN#: |
2898-06-454-5610 |
|
| Owner Name 2: | REYES ABEL NAJERA | 1/4 section #: |
2898 |
|
| Owner Name 3: | Parent Acct: |
|
||
| Billing Address: | 3108 NW DREXEL CT | Tax District: |
|
|
| City, State, Zip | OKLAHOMA CITY, OK 73107-5228 | School System: |
Oklahoma City #89 |
|
|
Country: (If noted) |
Land Size: |
0.1909 Acres |
||
|
Land Value: 22,453 |
|
|||
|
Sect 25-T12N-R4W Qtr SE |
SHARTEL BOULEVARD
Block
00A
Lot
000
|
|||
| Full Legal Description: SHARTEL BOULEVARD 00A 000 W30FT OF S132FT OF N162FT LOT 11 & E32.5FT OF S132FT OF N162FT OF LOT 12 |
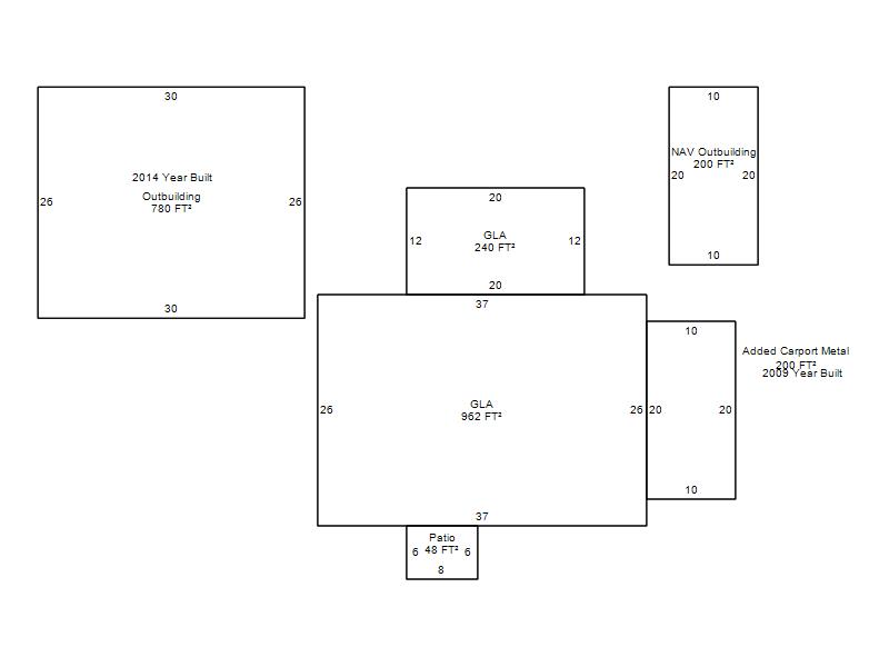
| Photo & Sketch (if available) | Comp Sales (ordered by relevancy) |
|
||||||||||||||||||
|
||||||||||||||||||||
| Value History (*The County Treasurer 405-713-1300 posts & collects actual tax amounts. Contact information HERE) | |||||||||||||
|---|---|---|---|---|---|---|---|---|---|---|---|---|---|
| Year | Market Value | Taxable Mkt Value | Gross Assessed | Exemption | Net Assessed | Millage | Est. Tax | Tax Savings | |||||
|
2025 |
198,500 |
198,500 |
21,835 |
0 |
21,835 |
122.90 |
$2,684 |
$0 |
|||||
|
2024 |
193,000 |
162,618 |
17,887 |
0 |
17,887 |
123.89 |
$2,216 |
$414 |
|||||
|
2023 |
161,000 |
154,875 |
17,036 |
0 |
17,036 |
122.82 |
$2,092 |
$83 |
|||||
|
2022 |
147,500 |
147,500 |
16,225 |
0 |
16,225 |
117.63 |
$1,909 |
$0 |
|||||
|
2021 |
134,000 |
131,197 |
14,431 |
0 |
14,431 |
117.70 |
$1,699 |
$36 |
|||||
| Property Account Status/Adjustments/Exemptions | ||
|---|---|---|
| Account # | Exemption Description | Amount |
|
R064545610 |
5% Capped Account |
0 |
| Property Deed Transaction History (Recorded in the County Clerk's Office) | ||||||||||
|---|---|---|---|---|---|---|---|---|---|---|
| Date | Type | Book | Page | Price | Grantor | Grantee | ||||
|
10/8/2024 |
|
Deeds |
$185,000 |
ROMERO ALEXYS G |
NAJERA GRACIELA |
|||||
|
8/29/2024 |
|
Hmstd Off & |
$0 |
ROMERO ALEXYS G |
ROMERO ALEXYS G |
|||||
|
2/28/2021 |
|
Deeds |
$142,000 |
WARNECKE ROBIN |
ROMERO ALEXYS G |
|||||
|
1/24/2017 |
|
Deeds |
$120,000 |
TACK JAMES C |
WARNECKE ROBIN |
|||||
|
7/20/2007 |
|
Deeds |
$72,000 |
DIXON LARRY & LISA K |
TACK JAMES C |
|||||
| Last Mailed Notice of Value (N.O.V.) Information/History | ||||||||
|---|---|---|---|---|---|---|---|---|
| Year | Date | Market Value | Taxable Market Value | Gross Assessed | Exemption | Net Assessed | ||
|
2026 |
02/23/2026 |
200,000 |
200,000 |
22,000 |
0 |
22,000 |
||
|
2025 |
02/14/2025 |
198,500 |
198,500 |
21,835 |
0 |
21,835 |
||
|
2024 |
02/13/2024 |
193,000 |
162,618 |
17,887 |
0 |
17,887 |
||
|
2023 |
02/14/2023 |
161,000 |
154,875 |
17,036 |
0 |
17,036 |
||
|
2022 |
03/15/2022 |
147,500 |
147,500 |
16,225 |
0 |
16,225 |
||
| Property Building Permit History | ||||||
|---|---|---|---|---|---|---|
| Issued | Permit # | Provided by | Bldg # | Description | Est Construction Cost | Status |
|
4/4/2013 |
10452521 |
OKLAHOMA CITY |
1 |
Storage Buil |
5,000 |
Inactive |
| Click button on building number to access detailed information: | ||||||
|---|---|---|---|---|---|---|
| Bldg # | Vacant/Improved Land | Bldg Description | Year Built | SqFt | # Stories | |
|
1 |
Improved |
1½ Story Unfin |
1939 |
1,202 |
1.5 Stories |
|