|
|
|
| Larry Stein Oklahoma County Assessor (405) 713-1200 - Public Access System |
|
|
|
|
|
|
| Real Property Display - Screen Produced 3/22/2026 2:12:08 PM | ||||
|---|---|---|---|---|
| Account: R064545760 | Type: Residential | Location: |
3121 NW 11TH ST |
|
| Building Name/Occupant: |
|
OKLAHOMA CITY |
||
| Owner Name 1: | HARAGSIM RENEE |
Parcel PIN#: |
2898-06-454-5760 |
|
| Owner Name 2: | HARAGSIM LUKAS | 1/4 section #: |
2898 |
|
| Owner Name 3: | Parent Acct: |
|
||
| Billing Address: | 1413 NW 186TH ST | Tax District: |
|
|
| City, State, Zip | EDMOND, OK 73012 | School System: |
Oklahoma City #89 |
|
|
Country: (If noted) |
Land Size: |
0.1326 Acres |
||
|
Land Value: 15,601 |
|
|||
|
Sect 25-T12N-R4W Qtr SE |
SHARTEL BOULEVARD
Block
00A
Lot
000
|
|||
| Full Legal Description: SHARTEL BOULEVARD BLK 00A LOT 000 W10.5FT OF LOT 13 & E43FT OF LOT 14 EX N162FT |
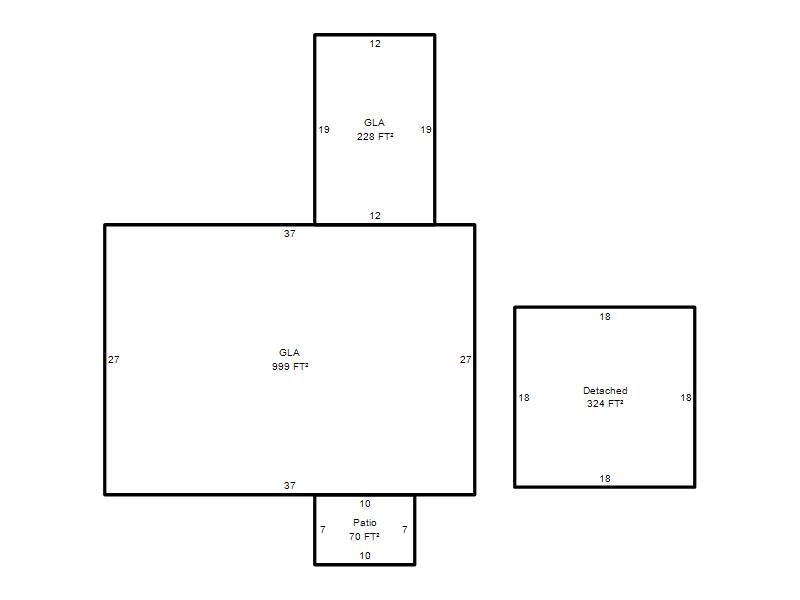
| Photo & Sketch (if available) | Comp Sales (ordered by relevancy) |
|
||||||||||||||||||
|
||||||||||||||||||||
| Value History (*The County Treasurer 405-713-1300 posts & collects actual tax amounts. Contact information HERE) | |||||||||||||
|---|---|---|---|---|---|---|---|---|---|---|---|---|---|
| Year | Market Value | Taxable Mkt Value | Gross Assessed | Exemption | Net Assessed | Millage | Est. Tax | Tax Savings | |||||
|
2025 |
143,500 |
113,587 |
12,493 |
0 |
12,493 |
122.90 |
$1,536 |
$404 |
|||||
|
2024 |
140,500 |
108,179 |
11,899 |
0 |
11,899 |
123.89 |
$1,474 |
$440 |
|||||
|
2023 |
131,000 |
103,028 |
11,332 |
0 |
11,332 |
122.82 |
$1,392 |
$378 |
|||||
|
2022 |
115,500 |
98,122 |
10,792 |
0 |
10,792 |
117.63 |
$1,270 |
$225 |
|||||
|
2021 |
97,500 |
93,450 |
10,279 |
0 |
10,279 |
117.70 |
$1,210 |
$52 |
|||||
| Property Account Status/Adjustments/Exemptions | ||
|---|---|---|
| Account # | Exemption Description | Amount |
|
R064545760 |
5% Capped Account |
0 |
| Property Deed Transaction History (Recorded in the County Clerk's Office) | |||||||
|---|---|---|---|---|---|---|---|
| Date | Type | Book | Page | Price | Grantor | Grantee | |
|
5/30/2019 |
|
Deeds |
$80,500 |
BRUMLEY LINDA G |
HARAGSIM RENEE |
||
|
3/29/2019 |
|
Hmstd Off & |
$0 |
WELLS NORA |
BRUMLEY LINDA G |
||
|
3/13/2007 |
|
Deeds |
$0 |
WELLS NORA |
WELLS NORA |
||
|
11/1/1976 |
|
Historical |
$0 |
|
WELLS NORA |
||
| Last Mailed Notice of Value (N.O.V.) Information/History | ||||||||
|---|---|---|---|---|---|---|---|---|
| Year | Date | Market Value | Taxable Market Value | Gross Assessed | Exemption | Net Assessed | ||
|
2026 |
02/23/2026 |
141,500 |
119,266 |
13,118 |
0 |
13,118 |
||
|
2025 |
02/14/2025 |
143,500 |
113,587 |
12,493 |
0 |
12,493 |
||
|
2024 |
02/13/2024 |
140,500 |
108,179 |
11,899 |
0 |
11,899 |
||
|
2023 |
02/14/2023 |
131,000 |
103,028 |
11,332 |
0 |
11,332 |
||
|
2022 |
03/15/2022 |
115,500 |
98,122 |
10,792 |
0 |
10,792 |
||
| Property Building Permit History | |||||||||||
|---|---|---|---|---|---|---|---|---|---|---|---|
| Issued | Permit # | Provided by | Bldg # | Description | Est Construction Cost | Status | |||||
| No Building Permit records returned. | |||||||||||
| Click button on building number to access detailed information: | ||||||
|---|---|---|---|---|---|---|
| Bldg # | Vacant/Improved Land | Bldg Description | Year Built | SqFt | # Stories | |
|
1 |
Improved |
Ranch 1 Story |
1940 |
1,227 |
1 Stories |
|