|
|
|
| Larry Stein Oklahoma County Assessor (405) 713-1200 - Public Access System |
|
|
|
|
|
|
| Real Property Display - Screen Produced 3/22/2026 2:10:37 PM | ||||
|---|---|---|---|---|
| Account: R064547440 | Type: Residential | Location: |
2933 NW 11TH ST |
|
| Building Name/Occupant: |
|
OKLAHOMA CITY |
||
| Owner Name 1: | SERIES A OF KWWK PROPERTIES LLC |
Parcel PIN#: |
2898-06-454-7440 |
|
| Owner Name 2: | 1/4 section #: |
2898 |
||
| Owner Name 3: | Parent Acct: |
|
||
| Billing Address: | 3324 NW 172ND TER | Tax District: |
|
|
| City, State, Zip | EDMOND , OK 73012 | School System: |
Oklahoma City #89 |
|
|
Country: (If noted) |
Land Size: |
0.2468 Acres |
||
|
Land Value: 29,025 |
|
|||
|
Sect 25-T12N-R4W Qtr SE |
SHARTEL BOULEVARD
Block
00D
Lot
005
|
|||
| Full Legal Description: SHARTEL BOULEVARD 00D 005 |
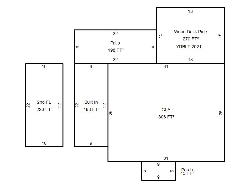
| Photo & Sketch (if available) | Comp Sales (ordered by relevancy) |
|
||||||||||||||||||
|
||||||||||||||||||||
| Value History (*The County Treasurer 405-713-1300 posts & collects actual tax amounts. Contact information HERE) | |||||||||||||
|---|---|---|---|---|---|---|---|---|---|---|---|---|---|
| Year | Market Value | Taxable Mkt Value | Gross Assessed | Exemption | Net Assessed | Millage | Est. Tax | Tax Savings | |||||
|
2025 |
150,000 |
119,726 |
13,169 |
0 |
13,169 |
122.90 |
$1,619 |
$409 |
|||||
|
2024 |
145,000 |
114,025 |
12,542 |
0 |
12,542 |
123.89 |
$1,554 |
$422 |
|||||
|
2023 |
136,500 |
108,596 |
11,944 |
0 |
11,944 |
122.82 |
$1,467 |
$377 |
|||||
|
2022 |
119,000 |
103,425 |
11,376 |
0 |
11,376 |
117.63 |
$1,338 |
$202 |
|||||
|
2021 |
98,500 |
98,500 |
10,835 |
0 |
10,835 |
117.70 |
$1,275 |
$0 |
|||||
| Property Account Status/Adjustments/Exemptions | ||||||
|---|---|---|---|---|---|---|
| Account # | Exemption Description | Amount | ||||
| No adjustment/exemption records returned. | ||||||
| Property Deed Transaction History (Recorded in the County Clerk's Office) | ||||||||||
|---|---|---|---|---|---|---|---|---|---|---|
| Date | Type | Book | Page | Price | Grantor | Grantee | ||||
|
8/1/2022 |
|
Hmstd Off & |
$0 |
WALLS KEVIN |
SERIES A OF KWWK PROPERTIES LLC |
|||||
|
2/21/2020 |
|
Deeds |
$101,500 |
GMB REAL ESTATE LLC |
WALLS KEVIN |
|||||
|
4/19/2012 |
|
Deeds |
$64,500 |
ROACH JERRY M ROACH LIZDE |
GMB REAL ESTATE LLC |
|||||
|
1/27/1999 |
|
Historical |
$45,000 |
DIAZ MISAEL HERNANDEZ |
ROACH JERRY M |
|||||
|
10/2/1990 |
|
Historical |
$31,777 |
SECRETARY OF VETERANS AFFAIRS |
DIAZ MISAEL HERNANDEZ |
|||||
| Last Mailed Notice of Value (N.O.V.) Information/History | ||||||||
|---|---|---|---|---|---|---|---|---|
| Year | Date | Market Value | Taxable Market Value | Gross Assessed | Exemption | Net Assessed | ||
|
2026 |
02/23/2026 |
147,500 |
125,712 |
13,827 |
0 |
13,827 |
||
|
2025 |
02/14/2025 |
150,000 |
119,726 |
13,169 |
0 |
13,169 |
||
|
2024 |
02/13/2024 |
145,000 |
114,025 |
12,542 |
0 |
12,542 |
||
|
2023 |
02/14/2023 |
136,500 |
108,596 |
11,944 |
0 |
11,944 |
||
|
2022 |
03/15/2022 |
119,000 |
103,425 |
11,376 |
0 |
11,376 |
||
| Property Building Permit History | |||||||||||
|---|---|---|---|---|---|---|---|---|---|---|---|
| Issued | Permit # | Provided by | Bldg # | Description | Est Construction Cost | Status | |||||
| No Building Permit records returned. | |||||||||||
| Click button on building number to access detailed information: | ||||||
|---|---|---|---|---|---|---|
| Bldg # | Vacant/Improved Land | Bldg Description | Year Built | SqFt | # Stories | |
|
1 |
Improved |
1½ Story Fin |
1939 |
1,026 |
1.5 Stories |
|