|
|
|
| Larry Stein Oklahoma County Assessor (405) 713-1200 - Public Access System |
|
|
|
|
|
|
| Real Property Display - Screen Produced 3/24/2026 8:08:32 AM | ||||
|---|---|---|---|---|
| Account: R064547830 | Type: Residential | Location: |
2924 NW 12TH ST |
|
| Building Name/Occupant: |
|
OKLAHOMA CITY |
||
| Owner Name 1: | KALIDY LLC |
Parcel PIN#: |
2898-06-454-7830 |
|
| Owner Name 2: | 1/4 section #: |
2898 |
||
| Owner Name 3: | Parent Acct: |
|
||
| Billing Address: | PO BOX 226 | Tax District: |
|
|
| City, State, Zip | EDMOND, OK 73083-0226 | School System: |
Oklahoma City #89 |
|
|
Country: (If noted) |
Land Size: |
0.1607 Acres |
||
|
Land Value: 18,900 |
|
|||
|
Sect 25-T12N-R4W Qtr SE |
SHARTEL BOULEVARD
Block
014
Lot
000
|
|||
| Full Legal Description: SHARTEL BOULEVARD 014 000 W10FT OF LOT 4 & E40FT LOT 5 |
| Photo & Sketch (if available) | Comp Sales (ordered by relevancy) |
|
||||||||||||||||||
|
||||||||||||||||||||
| Value History (*The County Treasurer 405-713-1300 posts & collects actual tax amounts. Contact information HERE) | |||||||||||||
|---|---|---|---|---|---|---|---|---|---|---|---|---|---|
| Year | Market Value | Taxable Mkt Value | Gross Assessed | Exemption | Net Assessed | Millage | Est. Tax | Tax Savings | |||||
|
2025 |
183,000 |
95,143 |
10,465 |
0 |
10,465 |
122.90 |
$1,286 |
$1,188 |
|||||
|
2024 |
130,500 |
90,613 |
9,966 |
0 |
9,966 |
123.89 |
$1,235 |
$544 |
|||||
|
2023 |
121,000 |
86,299 |
9,492 |
0 |
9,492 |
122.82 |
$1,166 |
$469 |
|||||
|
2022 |
104,000 |
82,190 |
9,040 |
0 |
9,040 |
117.63 |
$1,063 |
$282 |
|||||
|
2021 |
86,500 |
78,277 |
8,610 |
0 |
8,610 |
117.70 |
$1,013 |
$106 |
|||||
| Property Account Status/Adjustments/Exemptions | ||
|---|---|---|
| Account # | Exemption Description | Amount |
|
R064547830 |
5% Capped Account |
0 |
| Property Deed Transaction History (Recorded in the County Clerk's Office) | ||||||||||
|---|---|---|---|---|---|---|---|---|---|---|
| Date | Type | Book | Page | Price | Grantor | Grantee | ||||
|
9/7/2016 |
|
Deeds |
$59,500 |
GORRELL CHRISTINE J |
KALIDY LLC |
|||||
|
11/29/2000 |
|
Deeds |
$61,000 |
JONES DICKIE HOWARD |
GORRELL CHRISTINE J |
|||||
|
10/14/1998 |
|
Historical |
$0 |
KING-MIZE COMPANY INC |
JONES DICKIE HOWARD |
|||||
|
11/12/1997 |
|
Historical |
$0 |
MIZE HOYT GENE |
KING-MIZE COMPANY INC |
|||||
|
10/21/1994 |
|
Historical |
$0 |
KISOR YVONDA R |
MIZE HOYT GENE |
|||||
| Last Mailed Notice of Value (N.O.V.) Information/History | ||||||||
|---|---|---|---|---|---|---|---|---|
| Year | Date | Market Value | Taxable Market Value | Gross Assessed | Exemption | Net Assessed | ||
|
2026 |
02/23/2026 |
184,500 |
99,900 |
10,988 |
0 |
10,988 |
||
|
2025 |
02/14/2025 |
183,000 |
95,143 |
10,465 |
0 |
10,465 |
||
|
2024 |
02/13/2024 |
130,500 |
90,613 |
9,966 |
0 |
9,966 |
||
|
2023 |
02/14/2023 |
121,000 |
86,299 |
9,492 |
0 |
9,492 |
||
|
2022 |
03/15/2022 |
104,000 |
82,190 |
9,040 |
0 |
9,040 |
||
| Property Building Permit History | |||||||||||
|---|---|---|---|---|---|---|---|---|---|---|---|
| Issued | Permit # | Provided by | Bldg # | Description | Est Construction Cost | Status | |||||
| No Building Permit records returned. | |||||||||||
| Click button on building number to access detailed information: | ||||||
|---|---|---|---|---|---|---|
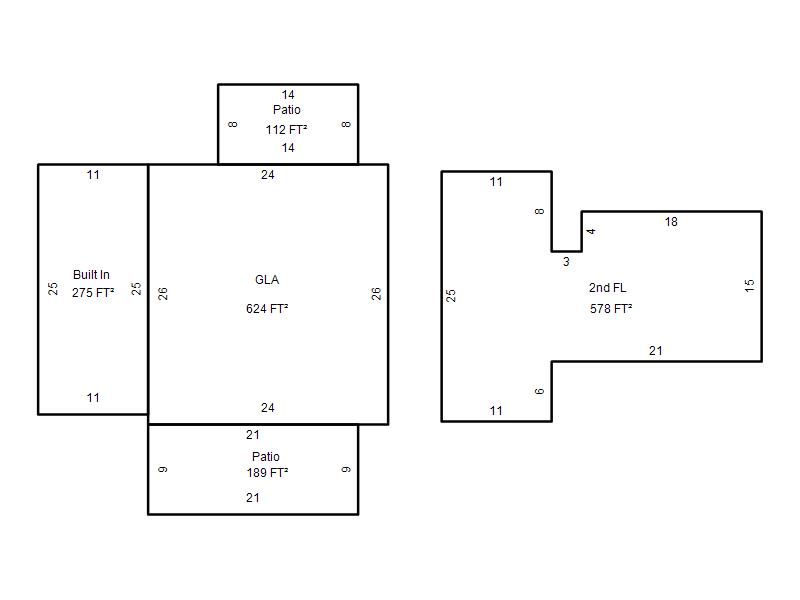
| Bldg # | Vacant/Improved Land | Bldg Description | Year Built | SqFt | # Stories | |
|
1 |
Improved |
2 Story |
1936 |
1,202 |
2 Stories |
|