|
|
|
| Larry Stein Oklahoma County Assessor (405) 713-1200 - Public Access System |
|
|
|
|
|
|
| Real Property Display - Screen Produced 3/22/2026 12:30:55 PM | ||||
|---|---|---|---|---|
| Account: R064702725 | Type: Residential | Location: |
2925 W PARK PL |
|
| Building Name/Occupant: |
|
OKLAHOMA CITY |
||
| Owner Name 1: | VARGAS JOSE E MEDINA |
Parcel PIN#: |
2898-06-470-2725 |
|
| Owner Name 2: | ESCALERA NAUN ROSAS | 1/4 section #: |
2898 |
|
| Owner Name 3: | Parent Acct: |
|
||
| Billing Address: | 2925 W PARK PL | Tax District: |
|
|
| City, State, Zip | OKLAHOMA CITY, OK 73107 | School System: |
Oklahoma City #89 |
|
|
Country: (If noted) |
Land Size: |
0.1538 Acres |
||
|
Land Value: 18,090 |
|
|||
|
Sect 25-T12N-R4W Qtr SE |
MAY TEN ADDITION
Block
001
Lot
018
|
|||
| Full Legal Description: MAY TEN ADDITION 001 018 |
| Photo & Sketch (if available) | Comp Sales (ordered by relevancy) |
|
||||||||||||||||||
|
||||||||||||||||||||
| Value History (*The County Treasurer 405-713-1300 posts & collects actual tax amounts. Contact information HERE) | |||||||||||||
|---|---|---|---|---|---|---|---|---|---|---|---|---|---|
| Year | Market Value | Taxable Mkt Value | Gross Assessed | Exemption | Net Assessed | Millage | Est. Tax | Tax Savings | |||||
|
2025 |
160,500 |
113,905 |
12,528 |
0 |
12,528 |
122.90 |
$1,540 |
$630 |
|||||
|
2024 |
153,500 |
108,481 |
11,932 |
0 |
11,932 |
123.89 |
$1,478 |
$614 |
|||||
|
2023 |
137,500 |
103,316 |
11,364 |
0 |
11,364 |
122.82 |
$1,396 |
$462 |
|||||
|
2022 |
113,500 |
98,397 |
10,822 |
0 |
10,822 |
117.63 |
$1,273 |
$195 |
|||||
|
2021 |
98,500 |
93,712 |
10,307 |
0 |
10,307 |
117.70 |
$1,213 |
$62 |
|||||
| Property Account Status/Adjustments/Exemptions | ||
|---|---|---|
| Account # | Exemption Description | Amount |
|
R064702725 |
5% Capped Account |
0 |
| Property Deed Transaction History (Recorded in the County Clerk's Office) | |||||||
|---|---|---|---|---|---|---|---|
| Date | Type | Book | Page | Price | Grantor | Grantee | |
|
1/31/2018 |
|
Deeds |
$87,000 |
ADAMSON ROBERT F |
VARGAS JOSE E MEDINA |
||
|
1/29/2018 |
|
Deeds |
$0 |
HOLLOWELL JON C & PEGGY J TRS |
ADAMSON ROBERT F |
||
|
4/11/2017 |
|
Deeds |
$21,500 |
HOLLOWELL JON C & PEGGY J REV LIV TRUST |
ADAMSON ROBERT F |
||
|
6/4/2004 |
|
Deeds |
$0 |
HOLLOWELL JON C & PEGGY J |
HOLLOWELL JON C & PEGGY J REV LIV TRUST |
||
|
11/11/1911 |
|
Historical |
$0 |
|
HOLLOWELL JON C & PEGGY J |
||
| Last Mailed Notice of Value (N.O.V.) Information/History | ||||||||
|---|---|---|---|---|---|---|---|---|
| Year | Date | Market Value | Taxable Market Value | Gross Assessed | Exemption | Net Assessed | ||
|
2026 |
02/23/2026 |
162,500 |
119,600 |
13,155 |
0 |
13,155 |
||
|
2025 |
02/14/2025 |
160,500 |
113,905 |
12,528 |
0 |
12,528 |
||
|
2024 |
02/13/2024 |
153,500 |
108,481 |
11,932 |
0 |
11,932 |
||
|
2023 |
02/14/2023 |
137,500 |
103,316 |
11,364 |
0 |
11,364 |
||
|
2022 |
03/15/2022 |
113,500 |
98,397 |
10,822 |
0 |
10,822 |
||
| Property Building Permit History | |||||||||||
|---|---|---|---|---|---|---|---|---|---|---|---|
| Issued | Permit # | Provided by | Bldg # | Description | Est Construction Cost | Status | |||||
| No Building Permit records returned. | |||||||||||
| Click button on building number to access detailed information: | ||||||
|---|---|---|---|---|---|---|
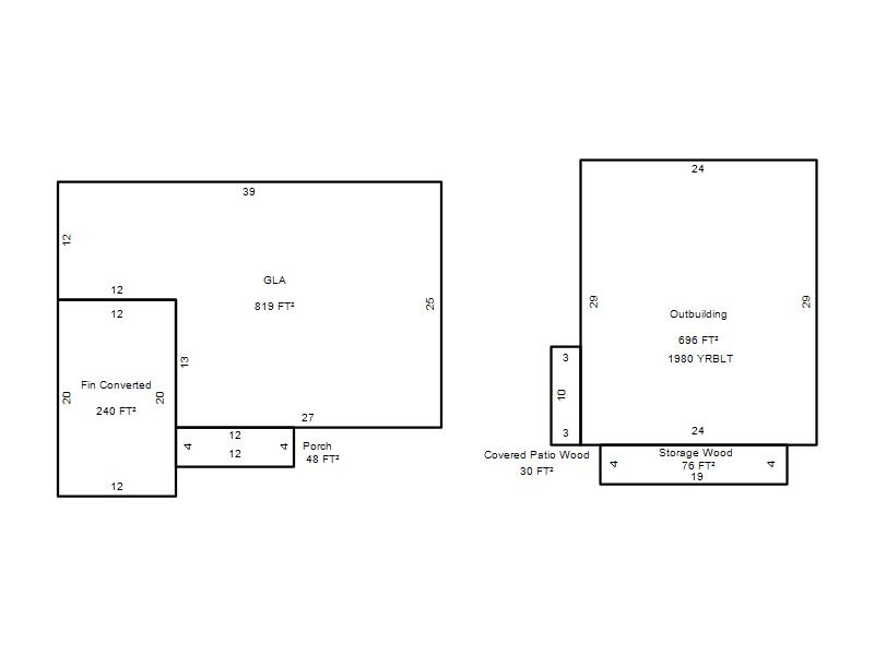
| Bldg # | Vacant/Improved Land | Bldg Description | Year Built | SqFt | # Stories | |
|
1 |
Improved |
Ranch 1 Story |
1947 |
819 |
1 Stories |
|