|
|
|
| Larry Stein Oklahoma County Assessor (405) 713-1200 - Public Access System |
|
|
|
|
|
|
| Real Property Display - Screen Produced 3/22/2026 12:28:36 PM | ||||
|---|---|---|---|---|
| Account: R064703600 | Type: Residential | Location: |
3012 NW 11TH ST |
|
| Building Name/Occupant: |
|
OKLAHOMA CITY |
||
| Owner Name 1: | BARNES TAJANAE LABRIA |
Parcel PIN#: |
2898-06-470-3600 |
|
| Owner Name 2: | 1/4 section #: |
2898 |
||
| Owner Name 3: | Parent Acct: |
|
||
| Billing Address: | 3012 NW 11TH ST | Tax District: |
|
|
| City, State, Zip | OKLAHOMA CITY, OK 73107-5304 | School System: |
Oklahoma City #89 |
|
|
Country: (If noted) |
Land Size: |
0.1938 Acres |
||
|
Land Value: 22,793 |
|
|||
|
Sect 25-T12N-R4W Qtr SE |
MAY TEN ADDITION
Block
002
Lot
000
|
|||
| Full Legal Description: MAY TEN ADDITION 002 000 LOT 4 & E12.5FT OF LOT 5 |
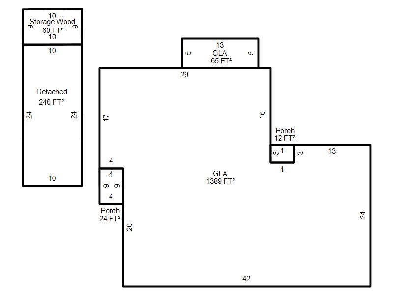
| Photo & Sketch (if available) | Comp Sales (ordered by relevancy) |
|
||||||||||||||||||
|
||||||||||||||||||||
| Value History (*The County Treasurer 405-713-1300 posts & collects actual tax amounts. Contact information HERE) | |||||||||||||
|---|---|---|---|---|---|---|---|---|---|---|---|---|---|
| Year | Market Value | Taxable Mkt Value | Gross Assessed | Exemption | Net Assessed | Millage | Est. Tax | Tax Savings | |||||
|
2025 |
203,000 |
203,000 |
22,330 |
0 |
22,330 |
122.90 |
$2,744 |
$0 |
|||||
|
2024 |
199,000 |
199,000 |
21,890 |
0 |
21,890 |
123.89 |
$2,712 |
$0 |
|||||
|
2023 |
135,500 |
135,500 |
14,905 |
0 |
14,905 |
122.82 |
$1,831 |
$0 |
|||||
|
2022 |
110,000 |
110,000 |
12,100 |
0 |
12,100 |
117.63 |
$1,423 |
$0 |
|||||
|
2021 |
93,500 |
66,000 |
7,260 |
1,000 |
6,260 |
117.70 |
$737 |
$474 |
|||||
| Property Account Status/Adjustments/Exemptions | ||
|---|---|---|
| Account # | Exemption Description | Amount |
|
R064703600 |
5% Capped Account |
0 |
| Property Deed Transaction History (Recorded in the County Clerk's Office) | ||||||||||
|---|---|---|---|---|---|---|---|---|---|---|
| Date | Type | Book | Page | Price | Grantor | Grantee | ||||
|
3/13/2023 |
|
Deeds |
$199,000 |
PAREA PROPERTIES LLC |
BARNES TAJANAE LABRIA |
|||||
|
6/28/2022 |
|
Deeds |
$140,000 |
OGLE ASSETS LLC |
PAREA PROPERTIES LLC |
|||||
|
3/17/2022 |
|
Deeds |
$95,000 |
HIGDON LINDSEY O |
OGLE ASSETS LLC |
|||||
|
7/14/2021 |
|
Other |
$ |
MCDONALD DON ELLIS |
HIGDON LINDSEY O |
|||||
|
6/12/1992 |
|
Historical |
$42,500 |
HORTON FRANCY L |
MCDONALD DON ELLIS |
|||||
| Last Mailed Notice of Value (N.O.V.) Information/History | ||||||||
|---|---|---|---|---|---|---|---|---|
| Year | Date | Market Value | Taxable Market Value | Gross Assessed | Exemption | Net Assessed | ||
|
2025 |
02/14/2025 |
203,000 |
203,000 |
22,330 |
0 |
22,330 |
||
|
2024 |
02/13/2024 |
199,000 |
199,000 |
21,890 |
0 |
21,890 |
||
|
2023 |
02/14/2023 |
135,500 |
135,500 |
14,905 |
0 |
14,905 |
||
|
2022 |
03/15/2022 |
110,000 |
110,000 |
12,100 |
0 |
12,100 |
||
|
2021 |
03/19/2021 |
93,500 |
66,000 |
7,260 |
1,000 |
6,260 |
||
| Property Building Permit History | |||||||||||
|---|---|---|---|---|---|---|---|---|---|---|---|
| Issued | Permit # | Provided by | Bldg # | Description | Est Construction Cost | Status | |||||
| No Building Permit records returned. | |||||||||||
| Click button on building number to access detailed information: | ||||||
|---|---|---|---|---|---|---|
| Bldg # | Vacant/Improved Land | Bldg Description | Year Built | SqFt | # Stories | |
|
1 |
Improved |
Ranch 1 Story |
1945 |
1,454 |
1 Stories |
|