|
|
|
| Larry Stein Oklahoma County Assessor (405) 713-1200 - Public Access System |
|
|
|
|
|
|
| Real Property Display - Screen Produced 4/1/2026 2:13:10 AM | ||||
|---|---|---|---|---|
| Account: R150626945 | Type: Residential | Location: |
4002 LAWN DR |
|
| Building Name/Occupant: |
|
DEL CITY |
||
| Owner Name 1: | SMITH DANNY L |
Parcel PIN#: |
1421-15-062-6945 |
|
| Owner Name 2: | 1/4 section #: |
1421 |
||
| Owner Name 3: | Parent Acct: |
|
||
| Billing Address: | 12228 SE 73RD ST | Tax District: |
|
|
| City, State, Zip | OKLAHOMA CITY, OK 73150-7500 | School System: |
Mid-Del #52 |
|
|
Country: (If noted) |
Land Size: |
0.4362 Acres |
||
|
Land Value: 25,089 |
|
|||
|
Sect 6-T11N-R2W Qtr NE |
MATHEWS MEADOW LAWN
Block
010
Lot
005
|
|||
| Full Legal Description: MATHEWS MEADOW LAWN 010 005 |
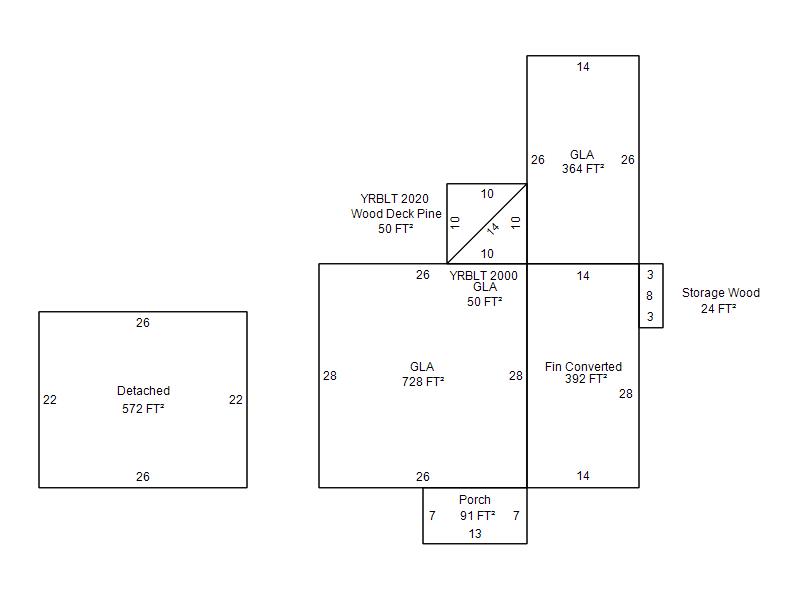
| Photo & Sketch (if available) | Comp Sales (ordered by relevancy) |
|
||||||||||||||||||
|
||||||||||||||||||||
| Value History (*The County Treasurer 405-713-1300 posts & collects actual tax amounts. Contact information HERE) | |||||||||||||
|---|---|---|---|---|---|---|---|---|---|---|---|---|---|
| Year | Market Value | Taxable Mkt Value | Gross Assessed | Exemption | Net Assessed | Millage | Est. Tax | Tax Savings | |||||
|
2026 |
132,000 |
92,464 |
10,170 |
0 |
10,170 |
114.72 |
$1,167 |
$499 |
|||||
|
2025 |
134,000 |
88,061 |
9,686 |
0 |
9,686 |
114.72 |
$1,111 |
$580 |
|||||
|
2024 |
127,500 |
83,868 |
9,225 |
0 |
9,225 |
117.21 |
$1,081 |
$563 |
|||||
|
2023 |
91,500 |
79,875 |
8,785 |
0 |
8,785 |
112.46 |
$988 |
$144 |
|||||
|
2022 |
86,500 |
76,072 |
8,367 |
0 |
8,367 |
110.76 |
$927 |
$127 |
|||||
| Property Account Status/Adjustments/Exemptions | ||
|---|---|---|
| Account # | Exemption Description | Amount |
|
R150626945 |
5% Capped Account |
0 |
| Property Deed Transaction History (Recorded in the County Clerk's Office) | |||||||
|---|---|---|---|---|---|---|---|
| Date | Type | Book | Page | Price | Grantor | Grantee | |
|
3/6/1997 |
|
Historical |
$0 |
SMITH ANDREA J |
SMITH DANNY L |
||
|
3/1/1994 |
|
Historical |
$0 |
SMITH DANNY LYNN & ANDREA JANE |
SMITH ANDREA J |
||
|
1/9/1989 |
|
Historical |
$30,000 |
STEWARD EVELYN |
SMITH DANNY LYNN & ANDREA JANE |
||
|
8/1/1985 |
|
Historical |
$0 |
|
STEWARD EVELYN |
||
| Last Mailed Notice of Value (N.O.V.) Information/History | ||||||||
|---|---|---|---|---|---|---|---|---|
| Year | Date | Market Value | Taxable Market Value | Gross Assessed | Exemption | Net Assessed | ||
|
2026 |
02/06/2026 |
132,000 |
92,464 |
10,170 |
0 |
10,170 |
||
|
2025 |
01/31/2025 |
134,000 |
88,061 |
9,686 |
0 |
9,686 |
||
|
2024 |
01/22/2024 |
127,500 |
83,868 |
9,225 |
0 |
9,225 |
||
|
2023 |
01/23/2023 |
91,500 |
79,875 |
8,785 |
0 |
8,785 |
||
|
2022 |
02/22/2022 |
86,500 |
76,072 |
8,367 |
0 |
8,367 |
||
| Property Building Permit History | ||||||
|---|---|---|---|---|---|---|
| Issued | Permit # | Provided by | Bldg # | Description | Est Construction Cost | Status |
|
4/1/1993 |
10246670 |
DEL CITY |
1 |
Add On |
1,000 |
Inactive |
| Click button on building number to access detailed information: | ||||||
|---|---|---|---|---|---|---|
| Bldg # | Vacant/Improved Land | Bldg Description | Year Built | SqFt | # Stories | |
|
1 |
Improved |
Ranch 1 Story |
1946 |
1,142 |
1 Stories |
|