|
|
|
| Larry Stein Oklahoma County Assessor (405) 713-1200 - Public Access System |
|
|
|
|
|
|
| Real Property Display - Screen Produced 3/22/2026 12:32:59 PM | ||||
|---|---|---|---|---|
| Account: R066540750 | Type: Residential | Location: |
3622 NW 14TH ST |
|
| Building Name/Occupant: |
|
OKLAHOMA CITY |
||
| Owner Name 1: | ROUND INVESTMENT LLC |
Parcel PIN#: |
2899-06-654-0750 |
|
| Owner Name 2: | ATTN CHRIS DU | 1/4 section #: |
2899 |
|
| Owner Name 3: | Parent Acct: |
|
||
| Billing Address: | 11011 QUEENSWICK CT | Tax District: |
|
|
| City, State, Zip | OKLAHOMA CITY, OK 73162 | School System: |
Oklahoma City #89 |
|
|
Country: (If noted) |
Land Size: |
0.1550 Acres |
||
|
Land Value: 14,850 |
|
|||
|
Sect 25-T12N-R4W Qtr SW |
MILAM HEIGHTS ADD
Block
001
Lot
000
|
|||
| Full Legal Description: MILAM HEIGHTS ADD 001 000 LOTS 11 & 12 |
| No comparable sales report available. | ||||||||||||||||||||||
|
||||||||||||||||||||||
| Value History (*The County Treasurer 405-713-1300 posts & collects actual tax amounts. Contact information HERE) | |||||||||||||
|---|---|---|---|---|---|---|---|---|---|---|---|---|---|
| Year | Market Value | Taxable Mkt Value | Gross Assessed | Exemption | Net Assessed | Millage | Est. Tax | Tax Savings | |||||
|
2025 |
181,616 |
137,328 |
15,105 |
0 |
15,105 |
122.90 |
$1,857 |
$599 |
|||||
|
2024 |
134,291 |
130,789 |
14,386 |
0 |
14,386 |
123.89 |
$1,782 |
$48 |
|||||
|
2023 |
134,291 |
124,561 |
13,701 |
0 |
13,701 |
122.82 |
$1,683 |
$131 |
|||||
|
2022 |
130,555 |
118,630 |
13,048 |
0 |
13,048 |
117.63 |
$1,535 |
$154 |
|||||
|
2021 |
112,981 |
112,981 |
12,427 |
0 |
12,427 |
117.70 |
$1,463 |
$0 |
|||||
| Property Account Status/Adjustments/Exemptions | ||
|---|---|---|
| Account # | Exemption Description | Amount |
|
R066540750 |
5% Capped Account |
0 |
| Property Deed Transaction History (Recorded in the County Clerk's Office) | ||||||||||
|---|---|---|---|---|---|---|---|---|---|---|
| Date | Type | Book | Page | Price | Grantor | Grantee | ||||
|
3/21/2018 |
|
Hmstd Off & |
$0 |
ONE TWO LLC |
ROUND INVESTMENT LLC |
|||||
|
10/3/2017 |
|
Deeds |
$0 |
PHAM LONG BA |
NGUYEN HAI TRONG |
|||||
|
10/3/2017 |
|
Deeds |
$55,500 |
NGUYEN HAI TRONG |
ONE TWO LLC |
|||||
|
3/2/2012 |
|
Hmstd Off & |
$0 |
TRAN NGOC ANH VU |
NGUYEN HAI TRONG |
|||||
|
3/15/1995 |
|
Historical |
$10,000 |
TRINH AI MANH |
TRAN NGOC ANH VU |
|||||
| Last Mailed Notice of Value (N.O.V.) Information/History | ||||||||
|---|---|---|---|---|---|---|---|---|
| Year | Date | Market Value | Taxable Market Value | Gross Assessed | Exemption | Net Assessed | ||
|
2026 |
02/23/2026 |
186,439 |
144,194 |
15,861 |
0 |
15,861 |
||
|
2025 |
02/14/2025 |
181,616 |
137,328 |
15,105 |
0 |
15,105 |
||
|
2024 |
02/13/2024 |
134,291 |
130,789 |
14,386 |
0 |
14,386 |
||
|
2023 |
02/14/2023 |
134,291 |
124,561 |
13,701 |
0 |
13,701 |
||
|
2022 |
03/15/2022 |
130,555 |
118,630 |
13,048 |
0 |
13,048 |
||
| Property Building Permit History | ||||||
|---|---|---|---|---|---|---|
| Issued | Permit # | Provided by | Bldg # | Description | Est Construction Cost | Status |
|
1/7/1992 |
10194618 |
OKLAHOMA CITY |
1 |
Add On |
4,000 |
Inactive |
| Click button on building number to access detailed information: | ||||||
|---|---|---|---|---|---|---|
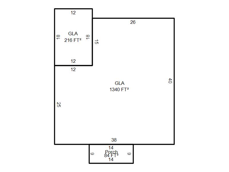
| Bldg # | Vacant/Improved Land | Bldg Description | Year Built | SqFt | # Stories | |
|
1 |
Improved |
Ranch 1 Story |
1930 |
1,556 |
1 Stories |
|
|
2 |
Improved |
Ranch 1 Story |
1930 |
360 |
1 Stories |
|