|
|
|
| Larry Stein Oklahoma County Assessor (405) 713-1200 - Public Access System |
|
|
|
|
|
|
| Real Property Display - Screen Produced 3/22/2026 12:38:46 PM | ||||
|---|---|---|---|---|
| Account: R068628400 | Type: Residential | Location: |
3505 NW 11TH ST |
|
| Building Name/Occupant: |
|
OKLAHOMA CITY |
||
| Owner Name 1: | NORDLOH CHRISTOPHER |
Parcel PIN#: |
2899-06-862-8400 |
|
| Owner Name 2: | NORDLOH CATHLEEN | 1/4 section #: |
2899 |
|
| Owner Name 3: | Parent Acct: |
|
||
| Billing Address: | 3505 NW 11TH ST | Tax District: |
|
|
| City, State, Zip | OKLAHOMA CITY, OK 73107-4405 | School System: |
Oklahoma City #89 |
|
|
Country: (If noted) |
Land Size: |
0.1550 Acres |
||
|
Land Value: 14,850 |
|
|||
|
Sect 25-T12N-R4W Qtr SW |
STULTS ADDITION
Block
002
Lot
011
|
|||
| Full Legal Description: STULTS ADDITION 002 011 |
| Photo & Sketch (if available) | Comp Sales (ordered by relevancy) |
|
||||||||||||||||||
|
||||||||||||||||||||
| Value History (*The County Treasurer 405-713-1300 posts & collects actual tax amounts. Contact information HERE) | |||||||||||||
|---|---|---|---|---|---|---|---|---|---|---|---|---|---|
| Year | Market Value | Taxable Mkt Value | Gross Assessed | Exemption | Net Assessed | Millage | Est. Tax | Tax Savings | |||||
|
2025 |
99,500 |
64,363 |
7,079 |
0 |
7,079 |
122.90 |
$870 |
$475 |
|||||
|
2024 |
95,500 |
61,299 |
6,742 |
0 |
6,742 |
123.89 |
$835 |
$466 |
|||||
|
2023 |
88,500 |
58,380 |
6,421 |
0 |
6,421 |
122.82 |
$789 |
$407 |
|||||
|
2022 |
75,500 |
55,600 |
6,115 |
0 |
6,115 |
117.63 |
$719 |
$257 |
|||||
|
2021 |
61,000 |
52,953 |
5,824 |
0 |
5,824 |
117.70 |
$686 |
$104 |
|||||
| Property Account Status/Adjustments/Exemptions | ||
|---|---|---|
| Account # | Exemption Description | Amount |
|
R068628400 |
5% Capped Account |
0 |
| Property Deed Transaction History (Recorded in the County Clerk's Office) | ||||||||||
|---|---|---|---|---|---|---|---|---|---|---|
| Date | Type | Book | Page | Price | Grantor | Grantee | ||||
|
4/7/2025 |
|
Hmstd Off & |
$0 |
NORDLOH CHRISTOPHER |
NORDLOH CHRISTOPHER |
|||||
|
1/6/2006 |
|
Deeds |
$0 |
NORDLOH CHRISTOPHER LYON KIM |
NORDLOH CHRISTOPHER |
|||||
|
6/29/2001 |
|
Deeds |
$28,000 |
HALICKI ZBIGNIEW JOHN |
NORDLOH CHRISTOPHER LYON KIM |
|||||
|
2/24/1995 |
|
Historical |
$16,500 |
GIBBANY RONALD WAYNE ETAL |
HALICKI ZBIGNIEW JOHN |
|||||
|
2/17/1995 |
|
Historical |
$0 |
GIBBANY CARL & E J |
GIBBANY RONALD WAYNE ETAL |
|||||
| Last Mailed Notice of Value (N.O.V.) Information/History | ||||||||
|---|---|---|---|---|---|---|---|---|
| Year | Date | Market Value | Taxable Market Value | Gross Assessed | Exemption | Net Assessed | ||
|
2026 |
02/23/2026 |
100,000 |
67,581 |
7,432 |
0 |
7,432 |
||
|
2025 |
02/14/2025 |
99,500 |
64,363 |
7,079 |
0 |
7,079 |
||
|
2024 |
02/13/2024 |
95,500 |
61,299 |
6,742 |
0 |
6,742 |
||
|
2023 |
02/14/2023 |
88,500 |
58,380 |
6,421 |
0 |
6,421 |
||
|
2022 |
03/15/2022 |
75,500 |
55,600 |
6,115 |
0 |
6,115 |
||
| Property Building Permit History | |||||||||||
|---|---|---|---|---|---|---|---|---|---|---|---|
| Issued | Permit # | Provided by | Bldg # | Description | Est Construction Cost | Status | |||||
| No Building Permit records returned. | |||||||||||
| Click button on building number to access detailed information: | ||||||
|---|---|---|---|---|---|---|
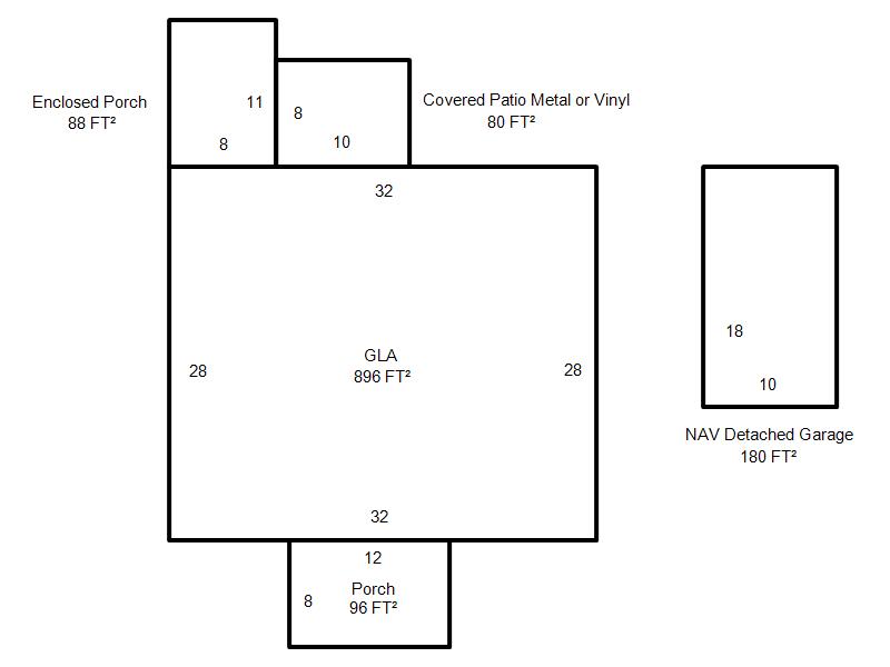
| Bldg # | Vacant/Improved Land | Bldg Description | Year Built | SqFt | # Stories | |
|
1 |
Improved |
Ranch 1 Story |
1940 |
896 |
1 Stories |
|