|
|
|
| Larry Stein Oklahoma County Assessor (405) 713-1200 - Public Access System |
|
|
|
|
|
|
| Real Property Display - Screen Produced 3/14/2026 3:35:20 AM | ||||
|---|---|---|---|---|
| Account: R210391920 | Type: Residential | Location: |
20726 AUTUMN CT |
|
| Building Name/Occupant: |
|
HARRAH |
||
| Owner Name 1: | CEDAR HOLLOW LP |
Parcel PIN#: |
1005-21-039-1920 |
|
| Owner Name 2: | 1/4 section #: |
1005 |
||
| Owner Name 3: | Parent Acct: |
1005-26-702-1000 |
||
| Billing Address: | 3350 RIVERWOOD PARKWAY BLDG 100 STE 800 | Tax District: |
|
|
| City, State, Zip | ATLANTA, GA 30339 | School System: |
Harrah #7 |
|
|
Country: (If noted) |
UNITED STATES |
Land Size: |
0.1322 Acres |
|
|
Land Value: 28,224 |
|
|||
|
Sect 2-T11N-R1E Qtr NE |
FALL CREEK SEC II PH I
Block
020
Lot
002
|
|||
| Full Legal Description: FALL CREEK SEC II PH I BLK 020 LOT 002 |
| Photo & Sketch (if available) | Comp Sales (ordered by relevancy) |
|
||||||||||||||||||
|
||||||||||||||||||||
| Value History (*The County Treasurer 405-713-1300 posts & collects actual tax amounts. Contact information HERE) | |||||||||||||
|---|---|---|---|---|---|---|---|---|---|---|---|---|---|
| Year | Market Value | Taxable Mkt Value | Gross Assessed | Exemption | Net Assessed | Millage | Est. Tax | Tax Savings | |||||
|
2025 |
60,450 |
60,450 |
6,649 |
0 |
6,649 |
107.54 |
$715 |
$0 |
|||||
|
2024 |
60,450 |
60,450 |
6,649 |
0 |
6,649 |
110.62 |
$736 |
$0 |
|||||
|
2023 |
60,450 |
60,450 |
6,649 |
0 |
6,649 |
97.88 |
$651 |
$0 |
|||||
|
2022 |
181,000 |
86,203 |
9,481 |
0 |
9,481 |
99.50 |
$943 |
$1,038 |
|||||
|
2021 |
158,000 |
82,099 |
9,030 |
0 |
9,030 |
99.52 |
$899 |
$831 |
|||||
| Property Account Status/Adjustments/Exemptions | ||
|---|---|---|
| Account # | Exemption Description | Amount |
|
R210391920 |
5% Capped Account |
0 |
| Property Deed Transaction History (Recorded in the County Clerk's Office) | |||||||
|---|---|---|---|---|---|---|---|
| Date | Type | Book | Page | Price | Grantor | Grantee | |
|
1/11/2012 |
|
Mult Parcel |
$522,000 |
FALL CREEK DEVELOPMENT LLC |
CEDAR HOLLOW LP |
||
| Last Mailed Notice of Value (N.O.V.) Information/History | ||||||||
|---|---|---|---|---|---|---|---|---|
| Year | Date | Market Value | Taxable Market Value | Gross Assessed | Exemption | Net Assessed | ||
|
2023 |
01/23/2023 |
201,500 |
90,513 |
9,956 |
0 |
9,956 |
||
|
2022 |
02/22/2022 |
181,000 |
86,203 |
9,481 |
0 |
9,481 |
||
|
2021 |
02/24/2021 |
158,000 |
82,099 |
9,030 |
0 |
9,030 |
||
|
2020 |
02/21/2020 |
143,500 |
78,190 |
8,600 |
0 |
8,600 |
||
|
2019 |
02/26/2019 |
149,500 |
74,467 |
8,191 |
0 |
8,191 |
||
| Property Building Permit History | |||||||||||
|---|---|---|---|---|---|---|---|---|---|---|---|
| Issued | Permit # | Provided by | Bldg # | Description | Est Construction Cost | Status | |||||
| No Building Permit records returned. | |||||||||||
| Click button on building number to access detailed information: | ||||||
|---|---|---|---|---|---|---|
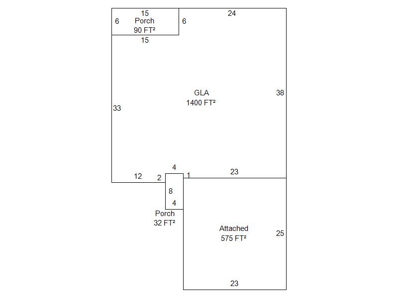
| Bldg # | Vacant/Improved Land | Bldg Description | Year Built | SqFt | # Stories | |
|
1 |
Improved |
Ranch 1 Story |
2012 |
1,400 |
1 Stories |
|