|
|
|
| Larry Stein Oklahoma County Assessor (405) 713-1200 - Public Access System |
|
|
|
|
|
|
| Real Property Display - Screen Produced 3/26/2026 4:02:55 AM | ||||
|---|---|---|---|---|
| Account: R065260615 | Type: Residential | Location: |
3428 NW 21ST ST |
|
| Building Name/Occupant: |
|
OKLAHOMA CITY |
||
| Owner Name 1: | VINNEDGE JAY |
Parcel PIN#: |
2900-06-526-0615 |
|
| Owner Name 2: | VINNEDGE DANIELLE L | 1/4 section #: |
2900 |
|
| Owner Name 3: | Parent Acct: |
|
||
| Billing Address: | 3428 NW 21ST ST | Tax District: |
|
|
| City, State, Zip | OKLAHOMA CITY, OK 73107 | School System: |
Oklahoma City #89 |
|
|
Country: (If noted) |
Land Size: |
0.1860 Acres |
||
|
Land Value: 38,880 |
|
|||
|
Sect 25-T12N-R4W Qtr NW |
LINWOOD PLACE AMENDED
Block
017
Lot
008
|
|||
| Full Legal Description: LINWOOD PLACE AMENDED 017 008 |
| Photo & Sketch (if available) | Comp Sales (ordered by relevancy) |
|
||||||||||||||||||
|
||||||||||||||||||||
| Value History (*The County Treasurer 405-713-1300 posts & collects actual tax amounts. Contact information HERE) | |||||||||||||
|---|---|---|---|---|---|---|---|---|---|---|---|---|---|
| Year | Market Value | Taxable Mkt Value | Gross Assessed | Exemption | Net Assessed | Millage | Est. Tax | Tax Savings | |||||
| No PropertyValuation records returned. | |||||||||||||
| Property Account Status/Adjustments/Exemptions | ||
|---|---|---|
| Account # | Exemption Description | Amount |
|
R065260615 |
3% Cap Homestead |
0 |
|
R065260615 |
Homestead |
1,000 |
| Property Deed Transaction History (Recorded in the County Clerk's Office) | ||||||||||
|---|---|---|---|---|---|---|---|---|---|---|
| Date | Type | Book | Page | Price | Grantor | Grantee | ||||
|
3/1/2021 |
|
Deeds |
$324,000 |
SLAUGHTER JAMES D & STEPHANIE T |
VINNEDGE JAY |
|||||
|
10/2/2009 |
|
Deeds |
$229,500 |
SKINNER KYLE D & JANEA |
SLAUGHTER JAMES D & STEPHANIE T |
|||||
|
2/13/2009 |
|
Deeds |
$113,500 |
FEDERAL NATIONAL MTG ASSOCIATION |
SKINNER KYLE D & JANEA |
|||||
|
8/4/2008 |
|
Hmstd Off & |
$0 |
CLEMENS AARON |
FEDERAL NATIONAL MTG ASSOCIATION |
|||||
|
4/13/2007 |
|
Deeds |
$188,500 |
FLETCHER ROBERT |
CLEMENS AARON |
|||||
| Last Mailed Notice of Value (N.O.V.) Information/History | ||||||||
|---|---|---|---|---|---|---|---|---|
| Year | Date | Market Value | Taxable Market Value | Gross Assessed | Exemption | Net Assessed | ||
| No Notice of Value N.O.V. records returned. | ||||||||
| Property Building Permit History | |||||||||||
|---|---|---|---|---|---|---|---|---|---|---|---|
| Issued | Permit # | Provided by | Bldg # | Description | Est Construction Cost | Status | |||||
| No Building Permit records returned. | |||||||||||
| Click button on building number to access detailed information: | ||||||
|---|---|---|---|---|---|---|
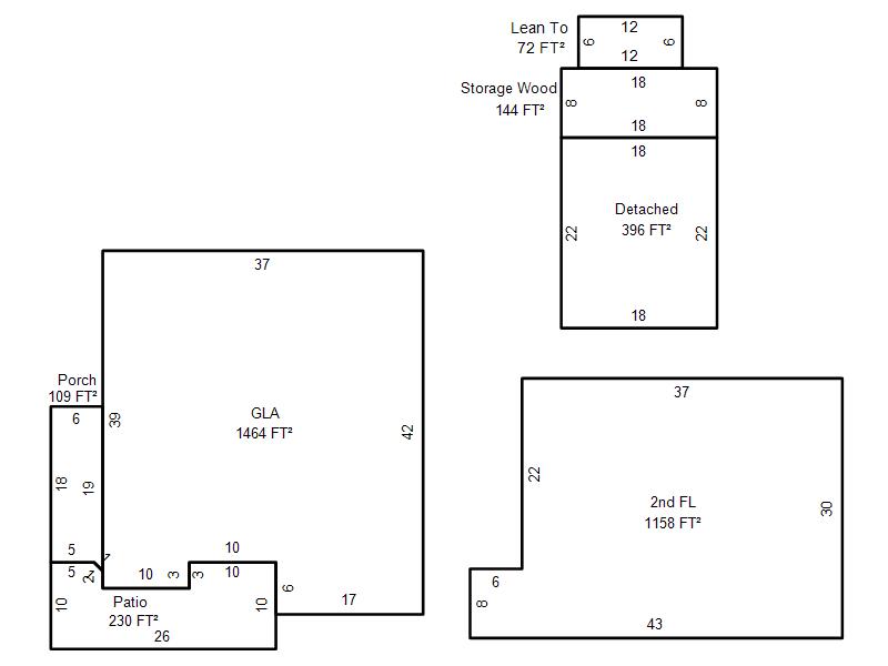
| Bldg # | Vacant/Improved Land | Bldg Description | Year Built | SqFt | # Stories | |
|
1 |
Improved |
2 Story |
1931 |
2,622 |
2 Stories |
|