|
|
|
| Larry Stein Oklahoma County Assessor (405) 713-1200 - Public Access System |
|
|
|
|
|
|
| Real Property Display - Screen Produced 3/24/2026 10:06:37 AM | ||||
|---|---|---|---|---|
| Account: R065261575 | Type: Residential | Location: |
3417 NW 18TH ST |
|
| Building Name/Occupant: |
|
OKLAHOMA CITY |
||
| Owner Name 1: | JENNINGS STEVEN M |
Parcel PIN#: |
2900-06-526-1575 |
|
| Owner Name 2: | 1/4 section #: |
2900 |
||
| Owner Name 3: | Parent Acct: |
|
||
| Billing Address: | 3417 NW 18TH ST | Tax District: |
|
|
| City, State, Zip | OKLAHOMA CITY, OK 73107-3814 | School System: |
Oklahoma City #89 |
|
|
Country: (If noted) |
Land Size: |
0.1722 Acres |
||
|
Land Value: 27,000 |
|
|||
|
Sect 25-T12N-R4W Qtr NW |
LINWOOD PLACE AMENDED
Block
019
Lot
000
|
|||
| Full Legal Description: LINWOOD PLACE AMENDED 019 000 LOTS 28 & 29 |
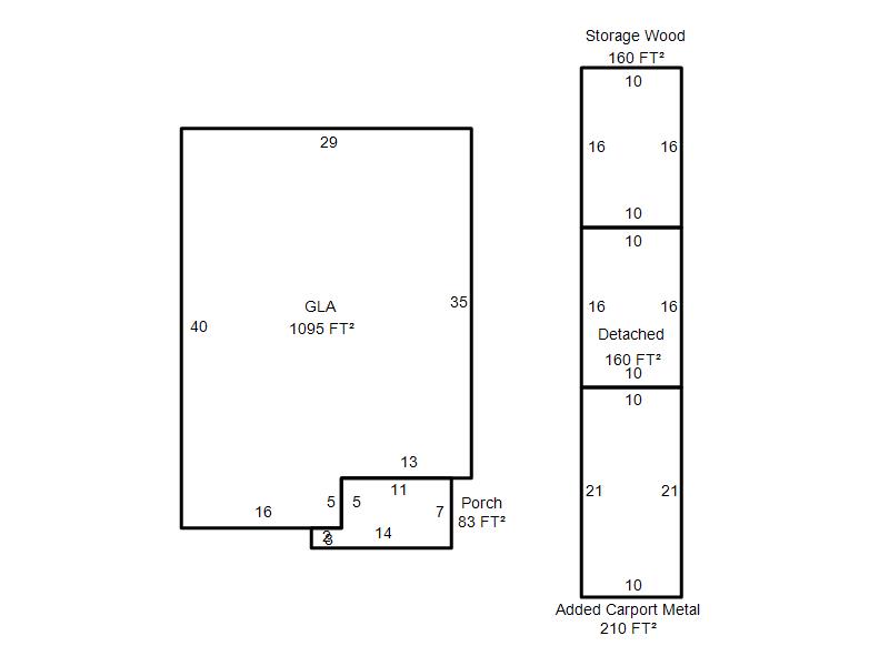
| Photo & Sketch (if available) | Comp Sales (ordered by relevancy) |
|
||||||||||||||||||
|
||||||||||||||||||||
| Value History (*The County Treasurer 405-713-1300 posts & collects actual tax amounts. Contact information HERE) | |||||||||||||
|---|---|---|---|---|---|---|---|---|---|---|---|---|---|
| Year | Market Value | Taxable Mkt Value | Gross Assessed | Exemption | Net Assessed | Millage | Est. Tax | Tax Savings | |||||
|
2025 |
148,500 |
79,192 |
8,710 |
1,000 |
7,710 |
122.90 |
$948 |
$1,060 |
|||||
|
2024 |
142,500 |
76,886 |
8,457 |
1,000 |
7,457 |
123.89 |
$924 |
$1,018 |
|||||
|
2023 |
121,000 |
74,647 |
8,211 |
1,000 |
7,211 |
122.82 |
$886 |
$749 |
|||||
|
2022 |
116,500 |
72,473 |
7,971 |
1,000 |
6,971 |
117.63 |
$820 |
$687 |
|||||
|
2021 |
97,500 |
70,363 |
7,739 |
1,000 |
6,739 |
117.70 |
$793 |
$469 |
|||||
| Property Account Status/Adjustments/Exemptions | ||
|---|---|---|
| Account # | Exemption Description | Amount |
|
R065261575 |
Freeze Senior Valuation |
0 |
|
R065261575 |
Homestead |
1,000 |
|
R065261575 |
3% Cap Homestead |
0 |
| Property Deed Transaction History (Recorded in the County Clerk's Office) | |||||||
|---|---|---|---|---|---|---|---|
| Date | Type | Book | Page | Price | Grantor | Grantee | |
|
12/16/1996 |
|
Historical |
$48,500 |
BUMGARDNER JEFFREY C & STACEY |
JENNINGS STEVEN M |
||
|
8/16/1994 |
|
Historical |
$38,000 |
CARMICHAEL JOSEPHINE N |
BUMGARDNER JEFFREY C & STACEY |
||
|
10/1/1986 |
|
Historical |
$0 |
CARMICHAEL M M ETAL |
CARMICHAEL JOSEPHINE N |
||
|
11/11/1911 |
|
Historical |
$0 |
|
CARMICHAEL M M ETAL |
||
| Last Mailed Notice of Value (N.O.V.) Information/History | ||||||||
|---|---|---|---|---|---|---|---|---|
| Year | Date | Market Value | Taxable Market Value | Gross Assessed | Exemption | Net Assessed | ||
|
2025 |
02/14/2025 |
148,500 |
79,192 |
8,710 |
1,000 |
7,710 |
||
|
2024 |
02/13/2024 |
142,500 |
76,886 |
8,457 |
1,000 |
7,457 |
||
|
2023 |
02/14/2023 |
121,000 |
74,647 |
8,211 |
1,000 |
7,211 |
||
|
2022 |
03/15/2022 |
116,500 |
72,473 |
7,971 |
1,000 |
6,971 |
||
|
2021 |
03/19/2021 |
97,500 |
70,363 |
7,739 |
1,000 |
6,739 |
||
| Property Building Permit History | ||||||
|---|---|---|---|---|---|---|
| Issued | Permit # | Provided by | Bldg # | Description | Est Construction Cost | Status |
|
5/12/1999 |
10194337 |
OKLAHOMA CITY |
1 |
Burn - Trip |
2,000 |
Inactive |
| Click button on building number to access detailed information: | ||||||
|---|---|---|---|---|---|---|
| Bldg # | Vacant/Improved Land | Bldg Description | Year Built | SqFt | # Stories | |
|
1 |
Improved |
Ranch 1 Story |
1933 |
1,095 |
1 Stories |
|