|
|
|
| Larry Stein Oklahoma County Assessor (405) 713-1200 - Public Access System |
|
|
|
|
|
|
| Real Property Display - Screen Produced 3/24/2026 10:04:55 AM | ||||
|---|---|---|---|---|
| Account: R065261710 | Type: Residential | Location: |
3420 NW 18TH ST |
|
| Building Name/Occupant: |
|
OKLAHOMA CITY |
||
| Owner Name 1: | BRITT JEANNE E |
Parcel PIN#: |
2900-06-526-1710 |
|
| Owner Name 2: | 1/4 section #: |
2900 |
||
| Owner Name 3: | Parent Acct: |
|
||
| Billing Address: | 3420 NW 18TH ST | Tax District: |
|
|
| City, State, Zip | OKLAHOMA CITY, OK 73107 | School System: |
Oklahoma City #89 |
|
|
Country: (If noted) |
Land Size: |
0.1722 Acres |
||
|
Land Value: 27,000 |
|
|||
|
Sect 25-T12N-R4W Qtr NW |
LINWOOD PLACE AMENDED
Block
020
Lot
000
|
|||
| Full Legal Description: LINWOOD PLACE AMENDED 020 000 LOTS 11 & 12 |
| Photo & Sketch (if available) | Comp Sales (ordered by relevancy) |
|
||||||||||||||||||
|
||||||||||||||||||||
| Value History (*The County Treasurer 405-713-1300 posts & collects actual tax amounts. Contact information HERE) | |||||||||||||
|---|---|---|---|---|---|---|---|---|---|---|---|---|---|
| Year | Market Value | Taxable Mkt Value | Gross Assessed | Exemption | Net Assessed | Millage | Est. Tax | Tax Savings | |||||
|
2025 |
139,000 |
38,847 |
4,273 |
1,000 |
3,273 |
122.90 |
$402 |
$1,477 |
|||||
|
2024 |
132,500 |
38,847 |
4,273 |
1,000 |
3,273 |
123.89 |
$406 |
$1,400 |
|||||
|
2023 |
110,000 |
38,847 |
4,273 |
1,000 |
3,273 |
122.82 |
$402 |
$1,084 |
|||||
|
2022 |
104,000 |
38,847 |
4,273 |
1,000 |
3,273 |
117.63 |
$385 |
$961 |
|||||
|
2021 |
86,500 |
38,847 |
4,273 |
1,000 |
3,273 |
117.70 |
$385 |
$735 |
|||||
| Property Account Status/Adjustments/Exemptions | ||
|---|---|---|
| Account # | Exemption Description | Amount |
|
R065261710 |
Freeze Senior Valuation |
0 |
|
R065261710 |
Homestead |
1,000 |
|
R065261710 |
3% Cap Homestead |
0 |
| Property Deed Transaction History (Recorded in the County Clerk's Office) | |||||||
|---|---|---|---|---|---|---|---|
| Date | Type | Book | Page | Price | Grantor | Grantee | |
|
5/2/2004 |
|
Deeds |
$0 |
BRITT WILLARD R JR |
BRITT JEANNE E |
||
|
5/1/2004 |
|
Deeds |
$30,000 |
BRITT JEANNE E |
BRITT JEANNE E BRITT WILLARD R JR |
||
|
6/5/1998 |
|
Historical |
$0 |
BRITT WILLARD R & JEANNE E |
BRITT JEANNE E |
||
|
11/3/1992 |
|
Historical |
$0 |
HARGROVE SUSAN W |
BRITT WILLARD R & JEANNE E |
||
|
11/11/1911 |
|
Historical |
$0 |
|
HARGROVE SUSAN W |
||
| Last Mailed Notice of Value (N.O.V.) Information/History | ||||||||
|---|---|---|---|---|---|---|---|---|
| Year | Date | Market Value | Taxable Market Value | Gross Assessed | Exemption | Net Assessed | ||
|
2025 |
02/14/2025 |
139,000 |
38,847 |
4,273 |
1,000 |
3,273 |
||
|
2024 |
02/13/2024 |
132,500 |
38,847 |
4,273 |
1,000 |
3,273 |
||
|
2023 |
02/14/2023 |
110,000 |
38,847 |
4,273 |
1,000 |
3,273 |
||
|
2022 |
03/15/2022 |
104,000 |
38,847 |
4,273 |
1,000 |
3,273 |
||
|
2021 |
03/19/2021 |
86,500 |
38,847 |
4,273 |
1,000 |
3,273 |
||
| Property Building Permit History | |||||||||||
|---|---|---|---|---|---|---|---|---|---|---|---|
| Issued | Permit # | Provided by | Bldg # | Description | Est Construction Cost | Status | |||||
| No Building Permit records returned. | |||||||||||
| Click button on building number to access detailed information: | ||||||
|---|---|---|---|---|---|---|
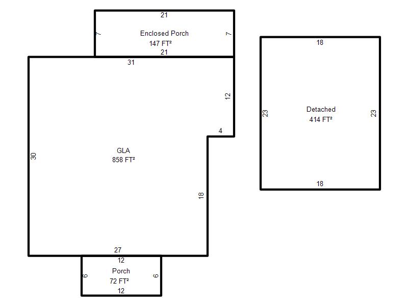
| Bldg # | Vacant/Improved Land | Bldg Description | Year Built | SqFt | # Stories | |
|
1 |
Improved |
Ranch 1 Story |
1925 |
858 |
1 Stories |
|