|
|
|
| Larry Stein Oklahoma County Assessor (405) 713-1200 - Public Access System |
|
|
|
|
|
|
| Real Property Display - Screen Produced 4/1/2026 3:42:15 AM | ||||
|---|---|---|---|---|
| Account: R150628930 | Type: Residential | Location: |
3932 E FAIRVIEW ST |
|
| Building Name/Occupant: |
|
DEL CITY |
||
| Owner Name 1: | WARREN CHARLES DANIEL |
Parcel PIN#: |
1421-15-062-8930 |
|
| Owner Name 2: | 1/4 section #: |
1421 |
||
| Owner Name 3: | Parent Acct: |
|
||
| Billing Address: | 3932 E FAIRVIEW DR | Tax District: |
|
|
| City, State, Zip | DEL CITY, OK 73115-2018 | School System: |
Mid-Del #52 |
|
|
Country: (If noted) |
Land Size: |
0.4591 Acres |
||
|
Land Value: 25,706 |
|
|||
|
Sect 6-T11N-R2W Qtr NE |
MATHEWS MEADOW LAWN
Block
018
Lot
004
|
|||
| Full Legal Description: MATHEWS MEADOW LAWN 018 004 |
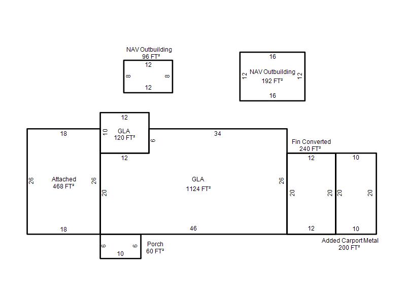
| Photo & Sketch (if available) | Comp Sales (ordered by relevancy) |
|
||||||||||||||||||
|
||||||||||||||||||||
| Value History (*The County Treasurer 405-713-1300 posts & collects actual tax amounts. Contact information HERE) | |||||||||||||
|---|---|---|---|---|---|---|---|---|---|---|---|---|---|
| Year | Market Value | Taxable Mkt Value | Gross Assessed | Exemption | Net Assessed | Millage | Est. Tax | Tax Savings | |||||
|
2026 |
142,000 |
79,216 |
8,713 |
1,000 |
7,713 |
114.72 |
$885 |
$907 |
|||||
|
2025 |
140,500 |
79,216 |
8,713 |
1,000 |
7,713 |
114.72 |
$885 |
$888 |
|||||
|
2024 |
139,000 |
79,216 |
8,713 |
1,000 |
7,713 |
117.21 |
$904 |
$888 |
|||||
|
2023 |
125,500 |
79,216 |
8,713 |
1,000 |
7,713 |
112.46 |
$867 |
$685 |
|||||
|
2022 |
118,000 |
79,216 |
8,713 |
1,000 |
7,713 |
110.76 |
$854 |
$583 |
|||||
| Property Account Status/Adjustments/Exemptions | ||
|---|---|---|
| Account # | Exemption Description | Amount |
|
R150628930 |
Freeze Senior Valuation |
0 |
|
R150628930 |
Homestead |
1,000 |
|
R150628930 |
3% Cap Homestead |
0 |
| Property Deed Transaction History (Recorded in the County Clerk's Office) | |||||||
|---|---|---|---|---|---|---|---|
| Date | Type | Book | Page | Price | Grantor | Grantee | |
|
6/15/2007 |
|
Deeds |
$42,000 |
WARREN ESTHER MAE TRS WARREN ESTHER MAE REV TRUST |
WARREN CHARLES DANIEL |
||
|
10/19/2004 |
|
Deeds |
$0 |
WARREN ESTHER MAE |
WARREN ESTHER MAE TRS WARREN ESTHER MAE REV TRUST |
||
|
8/24/1995 |
|
Historical |
$0 |
WARREN ARTHUR JR |
WARREN ESTHER MAE |
||
|
11/11/1911 |
|
Historical |
$0 |
|
WARREN ARTHUR JR |
||
| Last Mailed Notice of Value (N.O.V.) Information/History | ||||||||
|---|---|---|---|---|---|---|---|---|
| Year | Date | Market Value | Taxable Market Value | Gross Assessed | Exemption | Net Assessed | ||
|
2026 |
02/06/2026 |
142,000 |
79,216 |
8,713 |
1,000 |
7,713 |
||
|
2025 |
01/31/2025 |
140,500 |
79,216 |
8,713 |
1,000 |
7,713 |
||
|
2024 |
01/22/2024 |
139,000 |
79,216 |
8,713 |
1,000 |
7,713 |
||
|
2023 |
01/23/2023 |
125,500 |
79,216 |
8,713 |
1,000 |
7,713 |
||
|
2022 |
02/22/2022 |
118,000 |
79,216 |
8,713 |
1,000 |
7,713 |
||
| Property Building Permit History | ||||||
|---|---|---|---|---|---|---|
| Issued | Permit # | Provided by | Bldg # | Description | Est Construction Cost | Status |
|
5/9/2000 |
10246723 |
DEL CITY |
1 |
Other |
2,000 |
Inactive |
|
7/14/1999 |
10246724 |
DEL CITY |
1 |
Add On |
0 |
Inactive |
| Click button on building number to access detailed information: | ||||||
|---|---|---|---|---|---|---|
| Bldg # | Vacant/Improved Land | Bldg Description | Year Built | SqFt | # Stories | |
|
1 |
Improved |
Ranch 1 Story |
1950 |
1,244 |
1 Stories |
|