|
|
|
| Larry Stein Oklahoma County Assessor (405) 713-1200 - Public Access System |
|
|
|
|
|
|
| Real Property Display - Screen Produced 4/2/2026 3:18:42 PM | ||||
|---|---|---|---|---|
| Account: R116214875 | Type: Residential | Location: |
3845 NW 16TH ST |
|
| Building Name/Occupant: |
|
OKLAHOMA CITY |
||
| Owner Name 1: | GIBSON PHILLIP DALE |
Parcel PIN#: |
2901-11-621-4875 |
|
| Owner Name 2: | 1/4 section #: |
2901 |
||
| Owner Name 3: | Parent Acct: |
|
||
| Billing Address: | 3845 NW 16TH ST | Tax District: |
|
|
| City, State, Zip | OKLAHOMA CITY, OK 73107-4324 | School System: |
Oklahoma City #89 |
|
|
Country: (If noted) |
Land Size: |
0.1543 Acres |
||
|
Land Value: 17,472 |
|
|||
|
Sect 26-T12N-R4W Qtr NE |
STEVE PENNINGTON 7TH
Block
005
Lot
020
|
|||
| Full Legal Description: STEVE PENNINGTON 7TH 005 020 |
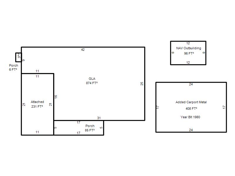
| Photo & Sketch (if available) | Comp Sales (ordered by relevancy) |
|
||||||||||||||||||
|
||||||||||||||||||||
| Value History (*The County Treasurer 405-713-1300 posts & collects actual tax amounts. Contact information HERE) | |||||||||||||
|---|---|---|---|---|---|---|---|---|---|---|---|---|---|
| Year | Market Value | Taxable Mkt Value | Gross Assessed | Exemption | Net Assessed | Millage | Est. Tax | Tax Savings | |||||
|
2026 |
123,500 |
56,107 |
6,171 |
2,000 |
4,171 |
122.90 |
$513 |
$1,157 |
|||||
|
2025 |
118,500 |
56,107 |
6,171 |
2,000 |
4,171 |
122.90 |
$513 |
$1,089 |
|||||
|
2024 |
119,000 |
56,107 |
6,171 |
2,000 |
4,171 |
123.89 |
$517 |
$1,105 |
|||||
|
2023 |
109,500 |
56,107 |
6,171 |
2,000 |
4,171 |
122.82 |
$512 |
$967 |
|||||
|
2022 |
96,000 |
56,107 |
6,171 |
2,000 |
4,171 |
117.63 |
$491 |
$751 |
|||||
| Property Account Status/Adjustments/Exemptions | ||
|---|---|---|
| Account # | Exemption Description | Amount |
|
R116214875 |
Freeze Senior Valuation |
0 |
|
R116214875 |
Senior Additional Homestead |
1,000 |
|
R116214875 |
3% Cap Homestead |
0 |
|
R116214875 |
Homestead |
1,000 |
| Property Deed Transaction History (Recorded in the County Clerk's Office) | |||||||
|---|---|---|---|---|---|---|---|
| Date | Type | Book | Page | Price | Grantor | Grantee | |
|
11/24/2010 |
|
Deeds |
$75,000 |
CASTILLO CARLOS A & ONELIA |
GIBSON PHILLIP DALE |
||
|
7/24/1995 |
|
Historical |
$26,000 |
HOGAN HAROLD S |
CASTILLO CARLOS A & ONELIA |
||
|
11/23/1992 |
|
Historical |
$66,000 |
MCENTIRE CALVIN C ETAL |
HOGAN HAROLD S |
||
|
3/30/1989 |
|
Historical |
$0 |
MCENTIRE MARY L |
MCENTIRE CALVIN C ETAL |
||
|
11/11/1911 |
|
Historical |
$0 |
|
MCENTIRE MARY L |
||
| Last Mailed Notice of Value (N.O.V.) Information/History | ||||||||
|---|---|---|---|---|---|---|---|---|
| Year | Date | Market Value | Taxable Market Value | Gross Assessed | Exemption | Net Assessed | ||
|
2026 |
02/23/2026 |
123,500 |
56,107 |
6,171 |
2,000 |
4,171 |
||
|
2024 |
02/13/2024 |
119,000 |
56,107 |
6,171 |
2,000 |
4,171 |
||
|
2023 |
02/14/2023 |
109,500 |
56,107 |
6,171 |
2,000 |
4,171 |
||
|
2022 |
03/15/2022 |
96,000 |
56,107 |
6,171 |
2,000 |
4,171 |
||
|
2021 |
03/19/2021 |
80,500 |
56,107 |
6,171 |
2,000 |
4,171 |
||
| Property Building Permit History | ||||||
|---|---|---|---|---|---|---|
| Issued | Permit # | Provided by | Bldg # | Description | Est Construction Cost | Status |
|
6/6/1997 |
10205630 |
OKLAHOMA CITY |
1 |
Carport |
1,000 |
Inactive |
| Click button on building number to access detailed information: | ||||||
|---|---|---|---|---|---|---|
| Bldg # | Vacant/Improved Land | Bldg Description | Year Built | SqFt | # Stories | |
|
1 |
Improved |
Ranch 1 Story |
1950 |
874 |
1 Stories |
|