|
|
|
| Larry Stein Oklahoma County Assessor (405) 713-1200 - Public Access System |
|
|
|
|
|
|
| Real Property Display - Screen Produced 4/2/2026 3:26:55 PM | ||||
|---|---|---|---|---|
| Account: R116215600 | Type: Residential | Location: |
1749 N ROFF AVE |
|
| Building Name/Occupant: |
|
OKLAHOMA CITY |
||
| Owner Name 1: | DELEON ROEL A & ANGELICA |
Parcel PIN#: |
2901-11-621-5600 |
|
| Owner Name 2: | 1/4 section #: |
2901 |
||
| Owner Name 3: | Parent Acct: |
|
||
| Billing Address: | 4205 NW 33RD ST | Tax District: |
|
|
| City, State, Zip | OKLAHOMA CITY , OK 73112 | School System: |
Oklahoma City #89 |
|
|
Country: (If noted) |
Land Size: |
0.1722 Acres |
||
|
Land Value: 19,508 |
|
|||
|
Sect 26-T12N-R4W Qtr NE |
STEVE PENNINGTON 7TH
Block
006
Lot
009
|
|||
| Full Legal Description: STEVE PENNINGTON 7TH 006 009 |
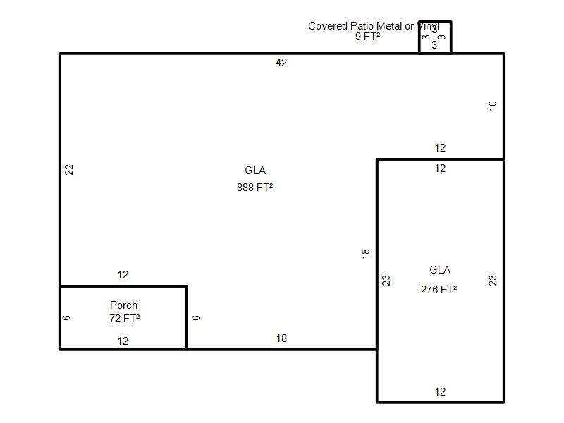
| Photo & Sketch (if available) | Comp Sales (ordered by relevancy) |
|
||||||||||||||||||
|
||||||||||||||||||||
| Value History (*The County Treasurer 405-713-1300 posts & collects actual tax amounts. Contact information HERE) | |||||||||||||
|---|---|---|---|---|---|---|---|---|---|---|---|---|---|
| Year | Market Value | Taxable Mkt Value | Gross Assessed | Exemption | Net Assessed | Millage | Est. Tax | Tax Savings | |||||
|
2026 |
130,000 |
99,723 |
10,969 |
0 |
10,969 |
122.90 |
$1,348 |
$409 |
|||||
|
2025 |
124,000 |
94,975 |
10,446 |
0 |
10,446 |
122.90 |
$1,284 |
$392 |
|||||
|
2024 |
116,000 |
90,453 |
9,949 |
0 |
9,949 |
123.89 |
$1,233 |
$348 |
|||||
|
2023 |
107,500 |
86,146 |
9,475 |
0 |
9,475 |
122.82 |
$1,164 |
$288 |
|||||
|
2022 |
93,500 |
82,044 |
9,023 |
0 |
9,023 |
117.63 |
$1,062 |
$148 |
|||||
| Property Account Status/Adjustments/Exemptions | ||
|---|---|---|
| Account # | Exemption Description | Amount |
|
R116215600 |
5% Capped Account |
0 |
| Property Deed Transaction History (Recorded in the County Clerk's Office) | |||||||
|---|---|---|---|---|---|---|---|
| Date | Type | Book | Page | Price | Grantor | Grantee | |
|
12/2/2003 |
|
Hmstd Off & |
$0 |
NEPTALY DELEON |
DELEON ROEL A & ANGELICA |
||
|
6/14/2002 |
|
Deeds |
$60,000 |
MELTON LEONA & RODERICK |
NEPTALY DELEON |
||
|
9/20/2001 |
|
Deeds |
$0 |
PIERRE LEONA |
MELTON LEONA & RODERICK |
||
|
10/5/1992 |
|
Historical |
$25,000 |
BRIDGES EMILY D |
PIERRE LEONA |
||
|
11/11/1911 |
|
Historical |
$0 |
|
BRIDGES EMILY D |
||
| Last Mailed Notice of Value (N.O.V.) Information/History | ||||||||
|---|---|---|---|---|---|---|---|---|
| Year | Date | Market Value | Taxable Market Value | Gross Assessed | Exemption | Net Assessed | ||
|
2026 |
02/23/2026 |
130,000 |
99,723 |
10,969 |
0 |
10,969 |
||
|
2025 |
02/14/2025 |
124,000 |
94,975 |
10,446 |
0 |
10,446 |
||
|
2024 |
02/13/2024 |
116,000 |
90,453 |
9,949 |
0 |
9,949 |
||
|
2023 |
02/14/2023 |
107,500 |
86,146 |
9,475 |
0 |
9,475 |
||
|
2022 |
03/15/2022 |
93,500 |
82,044 |
9,023 |
0 |
9,023 |
||
| Property Building Permit History | |||||||||||
|---|---|---|---|---|---|---|---|---|---|---|---|
| Issued | Permit # | Provided by | Bldg # | Description | Est Construction Cost | Status | |||||
| No Building Permit records returned. | |||||||||||
| Click button on building number to access detailed information: | ||||||
|---|---|---|---|---|---|---|
| Bldg # | Vacant/Improved Land | Bldg Description | Year Built | SqFt | # Stories | |
|
1 |
Improved |
Ranch 1 Story |
1950 |
1,164 |
1 Stories |
|