|
|
|
| Larry Stein Oklahoma County Assessor (405) 713-1200 - Public Access System |
|
|
|
|
|
|
| Real Property Display - Screen Produced 4/2/2026 3:18:43 PM | ||||
|---|---|---|---|---|
| Account: R116215900 | Type: Residential | Location: |
3917 NW 16TH ST |
|
| Building Name/Occupant: |
|
OKLAHOMA CITY |
||
| Owner Name 1: | GRAYSON ALISHA R |
Parcel PIN#: |
2901-11-621-5900 |
|
| Owner Name 2: | 1/4 section #: |
2901 |
||
| Owner Name 3: | Parent Acct: |
|
||
| Billing Address: | 3917 NW 16TH ST | Tax District: |
|
|
| City, State, Zip | OKLAHOMA CITY, OK 73107 | School System: |
Oklahoma City #89 |
|
|
Country: (If noted) |
Land Size: |
0.1452 Acres |
||
|
Land Value: 16,450 |
|
|||
|
Sect 26-T12N-R4W Qtr NE |
STEVE PENNINGTON 7TH
Block
006
Lot
021
|
|||
| Full Legal Description: STEVE PENNINGTON 7TH 006 021 |
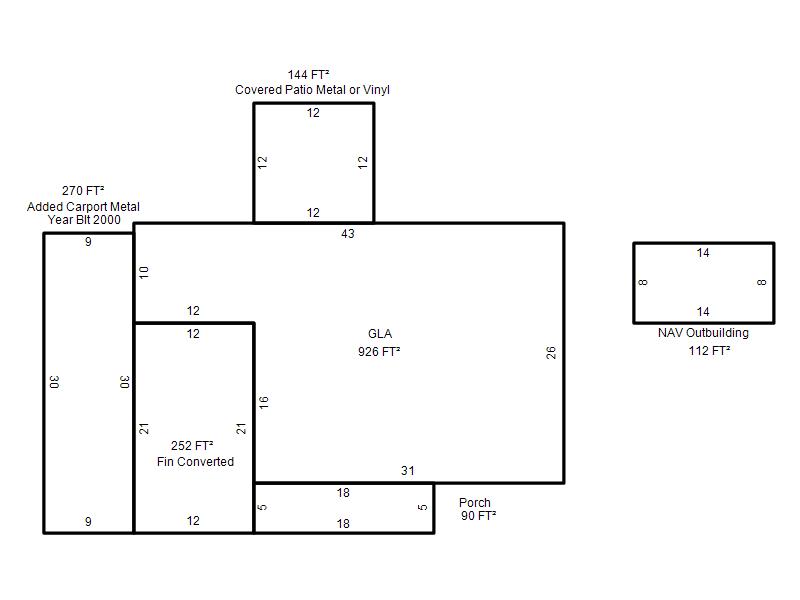
| Photo & Sketch (if available) | Comp Sales (ordered by relevancy) |
|
||||||||||||||||||
|
||||||||||||||||||||
| Value History (*The County Treasurer 405-713-1300 posts & collects actual tax amounts. Contact information HERE) | |||||||||||||
|---|---|---|---|---|---|---|---|---|---|---|---|---|---|
| Year | Market Value | Taxable Mkt Value | Gross Assessed | Exemption | Net Assessed | Millage | Est. Tax | Tax Savings | |||||
|
2026 |
129,000 |
107,844 |
11,861 |
0 |
11,861 |
122.90 |
$1,458 |
$286 |
|||||
|
2025 |
123,500 |
102,709 |
11,297 |
0 |
11,297 |
122.90 |
$1,389 |
$281 |
|||||
|
2024 |
124,000 |
97,819 |
10,759 |
0 |
10,759 |
123.89 |
$1,333 |
$357 |
|||||
|
2023 |
115,000 |
93,161 |
10,246 |
0 |
10,246 |
122.82 |
$1,259 |
$295 |
|||||
|
2022 |
100,500 |
88,725 |
9,759 |
0 |
9,759 |
117.63 |
$1,148 |
$152 |
|||||
| Property Account Status/Adjustments/Exemptions | ||
|---|---|---|
| Account # | Exemption Description | Amount |
|
R116215900 |
5% Capped Account |
0 |
| Property Deed Transaction History (Recorded in the County Clerk's Office) | ||||||||||
|---|---|---|---|---|---|---|---|---|---|---|
| Date | Type | Book | Page | Price | Grantor | Grantee | ||||
|
3/23/2020 |
|
Deeds |
$31,500 |
GRAYSON DANNY P & PAMELA CO TRS |
GRAYSON ALISHA R |
|||||
|
12/10/2019 |
|
Hmstd Off & |
$0 |
GRAYSON DANNY P & PAMELA CO TRS |
GRAYSON DANNY P & PAMELA CO TRS |
|||||
|
5/16/2014 |
|
Deeds |
$0 |
GRAYSON DANNY |
GRAYSON DANNY P & PAMELA CO TRS |
|||||
|
6/21/2012 |
|
Hmstd Off & |
$0 |
ALDRIDGE DIMPLES B REV TRUST |
GRAYSON PAMELA |
|||||
|
11/30/1995 |
|
Historical |
$0 |
ALDRIDGE DIMPLES B |
ALDRIDGE DIMPLES B REV TRUST |
|||||
| Last Mailed Notice of Value (N.O.V.) Information/History | ||||||||
|---|---|---|---|---|---|---|---|---|
| Year | Date | Market Value | Taxable Market Value | Gross Assessed | Exemption | Net Assessed | ||
|
2026 |
02/23/2026 |
129,000 |
107,844 |
11,861 |
0 |
11,861 |
||
|
2025 |
02/14/2025 |
123,500 |
102,709 |
11,297 |
0 |
11,297 |
||
|
2024 |
02/13/2024 |
124,000 |
97,819 |
10,759 |
0 |
10,759 |
||
|
2023 |
02/14/2023 |
115,000 |
93,161 |
10,246 |
0 |
10,246 |
||
|
2022 |
03/15/2022 |
100,500 |
88,725 |
9,759 |
0 |
9,759 |
||
| Property Building Permit History | |||||||||||
|---|---|---|---|---|---|---|---|---|---|---|---|
| Issued | Permit # | Provided by | Bldg # | Description | Est Construction Cost | Status | |||||
| No Building Permit records returned. | |||||||||||
| Click button on building number to access detailed information: | ||||||
|---|---|---|---|---|---|---|
| Bldg # | Vacant/Improved Land | Bldg Description | Year Built | SqFt | # Stories | |
|
1 |
Improved |
Ranch 1 Story |
1950 |
926 |
1 Stories |
|