|
|
|
| Larry Stein Oklahoma County Assessor (405) 713-1200 - Public Access System |
|
|
|
|
|
|
| Real Property Display - Screen Produced 4/2/2026 3:26:55 PM | ||||
|---|---|---|---|---|
| Account: R116215950 | Type: Residential | Location: |
3925 NW 16TH ST |
|
| Building Name/Occupant: |
|
OKLAHOMA CITY |
||
| Owner Name 1: | SERNA JUAN A LANDEROS |
Parcel PIN#: |
2901-11-621-5950 |
|
| Owner Name 2: | 1/4 section #: |
2901 |
||
| Owner Name 3: | Parent Acct: |
|
||
| Billing Address: | 3925 NW 16TH ST | Tax District: |
|
|
| City, State, Zip | OKLAHOMA CITY, OK 73107-4326 | School System: |
Oklahoma City #89 |
|
|
Country: (If noted) |
Land Size: |
0.1452 Acres |
||
|
Land Value: 16,450 |
|
|||
|
Sect 26-T12N-R4W Qtr NE |
STEVE PENNINGTON 7TH
Block
006
Lot
023
|
|||
| Full Legal Description: STEVE PENNINGTON 7TH 006 023 |
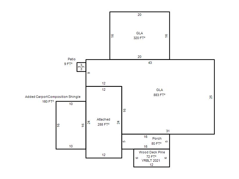
| Photo & Sketch (if available) | Comp Sales (ordered by relevancy) |
|
||||||||||||||||||
|
||||||||||||||||||||
| Value History (*The County Treasurer 405-713-1300 posts & collects actual tax amounts. Contact information HERE) | |||||||||||||
|---|---|---|---|---|---|---|---|---|---|---|---|---|---|
| Year | Market Value | Taxable Mkt Value | Gross Assessed | Exemption | Net Assessed | Millage | Est. Tax | Tax Savings | |||||
|
2026 |
179,500 |
167,828 |
18,461 |
0 |
18,461 |
122.90 |
$2,269 |
$158 |
|||||
|
2025 |
174,000 |
159,837 |
17,581 |
0 |
17,581 |
122.90 |
$2,161 |
$191 |
|||||
|
2024 |
181,500 |
152,226 |
16,744 |
0 |
16,744 |
123.89 |
$2,075 |
$399 |
|||||
|
2023 |
171,500 |
144,978 |
15,947 |
0 |
15,947 |
122.82 |
$1,959 |
$358 |
|||||
|
2022 |
152,500 |
138,075 |
15,188 |
0 |
15,188 |
117.63 |
$1,787 |
$187 |
|||||
| Property Account Status/Adjustments/Exemptions | ||
|---|---|---|
| Account # | Exemption Description | Amount |
|
R116215950 |
5% Capped Account |
0 |
| Property Deed Transaction History (Recorded in the County Clerk's Office) | ||||||||||
|---|---|---|---|---|---|---|---|---|---|---|
| Date | Type | Book | Page | Price | Grantor | Grantee | ||||
|
11/7/2020 |
|
Deeds |
$1,000 |
RAMOS JUAN LANDEROS |
SERNA JUAN A LANDEROS |
|||||
|
10/31/2006 |
|
Deeds |
$88,000 |
GARCIA JOSE L ALEJANDRO LARA LOERA JORGE |
RAMOS JUAN LANDEROS |
|||||
|
8/20/2003 |
|
Deeds |
$0 |
GARCIA JOSE L |
GARCIA JOSE L ALEJANDRO LARA LOERA JORGE |
|||||
|
5/27/2003 |
|
Deeds |
$0 |
RAULERSON W L & M |
RAULERSON WALSTENE L |
|||||
|
5/27/2003 |
|
Deeds |
$55,000 |
RAULERSON WALSTENE L |
GARCIA JOSE L |
|||||
| Last Mailed Notice of Value (N.O.V.) Information/History | ||||||||
|---|---|---|---|---|---|---|---|---|
| Year | Date | Market Value | Taxable Market Value | Gross Assessed | Exemption | Net Assessed | ||
|
2026 |
02/23/2026 |
179,500 |
167,828 |
18,461 |
0 |
18,461 |
||
|
2025 |
02/14/2025 |
174,000 |
159,837 |
17,581 |
0 |
17,581 |
||
|
2024 |
02/13/2024 |
181,500 |
152,226 |
16,744 |
0 |
16,744 |
||
|
2023 |
02/14/2023 |
171,500 |
144,978 |
15,947 |
0 |
15,947 |
||
|
2022 |
03/15/2022 |
152,500 |
138,075 |
15,188 |
0 |
15,188 |
||
| Property Building Permit History | ||||||
|---|---|---|---|---|---|---|
| Issued | Permit # | Provided by | Bldg # | Description | Est Construction Cost | Status |
|
4/12/1993 |
10205632 |
OKLAHOMA CITY |
1 |
Add On |
16,000 |
Inactive |
| Click button on building number to access detailed information: | ||||||
|---|---|---|---|---|---|---|
| Bldg # | Vacant/Improved Land | Bldg Description | Year Built | SqFt | # Stories | |
|
1 |
Improved |
Ranch 1 Story |
1950 |
1,203 |
1 Stories |
|