|
|
|
| Larry Stein Oklahoma County Assessor (405) 713-1200 - Public Access System |
|
|
|
|
|
|
| Real Property Display - Screen Produced 4/2/2026 1:05:19 AM | ||||
|---|---|---|---|---|
| Account: R150613100 | Type: Residential | Location: |
4021 SE 11TH ST |
|
| Building Name/Occupant: |
|
DEL CITY |
||
| Owner Name 1: | DAMINSKI SONJA A |
Parcel PIN#: |
1422-15-061-3100 |
|
| Owner Name 2: | 1/4 section #: |
1422 |
||
| Owner Name 3: | Parent Acct: |
|
||
| Billing Address: | 11737 SW 3RD ST | Tax District: |
|
|
| City, State, Zip | YUKON, OK 73099-6707 | School System: |
Mid-Del #52 |
|
|
Country: (If noted) |
Land Size: |
0.2245 Acres |
||
|
Land Value: 16,626 |
|
|||
|
Sect 6-T11N-R2W Qtr SE |
PACE ADDITION
Block
003
Lot
012
|
|||
| Full Legal Description: PACE ADDITION 003 012 |
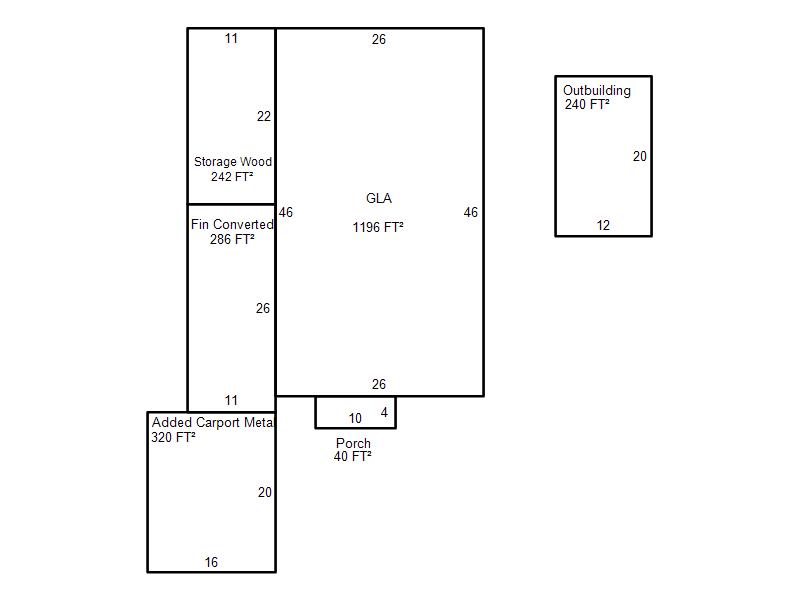
| Photo & Sketch (if available) | Comp Sales (ordered by relevancy) |
|
||||||||||||||||||
|
||||||||||||||||||||
| Value History (*The County Treasurer 405-713-1300 posts & collects actual tax amounts. Contact information HERE) | |||||||||||||
|---|---|---|---|---|---|---|---|---|---|---|---|---|---|
| Year | Market Value | Taxable Mkt Value | Gross Assessed | Exemption | Net Assessed | Millage | Est. Tax | Tax Savings | |||||
|
2026 |
140,500 |
84,425 |
9,286 |
0 |
9,286 |
114.72 |
$1,065 |
$708 |
|||||
|
2025 |
138,500 |
80,405 |
8,844 |
0 |
8,844 |
114.72 |
$1,015 |
$733 |
|||||
|
2024 |
131,500 |
76,577 |
8,423 |
0 |
8,423 |
117.21 |
$987 |
$708 |
|||||
|
2023 |
114,500 |
72,931 |
8,022 |
0 |
8,022 |
112.46 |
$902 |
$514 |
|||||
|
2022 |
104,500 |
69,459 |
7,639 |
0 |
7,639 |
110.76 |
$846 |
$427 |
|||||
| Property Account Status/Adjustments/Exemptions | ||
|---|---|---|
| Account # | Exemption Description | Amount |
|
R150613100 |
5% Capped Account |
0 |
| Property Deed Transaction History (Recorded in the County Clerk's Office) | |||||||
|---|---|---|---|---|---|---|---|
| Date | Type | Book | Page | Price | Grantor | Grantee | |
|
10/2/2009 |
|
Deeds |
$0 |
WELLS FARGO BANK |
DAMINSKI SONJA A |
||
|
11/18/2008 |
|
Deeds |
$32,000 |
WELLS FARGO BANK |
DAMINSKI SONJA A |
||
|
8/19/2008 |
|
Hmstd Off & |
$0 |
CABLE BOBBY & SHERRI |
WELLS FARGO BANK |
||
|
11/26/2003 |
|
Deeds |
$67,000 |
INGERSON ALLEN A & MARILYN A |
CABLE BOBBY & SHERRI |
||
|
3/1/1984 |
|
Historical |
$38,450 |
|
INGERSON ALLEN A & MARILYN A |
||
| Last Mailed Notice of Value (N.O.V.) Information/History | ||||||||
|---|---|---|---|---|---|---|---|---|
| Year | Date | Market Value | Taxable Market Value | Gross Assessed | Exemption | Net Assessed | ||
|
2026 |
02/06/2026 |
140,500 |
84,425 |
9,286 |
0 |
9,286 |
||
|
2025 |
01/31/2025 |
138,500 |
80,405 |
8,844 |
0 |
8,844 |
||
|
2024 |
01/22/2024 |
131,500 |
76,577 |
8,423 |
0 |
8,423 |
||
|
2023 |
01/23/2023 |
114,500 |
72,931 |
8,022 |
0 |
8,022 |
||
|
2022 |
02/22/2022 |
104,500 |
69,459 |
7,639 |
0 |
7,639 |
||
| Property Building Permit History | ||||||
|---|---|---|---|---|---|---|
| Issued | Permit # | Provided by | Bldg # | Description | Est Construction Cost | Status |
|
2/23/2011 |
10422271 |
DEL CITY |
1 |
Remodeled |
0 |
Inactive |
| Click button on building number to access detailed information: | ||||||
|---|---|---|---|---|---|---|
| Bldg # | Vacant/Improved Land | Bldg Description | Year Built | SqFt | # Stories | |
|
1 |
Improved |
Ranch 1 Story |
1951 |
1,196 |
1 Stories |
|