|
|
|
| Larry Stein Oklahoma County Assessor (405) 713-1200 - Public Access System |
|
|
|
|
|
|
| Real Property Display - Screen Produced 3/31/2026 11:47:06 PM | ||||
|---|---|---|---|---|
| Account: R066230300 | Type: Residential | Location: |
3934 NW 16TH ST |
|
| Building Name/Occupant: |
|
OKLAHOMA CITY |
||
| Owner Name 1: | JOHNNY YI CONSTRUCTION INC |
Parcel PIN#: |
2902-06-623-0300 |
|
| Owner Name 2: | 1/4 section #: |
2902 |
||
| Owner Name 3: | Parent Acct: |
|
||
| Billing Address: | 3934 NW 16TH ST | Tax District: |
|
|
| City, State, Zip | OKLAHOMA CITY, OK 73107-4327 | School System: |
Oklahoma City #89 |
|
|
Country: (If noted) |
Land Size: |
0.1492 Acres |
||
|
Land Value: 16,900 |
|
|||
|
Sect 26-T12N-R4W Qtr SE |
CORBIN PARK ADDITION
Block
002
Lot
000
|
|||
| Full Legal Description: CORBIN PARK ADDITION 002 000 LOTS 18 & 19 |
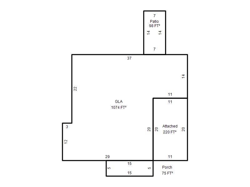
| Photo & Sketch (if available) | Comp Sales (ordered by relevancy) |
|
||||||||||||||||||
|
||||||||||||||||||||
| Value History (*The County Treasurer 405-713-1300 posts & collects actual tax amounts. Contact information HERE) | |||||||||||||
|---|---|---|---|---|---|---|---|---|---|---|---|---|---|
| Year | Market Value | Taxable Mkt Value | Gross Assessed | Exemption | Net Assessed | Millage | Est. Tax | Tax Savings | |||||
|
2026 |
118,000 |
118,000 |
12,980 |
0 |
12,980 |
122.90 |
$1,595 |
$0 |
|||||
|
2025 |
116,500 |
78,965 |
8,685 |
0 |
8,685 |
122.90 |
$1,068 |
$507 |
|||||
|
2024 |
110,500 |
75,205 |
8,271 |
0 |
8,271 |
123.89 |
$1,025 |
$481 |
|||||
|
2023 |
100,500 |
71,624 |
7,878 |
0 |
7,878 |
122.82 |
$968 |
$390 |
|||||
|
2022 |
84,000 |
68,214 |
7,503 |
0 |
7,503 |
117.63 |
$883 |
$204 |
|||||
| Property Account Status/Adjustments/Exemptions | ||||||
|---|---|---|---|---|---|---|
| Account # | Exemption Description | Amount | ||||
| No adjustment/exemption records returned. | ||||||
| Property Deed Transaction History (Recorded in the County Clerk's Office) | ||||||||||
|---|---|---|---|---|---|---|---|---|---|---|
| Date | Type | Book | Page | Price | Grantor | Grantee | ||||
|
7/1/2025 |
|
Deeds |
$69,000 |
JONES JOHNNIE K |
JOHNNY YI CONSTRUCTION INC |
|||||
|
4/8/2014 |
|
Hmstd Off & |
$0 |
JONES LELAND C & BETTY TRS |
JONES JOHNNIE K |
|||||
|
8/20/1990 |
|
Historical |
$0 |
JONES LELAND C & BETTY |
JONES LELAND C & BETTY TRS |
|||||
|
6/26/1989 |
|
Historical |
$0 |
KELLY CARL WILLIAM & PHYLIS A |
JONES LELAND C & BETTY |
|||||
|
6/10/1987 |
|
Historical |
$30,000 |
JONES LELAND C & BETTY |
KELLY CARL WILLIAM & PHYLIS A |
|||||
| Last Mailed Notice of Value (N.O.V.) Information/History | ||||||||
|---|---|---|---|---|---|---|---|---|
| Year | Date | Market Value | Taxable Market Value | Gross Assessed | Exemption | Net Assessed | ||
|
2026 |
02/23/2026 |
118,000 |
118,000 |
12,980 |
0 |
12,980 |
||
|
2025 |
02/14/2025 |
116,500 |
78,965 |
8,685 |
0 |
8,685 |
||
|
2024 |
02/13/2024 |
110,500 |
75,205 |
8,271 |
0 |
8,271 |
||
|
2023 |
02/14/2023 |
100,500 |
71,624 |
7,878 |
0 |
7,878 |
||
|
2022 |
03/15/2022 |
84,000 |
68,214 |
7,503 |
0 |
7,503 |
||
| Property Building Permit History | |||||||||||
|---|---|---|---|---|---|---|---|---|---|---|---|
| Issued | Permit # | Provided by | Bldg # | Description | Est Construction Cost | Status | |||||
| No Building Permit records returned. | |||||||||||
| Click button on building number to access detailed information: | ||||||
|---|---|---|---|---|---|---|
| Bldg # | Vacant/Improved Land | Bldg Description | Year Built | SqFt | # Stories | |
|
1 |
Improved |
Ranch 1 Story |
1949 |
1,074 |
1 Stories |
|