|
|
|
| Larry Stein Oklahoma County Assessor (405) 713-1200 - Public Access System |
|
|
|
|
|
|
| Real Property Display - Screen Produced 2/27/2026 7:32:30 PM | ||||
|---|---|---|---|---|
| Account: R140323020 | Type: Residential | Location: |
2212 N MINNIE LN |
|
| Building Name/Occupant: |
|
OKLAHOMA CITY |
||
| Owner Name 1: | LOPEZ MONTERROSO MARCOS TIMOTEO |
Parcel PIN#: |
2905-14-032-3020 |
|
| Owner Name 2: | 1/4 section #: |
2905 |
||
| Owner Name 3: | Parent Acct: |
|
||
| Billing Address: | 2212 N MINNIE LN | Tax District: |
|
|
| City, State, Zip | OKLAHOMA CITY, OK 73127-2416 | School System: |
Putnam City #1 |
|
|
Country: (If noted) |
Land Size: |
0.2146 Acres |
||
|
Land Value: 11,800 |
|
|||
|
Sect 27-T12N-R4W Qtr NE |
SUNSET GARDENS ADD
Block
000
Lot
000
|
|||
| Full Legal Description: SUNSET GARDENS ADD PT 009 BEING THE W 151.29FT OF THE N 1/2 OF LOT 9 |
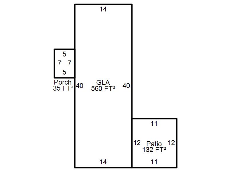
| Photo & Sketch (if available) | Comp Sales (ordered by relevancy) |
|
||||||||||||||||||
|
||||||||||||||||||||
| Value History (*The County Treasurer 405-713-1300 posts & collects actual tax amounts. Contact information HERE) | |||||||||||||
|---|---|---|---|---|---|---|---|---|---|---|---|---|---|
| Year | Market Value | Taxable Mkt Value | Gross Assessed | Exemption | Net Assessed | Millage | Est. Tax | Tax Savings | |||||
|
2025 |
65,800 |
49,076 |
5,398 |
2,000 |
3,398 |
123.17 |
$419 |
$473 |
|||||
|
2024 |
82,500 |
47,647 |
5,240 |
0 |
5,240 |
122.30 |
$641 |
$469 |
|||||
|
2023 |
74,500 |
47,647 |
5,240 |
0 |
5,240 |
121.91 |
$639 |
$360 |
|||||
|
2022 |
58,650 |
45,379 |
4,991 |
0 |
4,991 |
123.41 |
$616 |
$180 |
|||||
|
2021 |
59,000 |
52,070 |
5,727 |
0 |
5,727 |
122.23 |
$700 |
$93 |
|||||
| Property Account Status/Adjustments/Exemptions | ||||||
|---|---|---|---|---|---|---|
| Account # | Exemption Description | Amount | ||||
| No adjustment/exemption records returned. | ||||||
| Property Deed Transaction History (Recorded in the County Clerk's Office) | ||||||||||
|---|---|---|---|---|---|---|---|---|---|---|
| Date | Type | Book | Page | Price | Grantor | Grantee | ||||
|
8/8/2025 |
|
Deeds |
$25,000 |
CORR AMBER L |
LOPEZ MONTERROSO MARCOS TIMOTEO |
|||||
|
6/25/2025 |
|
Hmstd Off & |
$0 |
LUCAS ALAN |
CORR AMBER L |
|||||
|
8/4/2022 |
|
Hmstd Off & |
$0 |
LUCAS ALAN |
LUCAS ALAN |
|||||
|
8/6/2018 |
|
Hmstd Off & |
$0 |
LUCAS JIM & JOY A |
LUCAS ALAN P |
|||||
|
5/8/2012 |
|
Deeds |
$0 |
LUCAS JIM LUCAS ALAN |
LUCAS JIM & JOY A |
|||||
| Last Mailed Notice of Value (N.O.V.) Information/History | ||||||||
|---|---|---|---|---|---|---|---|---|
| Year | Date | Market Value | Taxable Market Value | Gross Assessed | Exemption | Net Assessed | ||
|
2026 |
02/23/2026 |
89,000 |
89,000 |
9,790 |
0 |
9,790 |
||
|
2025 |
02/14/2025 |
88,500 |
86,625 |
9,528 |
0 |
9,528 |
||
|
2025 |
03/28/2025 |
65,800 |
49,076 |
5,398 |
2,000 |
3,398 |
||
|
2024 |
02/13/2024 |
82,500 |
82,500 |
9,075 |
0 |
9,075 |
||
|
2023 |
02/14/2023 |
74,500 |
47,647 |
5,240 |
0 |
5,240 |
||
| Property Building Permit History | ||||||
|---|---|---|---|---|---|---|
| Issued | Permit # | Provided by | Bldg # | Description | Est Construction Cost | Status |
|
1/2/2026 |
BLDR-2025-06655 |
|
1 |
Add On |
55,000 |
Active |
| Click button on building number to access detailed information: | ||||||
|---|---|---|---|---|---|---|
| Bldg # | Vacant/Improved Land | Bldg Description | Year Built | SqFt | # Stories | |
|
1 |
Improved |
Ranch 1 Story |
1952 |
560 |
1 Stories |
|