|
|
|
| Larry Stein Oklahoma County Assessor (405) 713-1200 - Public Access System |
|
|
|
|
|
|
| Real Property Display - Screen Produced 2/27/2026 3:10:08 PM | ||||
|---|---|---|---|---|
| Account: R147851050 | Type: Residential | Location: |
4815 NW 19TH ST |
|
| Building Name/Occupant: |
|
OKLAHOMA CITY |
||
| Owner Name 1: | HAHN BELVA J |
Parcel PIN#: |
2905-14-785-1050 |
|
| Owner Name 2: | 1/4 section #: |
2905 |
||
| Owner Name 3: | Parent Acct: |
|
||
| Billing Address: | 4815 NW 19TH ST | Tax District: |
|
|
| City, State, Zip | OKLAHOMA CITY, OK 73127-2841 | School System: |
Putnam City #1 |
|
|
Country: (If noted) |
Land Size: |
1.1700 Acres |
||
|
Land Value: 64,350 |
|
|||
|
Sect 27-T12N-R4W Qtr NE |
UNPLTD PT SEC 27 12N 4W
Block
000
Lot
000
|
|||
| Full Legal Description: UNPLTD PT OF SEC 27 12N 4W W 1/2 OF E 1/2 OF SW4 OF NW4 OF NE4 EX A TRI TR OUT OF NE/C 44FT ON N BY 260FT ON E & EX BEG 332.60FT E & 627.95FT S OF NW/C NE4 TH E122.21FT SELY270.15FT S83.92FT W166.30FT N350FT TO BEG |
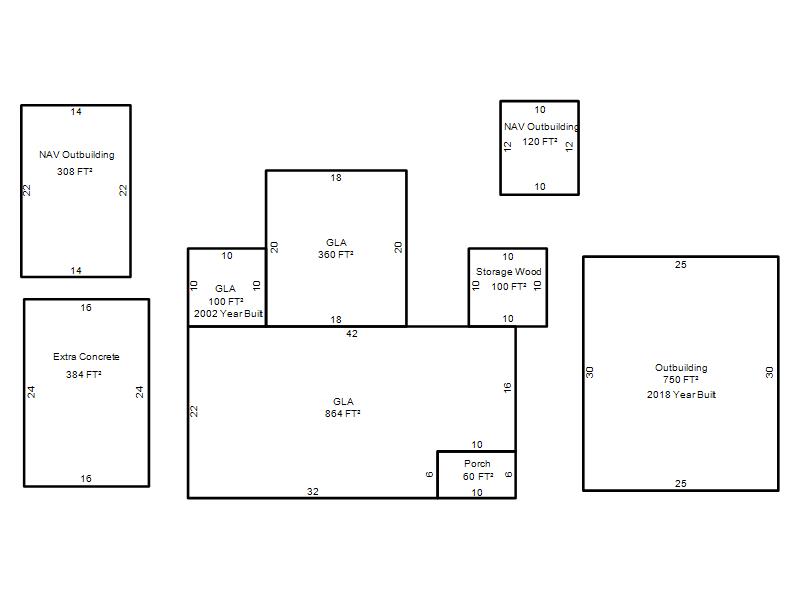
| Photo & Sketch (if available) | Comp Sales (ordered by relevancy) |
|
||||||||||||||||||
|
||||||||||||||||||||
| Value History (*The County Treasurer 405-713-1300 posts & collects actual tax amounts. Contact information HERE) | |||||||||||||
|---|---|---|---|---|---|---|---|---|---|---|---|---|---|
| Year | Market Value | Taxable Mkt Value | Gross Assessed | Exemption | Net Assessed | Millage | Est. Tax | Tax Savings | |||||
|
2025 |
213,500 |
146,716 |
16,138 |
1,000 |
15,138 |
123.17 |
$1,865 |
$1,028 |
|||||
|
2024 |
213,500 |
142,443 |
15,668 |
1,000 |
14,668 |
122.30 |
$1,794 |
$1,078 |
|||||
|
2023 |
199,500 |
138,295 |
15,212 |
1,000 |
14,212 |
121.91 |
$1,733 |
$943 |
|||||
|
2022 |
177,000 |
134,267 |
14,768 |
1,000 |
13,768 |
123.41 |
$1,699 |
$704 |
|||||
|
2021 |
147,000 |
130,357 |
14,338 |
1,000 |
13,338 |
122.23 |
$1,630 |
$346 |
|||||
| Property Account Status/Adjustments/Exemptions | ||
|---|---|---|
| Account # | Exemption Description | Amount |
|
R147851050 |
Homestead |
1,000 |
|
R147851050 |
3% Cap Homestead |
0 |
| Property Deed Transaction History (Recorded in the County Clerk's Office) | |||||||
|---|---|---|---|---|---|---|---|
| Date | Type | Book | Page | Price | Grantor | Grantee | |
|
11/24/2025 |
|
Deeds |
$0 |
HAHN GARY L |
HAHN BELVA J |
||
|
8/13/2002 |
|
Hmstd Off & |
$0 |
GILLILAN WARREN A & WELDON A |
HAHN GARY L & BELVA J |
||
|
7/25/2002 |
|
Hmstd Off & |
$0 |
STONE IRIS ETAL GILLILAN JAMES E |
HAHN GARY L & BELVA J |
||
|
3/6/2001 |
|
Hmstd Off & |
$0 |
FINAL DECREE |
STONE IRIS ETAL GILLILAN JAMES E |
||
|
11/11/1911 |
|
Historical |
$0 |
|
GILLILAN J F |
||
| Last Mailed Notice of Value (N.O.V.) Information/History | ||||||||
|---|---|---|---|---|---|---|---|---|
| Year | Date | Market Value | Taxable Market Value | Gross Assessed | Exemption | Net Assessed | ||
|
2026 |
02/23/2026 |
211,000 |
151,117 |
16,622 |
1,000 |
15,622 |
||
|
2025 |
02/14/2025 |
213,500 |
146,716 |
16,138 |
1,000 |
15,138 |
||
|
2024 |
02/13/2024 |
213,500 |
142,443 |
15,668 |
1,000 |
14,668 |
||
|
2023 |
02/14/2023 |
199,500 |
138,295 |
15,212 |
1,000 |
14,212 |
||
|
2022 |
03/15/2022 |
177,000 |
134,267 |
14,768 |
1,000 |
13,768 |
||
| Property Building Permit History | ||||||
|---|---|---|---|---|---|---|
| Issued | Permit # | Provided by | Bldg # | Description | Est Construction Cost | Status |
|
1/31/2018 |
|
|
|
Storage Buil |
14,000 |
Inactive |
|
12/3/2002 |
10242138 |
OKLAHOMA CITY |
1 |
Add On |
17,000 |
Inactive |
|
8/20/2001 |
10242137 |
OKLAHOMA CITY |
1 |
Demolish |
0 |
Inactive |
| Click button on building number to access detailed information: | ||||||
|---|---|---|---|---|---|---|
| Bldg # | Vacant/Improved Land | Bldg Description | Year Built | SqFt | # Stories | |
|
1 |
Improved |
Ranch 1 Story |
1940 |
1,324 |
1 Stories |
|