|
|
|
| Larry Stein Oklahoma County Assessor (405) 713-1200 - Public Access System |
|
|
|
|
|
|
| Real Property Display - Screen Produced 2/27/2026 7:32:30 PM | ||||
|---|---|---|---|---|
| Account: R142661100 | Type: Residential | Location: |
1134 N HARVARD AVE |
|
| Building Name/Occupant: |
|
OKLAHOMA CITY |
||
| Owner Name 1: | GINER ONESIMO & ELIA O |
Parcel PIN#: |
2906-14-266-1100 |
|
| Owner Name 2: | 1/4 section #: |
2906 |
||
| Owner Name 3: | Parent Acct: |
|
||
| Billing Address: | 1134 N HARVARD AVE | Tax District: |
|
|
| City, State, Zip | OKLAHOMA CITY, OK 73127-4064 | School System: |
Putnam City #1 |
|
|
Country: (If noted) |
Land Size: |
0.1085 Acres |
||
|
Land Value: 12,994 |
|
|||
|
Sect 27-T12N-R4W Qtr SE |
NEWSOM ADDITION
Block
025
Lot
000
|
|||
| Full Legal Description: NEWSOM ADDITION 025 000 N62.5FT OF LOT 11 |
| Photo & Sketch (if available) | Comp Sales (ordered by relevancy) |
|
||||||||||||||||||
|
||||||||||||||||||||
| Value History (*The County Treasurer 405-713-1300 posts & collects actual tax amounts. Contact information HERE) | |||||||||||||
|---|---|---|---|---|---|---|---|---|---|---|---|---|---|
| Year | Market Value | Taxable Mkt Value | Gross Assessed | Exemption | Net Assessed | Millage | Est. Tax | Tax Savings | |||||
|
2025 |
150,000 |
88,051 |
9,685 |
1,000 |
8,685 |
123.17 |
$1,070 |
$962 |
|||||
|
2024 |
124,000 |
85,487 |
9,402 |
1,000 |
8,402 |
122.30 |
$1,028 |
$640 |
|||||
|
2023 |
120,000 |
82,998 |
9,128 |
1,000 |
8,128 |
121.91 |
$991 |
$618 |
|||||
|
2022 |
113,500 |
80,581 |
8,863 |
1,000 |
7,863 |
123.41 |
$970 |
$570 |
|||||
|
2021 |
93,500 |
78,234 |
8,605 |
1,000 |
7,605 |
122.23 |
$930 |
$327 |
|||||
| Property Account Status/Adjustments/Exemptions | ||
|---|---|---|
| Account # | Exemption Description | Amount |
|
R142661100 |
3% Cap Homestead |
0 |
|
R142661100 |
Homestead |
1,000 |
| Property Deed Transaction History (Recorded in the County Clerk's Office) | |||||||
|---|---|---|---|---|---|---|---|
| Date | Type | Book | Page | Price | Grantor | Grantee | |
|
12/3/1999 |
|
Deeds |
$58,000 |
HARRIS CHRISTOPHER |
GINER ONESIMO & ELIA O |
||
|
7/12/1996 |
|
Historical |
$57,000 |
MATTESON BRUCE A & EMILY M |
HARRIS CHRISTOPHER |
||
|
3/1/1983 |
|
Historical |
$0 |
|
MATTESON BRUCE A & EMILY M |
||
| Last Mailed Notice of Value (N.O.V.) Information/History | ||||||||
|---|---|---|---|---|---|---|---|---|
| Year | Date | Market Value | Taxable Market Value | Gross Assessed | Exemption | Net Assessed | ||
|
2026 |
02/23/2026 |
147,000 |
90,692 |
9,975 |
1,000 |
8,975 |
||
|
2025 |
02/14/2025 |
150,000 |
88,051 |
9,685 |
1,000 |
8,685 |
||
|
2024 |
02/13/2024 |
124,000 |
85,487 |
9,402 |
1,000 |
8,402 |
||
|
2023 |
02/14/2023 |
120,000 |
82,998 |
9,128 |
1,000 |
8,128 |
||
|
2022 |
03/15/2022 |
113,500 |
80,581 |
8,863 |
1,000 |
7,863 |
||
| Property Building Permit History | |||||||||||
|---|---|---|---|---|---|---|---|---|---|---|---|
| Issued | Permit # | Provided by | Bldg # | Description | Est Construction Cost | Status | |||||
| No Building Permit records returned. | |||||||||||
| Click button on building number to access detailed information: | ||||||
|---|---|---|---|---|---|---|
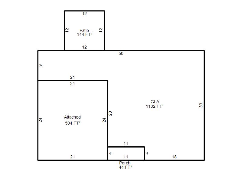
| Bldg # | Vacant/Improved Land | Bldg Description | Year Built | SqFt | # Stories | |
|
1 |
Improved |
Ranch 1 Story |
1962 |
1,102 |
1 Stories |
|