|
|
|
| Larry Stein Oklahoma County Assessor (405) 713-1200 - Public Access System |
|
|
|
|
|
|
| Real Property Display - Screen Produced 2/27/2026 3:10:08 PM | ||||
|---|---|---|---|---|
| Account: R147854800 | Type: Commercial | Location: |
4821 NW 10TH ST |
|
| Building Name/Occupant: |
GAVULA BROS AUTO SHOP |
OKLAHOMA CITY |
||
| Owner Name 1: | GLACIER ROCK PROPERTIES LLC |
Parcel PIN#: |
2906-14-785-4800 |
|
| Owner Name 2: | 1/4 section #: |
2906 |
||
| Owner Name 3: | Parent Acct: |
|
||
| Billing Address: | 4825 NW 10TH ST | Tax District: |
|
|
| City, State, Zip | OKLAHOMA CITY, OK 73127 | School System: |
Putnam City #1 |
|
|
Country: (If noted) |
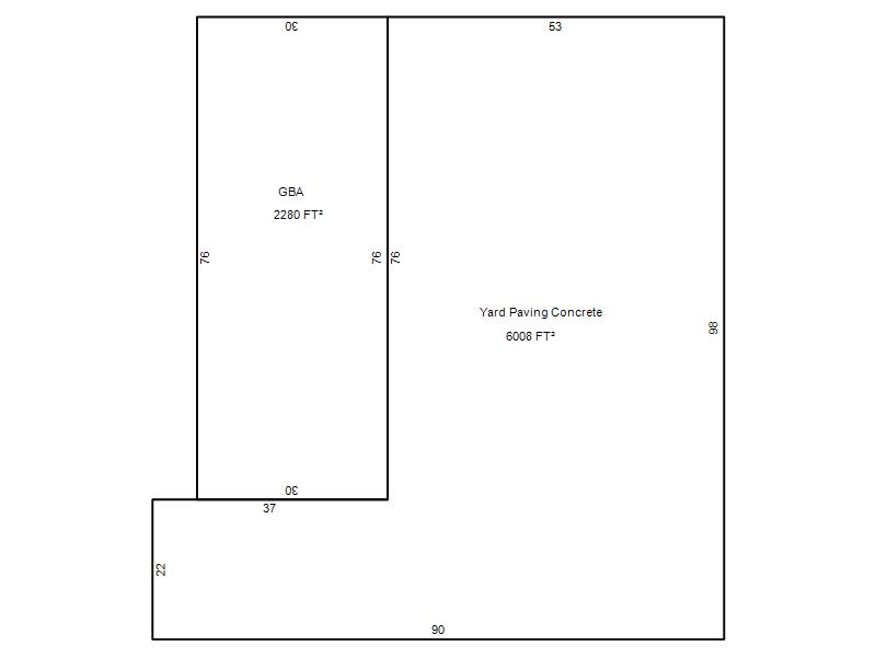
Land Size: |
16,625.0000 Square Feet |
||
|
Land Value: 37,406 |
|
|||
|
Sect 27-T12N-R4W Qtr SE |
UNPLTD PT SEC 27 12N 4W
Block
000
Lot
000
|
|||
| Full Legal Description: UNPLTD PT SEC 27 12N 4W 000 000 PT SE4 SEC 27 12N 4W BEG 33FT N & 355FT E OF SW/C SE4 TH N175FT E95FT S175FT W95FT TO BEG |
| No comparable sales report available. | ||||||||||||||||||||||
|
||||||||||||||||||||||
| Value History (*The County Treasurer 405-713-1300 posts & collects actual tax amounts. Contact information HERE) | |||||||||||||
|---|---|---|---|---|---|---|---|---|---|---|---|---|---|
| Year | Market Value | Taxable Mkt Value | Gross Assessed | Exemption | Net Assessed | Millage | Est. Tax | Tax Savings | |||||
|
2025 |
314,827 |
314,827 |
34,630 |
0 |
34,630 |
123.17 |
$4,265 |
$0 |
|||||
|
2024 |
300,960 |
300,960 |
33,105 |
0 |
33,105 |
122.30 |
$4,049 |
$0 |
|||||
|
2023 |
300,960 |
300,960 |
33,105 |
0 |
33,105 |
121.91 |
$4,036 |
$0 |
|||||
|
2022 |
78,564 |
68,308 |
7,513 |
0 |
7,513 |
123.41 |
$927 |
$139 |
|||||
|
2021 |
65,056 |
65,056 |
7,156 |
0 |
7,156 |
122.23 |
$875 |
$0 |
|||||
| Property Account Status/Adjustments/Exemptions | ||
|---|---|---|
| Account # | Exemption Description | Amount |
|
R147854800 |
5% Capped Account |
0 |
| Property Deed Transaction History (Recorded in the County Clerk's Office) | |||||||
|---|---|---|---|---|---|---|---|
| Date | Type | Book | Page | Price | Grantor | Grantee | |
|
5/17/2022 |
|
Deeds |
$300,000 |
GAVULA BROTHERS GARAGE |
GLACIER ROCK PROPERTIES LLC |
||
|
12/30/2020 |
|
Hmstd Off & |
$0 |
GAVULA GEORGE E & THERESA L |
GAVULA BROTHERS GARAGE |
||
|
12/30/2020 |
|
Hmstd Off & |
$0 |
GAVULA GEORGE E & THERESA L |
GAVULA BROTHERS GARAGE |
||
|
5/28/1992 |
|
Historical |
$0 |
GAVULA JOSEPH D |
GAVULA GEORGE E & THERESA L |
||
|
1/1/1984 |
|
Historical |
$0 |
|
GAVULA JOSEPH D |
||
| Last Mailed Notice of Value (N.O.V.) Information/History | ||||||
|---|---|---|---|---|---|---|
| Year | Date | Market Value | Taxable Market Value | Gross Assessed | Exemption | Net Assessed |
|
2025 |
03/14/2025 |
314,827 |
314,827 |
34,630 |
0 |
34,630 |
|
2023 |
03/13/2023 |
300,960 |
300,960 |
33,105 |
0 |
33,105 |
|
2022 |
03/09/2022 |
78,564 |
68,308 |
7,513 |
0 |
7,513 |
| Property Building Permit History | |||||||||||
|---|---|---|---|---|---|---|---|---|---|---|---|
| Issued | Permit # | Provided by | Bldg # | Description | Est Construction Cost | Status | |||||
| No Building Permit records returned. | |||||||||||
| Click button on building number to access detailed information: | ||||||
|---|---|---|---|---|---|---|
| Bldg # | Vacant/Improved Land | Bldg Description | Year Built | SqFt | # Stories | |
|
1 |
Improved |
Service Garage |
1985 |
2,280 |
1 Stories |
|