|
|
|
| Larry Stein Oklahoma County Assessor (405) 713-1200 - Public Access System |
|
|
|
|
|
|
| Real Property Display - Screen Produced 2/27/2026 7:49:24 PM | ||||
|---|---|---|---|---|
| Account: R143471010 | Type: Residential | Location: |
5105 NW 18TH ST |
|
| Building Name/Occupant: |
|
OKLAHOMA CITY |
||
| Owner Name 1: | SANTIZO MELVIN W |
Parcel PIN#: |
2908-14-347-1010 |
|
| Owner Name 2: | 1/4 section #: |
2908 |
||
| Owner Name 3: | Parent Acct: |
|
||
| Billing Address: | 5105 NW 18TH ST | Tax District: |
|
|
| City, State, Zip | OKLAHOMA CITY, OK 73127-2719 | School System: |
Putnam City #1 |
|
|
Country: (If noted) |
Land Size: |
0.1694 Acres |
||
|
Land Value: 29,520 |
|
|||
|
Sect 27-T12N-R4W Qtr NW |
NORTHWOOD FOREST
Block
001
Lot
002
|
|||
| Full Legal Description: NORTHWOOD FOREST 001 002 |
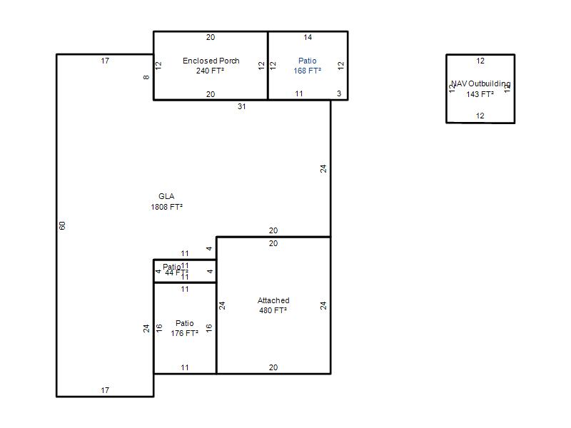
| Photo & Sketch (if available) | Comp Sales (ordered by relevancy) |
|
||||||||||||||||||
|
||||||||||||||||||||
| Value History (*The County Treasurer 405-713-1300 posts & collects actual tax amounts. Contact information HERE) | |||||||||||||
|---|---|---|---|---|---|---|---|---|---|---|---|---|---|
| Year | Market Value | Taxable Mkt Value | Gross Assessed | Exemption | Net Assessed | Millage | Est. Tax | Tax Savings | |||||
|
2025 |
226,500 |
151,134 |
16,624 |
0 |
16,624 |
123.17 |
$2,048 |
$1,021 |
|||||
|
2024 |
199,500 |
143,938 |
15,832 |
0 |
15,832 |
122.30 |
$1,936 |
$747 |
|||||
|
2023 |
187,500 |
137,084 |
15,079 |
0 |
15,079 |
121.91 |
$1,838 |
$676 |
|||||
|
2022 |
166,000 |
130,557 |
14,361 |
1,000 |
13,361 |
123.41 |
$1,649 |
$605 |
|||||
|
2021 |
144,000 |
126,755 |
13,943 |
1,000 |
12,943 |
122.23 |
$1,582 |
$354 |
|||||
| Property Account Status/Adjustments/Exemptions | ||
|---|---|---|
| Account # | Exemption Description | Amount |
|
R143471010 |
5% Capped Account |
0 |
| Property Deed Transaction History (Recorded in the County Clerk's Office) | ||||||||||
|---|---|---|---|---|---|---|---|---|---|---|
| Date | Type | Book | Page | Price | Grantor | Grantee | ||||
|
1/15/2003 |
|
Deeds |
$0 |
SINE LUCIAN E & DELPHENE B TRS SINE LIVING TRUST |
SINE DELPHENE B TRS SINE LIV TRUST |
|||||
|
1/15/2003 |
|
Deeds |
$93,000 |
SINE DELPHENE B TRS SINE LIV TRUST |
SANTIZO MELVIN W |
|||||
|
3/23/1992 |
|
Historical |
$0 |
SINE LUCIAN E & DELPHENE B |
SINE LUCIAN E & DELPHENE B TRS |
|||||
|
5/3/1991 |
|
Historical |
$68,000 |
SCRIVNER WILLIE K & LILLIAN H |
SINE LUCIAN E & DELPHENE B |
|||||
|
4/19/1989 |
|
Historical |
$62,000 |
TILLSON LARRY D |
SCRIVNER WILLIE K & LILLIAN H |
|||||
| Last Mailed Notice of Value (N.O.V.) Information/History | ||||||||
|---|---|---|---|---|---|---|---|---|
| Year | Date | Market Value | Taxable Market Value | Gross Assessed | Exemption | Net Assessed | ||
|
2026 |
02/23/2026 |
220,500 |
158,690 |
17,455 |
0 |
17,455 |
||
|
2025 |
02/14/2025 |
226,500 |
151,134 |
16,624 |
0 |
16,624 |
||
|
2024 |
02/13/2024 |
199,500 |
143,938 |
15,832 |
0 |
15,832 |
||
|
2023 |
02/14/2023 |
187,500 |
137,084 |
15,079 |
0 |
15,079 |
||
|
2022 |
03/15/2022 |
166,000 |
130,557 |
14,361 |
1,000 |
13,361 |
||
| Property Building Permit History | |||||||||||
|---|---|---|---|---|---|---|---|---|---|---|---|
| Issued | Permit # | Provided by | Bldg # | Description | Est Construction Cost | Status | |||||
| No Building Permit records returned. | |||||||||||
| Click button on building number to access detailed information: | ||||||
|---|---|---|---|---|---|---|
| Bldg # | Vacant/Improved Land | Bldg Description | Year Built | SqFt | # Stories | |
|
1 |
Improved |
Ranch 1 Story |
1969 |
1,808 |
1 Stories |
|