|
|
|
| Larry Stein Oklahoma County Assessor (405) 713-1200 - Public Access System |
|
|
|
|
|
|
| Real Property Display - Screen Produced 2/27/2026 3:10:09 PM | ||||
|---|---|---|---|---|
| Account: R147852525 | Type: Residential | Location: |
5109 NW 19TH ST |
|
| Building Name/Occupant: |
|
OKLAHOMA CITY |
||
| Owner Name 1: | WEAVER ALLISON L TRS |
Parcel PIN#: |
2908-14-785-2525 |
|
| Owner Name 2: | WEAVER ALLISON L REV LIV TRUST | 1/4 section #: |
2908 |
|
| Owner Name 3: | Parent Acct: |
|
||
| Billing Address: | 2311 WHEATLEY DR, Unit 102 | Tax District: |
|
|
| City, State, Zip | GWYNN OAK, MD 21207-7750 | School System: |
Putnam City #1 |
|
|
Country: (If noted) |
Land Size: |
0.1940 Acres |
||
|
Land Value: 26,656 |
|
|||
|
Sect 27-T12N-R4W Qtr NW |
UNPLTD PT SEC 27 12N 4W
Block
000
Lot
000
|
|||
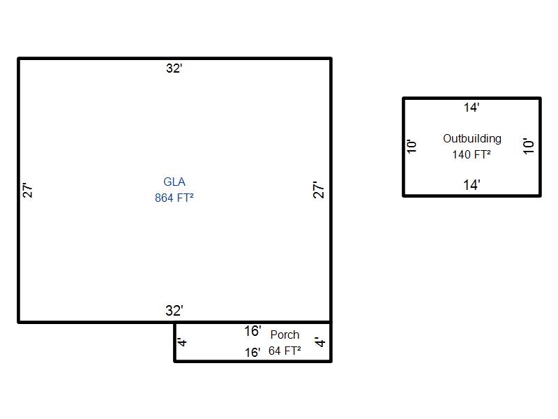
| Full Legal Description: UNPLTD PT OF NW4 SEC 27 12N 4W BEG 30FT N & 191.1FT W OF SE/C OF NW4 OF NW4 TH N111.2FT W61.93FT N17.2FT W3.07FT S130FT E65FT TO BEG |
| Photo & Sketch (if available) | Comp Sales (ordered by relevancy) |
|
||||||||||||||||||
|
||||||||||||||||||||
| Value History (*The County Treasurer 405-713-1300 posts & collects actual tax amounts. Contact information HERE) | |||||||||||||
|---|---|---|---|---|---|---|---|---|---|---|---|---|---|
| Year | Market Value | Taxable Mkt Value | Gross Assessed | Exemption | Net Assessed | Millage | Est. Tax | Tax Savings | |||||
|
2025 |
152,500 |
106,262 |
11,688 |
0 |
11,688 |
123.17 |
$1,440 |
$626 |
|||||
|
2024 |
139,000 |
101,202 |
11,132 |
0 |
11,132 |
122.30 |
$1,361 |
$508 |
|||||
|
2023 |
107,000 |
96,383 |
10,601 |
0 |
10,601 |
121.91 |
$1,293 |
$142 |
|||||
|
2022 |
100,500 |
91,794 |
10,095 |
0 |
10,095 |
123.41 |
$1,246 |
$118 |
|||||
|
2021 |
98,500 |
87,423 |
9,615 |
0 |
9,615 |
122.23 |
$1,175 |
$149 |
|||||
| Property Account Status/Adjustments/Exemptions | ||
|---|---|---|
| Account # | Exemption Description | Amount |
|
R147852525 |
5% Capped Account |
0 |
| Property Deed Transaction History (Recorded in the County Clerk's Office) | ||||||||||
|---|---|---|---|---|---|---|---|---|---|---|
| Date | Type | Book | Page | Price | Grantor | Grantee | ||||
|
6/12/2025 |
|
Deeds |
$0 |
WEAVER ALLISON L |
WEAVER ALLISON L TRS |
|||||
|
3/13/2001 |
|
Deeds |
$53,500 |
GODFREY LUKE B & JENNIFER |
WEAVER ALLISON L |
|||||
|
9/18/1998 |
|
Historical |
$28,000 |
WHEELER NANCY E |
GODFREY LUKE B & JENNIFER |
|||||
|
3/20/1996 |
|
Historical |
$0 |
POLLOCK DENNIS R |
WHEELER NANCY E |
|||||
|
2/8/1993 |
|
Historical |
$36,500 |
COE RICHARD E |
POLLOCK DENNIS R |
|||||
| Last Mailed Notice of Value (N.O.V.) Information/History | ||||||||
|---|---|---|---|---|---|---|---|---|
| Year | Date | Market Value | Taxable Market Value | Gross Assessed | Exemption | Net Assessed | ||
|
2026 |
02/23/2026 |
148,500 |
111,575 |
12,272 |
0 |
12,272 |
||
|
2025 |
02/14/2025 |
152,500 |
106,262 |
11,688 |
0 |
11,688 |
||
|
2024 |
02/13/2024 |
139,000 |
101,202 |
11,132 |
0 |
11,132 |
||
|
2023 |
02/14/2023 |
107,000 |
96,383 |
10,601 |
0 |
10,601 |
||
|
2022 |
03/15/2022 |
100,500 |
91,794 |
10,095 |
0 |
10,095 |
||
| Property Building Permit History | |||||||||||
|---|---|---|---|---|---|---|---|---|---|---|---|
| Issued | Permit # | Provided by | Bldg # | Description | Est Construction Cost | Status | |||||
| No Building Permit records returned. | |||||||||||
| Click button on building number to access detailed information: | ||||||
|---|---|---|---|---|---|---|
| Bldg # | Vacant/Improved Land | Bldg Description | Year Built | SqFt | # Stories | |
|
1 |
Improved |
Ranch 1 Story |
1940 |
864 |
1 Stories |
|