|
|
|
| Larry Stein Oklahoma County Assessor (405) 713-1200 - Public Access System |
|
|
|
|
|
|
| Real Property Display - Screen Produced 2/27/2026 3:10:09 PM | ||||
|---|---|---|---|---|
| Account: R147853431 | Type: Residential | Location: |
5335 NW 16TH ST |
|
| Building Name/Occupant: |
|
OKLAHOMA CITY |
||
| Owner Name 1: | SANTIZO HUGO ELFIGO LIZANDRO G |
Parcel PIN#: |
2908-14-785-3431 |
|
| Owner Name 2: | HERNANDEZ GLENDY CARMEN G | 1/4 section #: |
2908 |
|
| Owner Name 3: | Parent Acct: |
|
||
| Billing Address: | 5335 NW 16TH ST | Tax District: |
|
|
| City, State, Zip | OKLAHOMA CITY, OK 73127-2811 | School System: |
Putnam City #1 |
|
|
Country: (If noted) |
Land Size: |
0.4459 Acres |
||
|
Land Value: 45,455 |
|
|||
|
Sect 27-T12N-R4W Qtr NW |
UNPLTD PT SEC 27 12N 4W
Block
000
Lot
000
|
|||
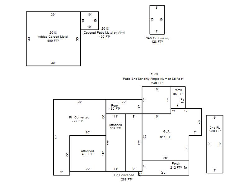
| Full Legal Description: UNPLTD PT SEC 27 12N 4W 000 000 PT NW4 SEC 27 12N 4W BEG 10.42FT E OF SW/C BLK 31 FOREST HILL ADD VAC TH E55.58FT N180FT W55.58FT S180FT TO BEG PLUS A TR BEG 10.42FT E OF SW/C BLK 31 FOREST HILL VAC TH N180FT W50.42FT S180FT E50.42FT TO BEG BOTH TRS CONT .438ACRS MORE OR LESS |
| Photo & Sketch (if available) | Comp Sales (ordered by relevancy) |
|
||||||||||||||||||
|
||||||||||||||||||||
| Value History (*The County Treasurer 405-713-1300 posts & collects actual tax amounts. Contact information HERE) | |||||||||||||
|---|---|---|---|---|---|---|---|---|---|---|---|---|---|
| Year | Market Value | Taxable Mkt Value | Gross Assessed | Exemption | Net Assessed | Millage | Est. Tax | Tax Savings | |||||
|
2025 |
158,000 |
116,113 |
12,772 |
0 |
12,772 |
123.17 |
$1,573 |
$568 |
|||||
|
2024 |
144,000 |
110,584 |
12,164 |
0 |
12,164 |
122.30 |
$1,488 |
$450 |
|||||
|
2023 |
110,500 |
105,319 |
11,584 |
0 |
11,584 |
121.91 |
$1,412 |
$69 |
|||||
|
2022 |
105,500 |
100,304 |
11,032 |
0 |
11,032 |
123.41 |
$1,362 |
$71 |
|||||
|
2021 |
99,000 |
95,528 |
10,507 |
0 |
10,507 |
122.23 |
$1,284 |
$47 |
|||||
| Property Account Status/Adjustments/Exemptions | ||
|---|---|---|
| Account # | Exemption Description | Amount |
|
R147853431 |
5% Capped Account |
0 |
| Property Deed Transaction History (Recorded in the County Clerk's Office) | ||||||||||
|---|---|---|---|---|---|---|---|---|---|---|
| Date | Type | Book | Page | Price | Grantor | Grantee | ||||
|
3/13/2014 |
|
Deeds |
$51,000 |
MASTR ASSET BACKED SECURITIES TR |
SANTIZO HUGO ELFIGO LIZANDRO G |
|||||
|
12/16/2013 |
|
Other |
$0 |
SHERIFFS DEED |
MASTR ASSET BACKED SECURITIES TR C/O ONE WEST BANK |
|||||
|
2/8/1999 |
|
Historical |
$71,000 |
SULLIVAN WILLIAM L & ANNA M |
SHRIVER RODNEY W & BEATRICE K |
|||||
|
8/31/1995 |
|
Historical |
$0 |
PHILLIPS EDWARD & BETTY TRS |
SULLIVAN WILLIAM L & ANNA M |
|||||
|
2/15/1994 |
|
Historical |
$0 |
PHILLIPS EDWARD J & BETTY JANE |
PHILLIPS EDWARD & BETTY TRS |
|||||
| Last Mailed Notice of Value (N.O.V.) Information/History | ||||||||
|---|---|---|---|---|---|---|---|---|
| Year | Date | Market Value | Taxable Market Value | Gross Assessed | Exemption | Net Assessed | ||
|
2026 |
02/23/2026 |
148,000 |
121,918 |
13,410 |
0 |
13,410 |
||
|
2025 |
02/14/2025 |
158,000 |
116,113 |
12,772 |
0 |
12,772 |
||
|
2024 |
02/13/2024 |
144,000 |
110,584 |
12,164 |
0 |
12,164 |
||
|
2023 |
02/14/2023 |
110,500 |
105,319 |
11,584 |
0 |
11,584 |
||
|
2022 |
03/15/2022 |
105,500 |
100,304 |
11,032 |
0 |
11,032 |
||
| Property Building Permit History | ||||||
|---|---|---|---|---|---|---|
| Issued | Permit # | Provided by | Bldg # | Description | Est Construction Cost | Status |
|
9/29/1999 |
10242158 |
OKLAHOMA CITY |
1 |
Add On |
2,000 |
Inactive |
| Click button on building number to access detailed information: | ||||||
|---|---|---|---|---|---|---|
| Bldg # | Vacant/Improved Land | Bldg Description | Year Built | SqFt | # Stories | |
|
1 |
Improved |
1½ Story Fin |
1953 |
1,099 |
1.5 Stories |
|