|
|
|
| Larry Stein Oklahoma County Assessor (405) 713-1200 - Public Access System |
|
|
|
|
|
|
| Real Property Display - Screen Produced 4/3/2026 2:16:50 PM | ||||
|---|---|---|---|---|
| Account: R175591775 | Type: Residential | Location: |
2320 N PENIEL AVE |
|
| Building Name/Occupant: |
|
BETHANY |
||
| Owner Name 1: | RAMIREZ INGRID L ZAPET & EDY ROMERO GARCIA |
Parcel PIN#: |
2909-17-559-1775 |
|
| Owner Name 2: | 1/4 section #: |
2909 |
||
| Owner Name 3: | Parent Acct: |
|
||
| Billing Address: | 2320 N PENIEL AVE | Tax District: |
|
|
| City, State, Zip | BETHANY, OK 73008 | School System: |
Putnam City #1 |
|
|
Country: (If noted) |
Land Size: |
0.1653 Acres |
||
|
Land Value: 15,840 |
|
|||
|
Sect 28-T12N-R4W Qtr NE |
WOODS GARDEN TERRACE
Block
005
Lot
019
|
|||
| Full Legal Description: WOODS GARDEN TERRACE 005 019 |
| Photo & Sketch (if available) | Comp Sales (ordered by relevancy) |
|
||||||||||||||||||
|
||||||||||||||||||||
| Value History (*The County Treasurer 405-713-1300 posts & collects actual tax amounts. Contact information HERE) | |||||||||||||
|---|---|---|---|---|---|---|---|---|---|---|---|---|---|
| Year | Market Value | Taxable Mkt Value | Gross Assessed | Exemption | Net Assessed | Millage | Est. Tax | Tax Savings | |||||
|
2026 |
127,500 |
112,567 |
12,381 |
0 |
12,381 |
122.14 |
$1,512 |
$201 |
|||||
|
2025 |
129,500 |
107,207 |
11,792 |
0 |
11,792 |
122.14 |
$1,440 |
$300 |
|||||
|
2024 |
126,000 |
102,102 |
11,230 |
0 |
11,230 |
120.52 |
$1,354 |
$317 |
|||||
|
2023 |
118,000 |
97,240 |
10,696 |
0 |
10,696 |
123.06 |
$1,316 |
$281 |
|||||
|
2022 |
104,000 |
92,610 |
10,187 |
0 |
10,187 |
112.54 |
$1,146 |
$141 |
|||||
| Property Account Status/Adjustments/Exemptions | ||
|---|---|---|
| Account # | Exemption Description | Amount |
|
R175591775 |
5% Capped Account |
0 |
| Property Deed Transaction History (Recorded in the County Clerk's Office) | ||||||||||
|---|---|---|---|---|---|---|---|---|---|---|
| Date | Type | Book | Page | Price | Grantor | Grantee | ||||
|
1/1/2015 |
|
Deeds |
$84,500 |
OUTWEST INVESTMENTS LLC |
RAMIREZ INGRID L ZAPET & EDY ROMERO GARCIA |
|||||
|
8/30/2013 |
|
Deeds |
$40,000 |
QUAIL CREEK BANK NA |
OUTWEST INVESTMENTS LLC |
|||||
|
8/16/2013 |
|
Hmstd Off & |
$0 |
CHANDLER TIMOTHY & DIANA |
QUAIL CREEK BANK NA |
|||||
|
11/29/1995 |
|
Historical |
$16,500 |
EDWARDS O E |
CHANDLER TIMOTHY & DIANA |
|||||
|
9/26/1995 |
|
Historical |
$0 |
WATKINS LOUIS DEAN REV TRUST |
EDWARDS O E |
|||||
| Last Mailed Notice of Value (N.O.V.) Information/History | ||||||||
|---|---|---|---|---|---|---|---|---|
| Year | Date | Market Value | Taxable Market Value | Gross Assessed | Exemption | Net Assessed | ||
|
2026 |
02/23/2026 |
127,500 |
112,567 |
12,381 |
0 |
12,381 |
||
|
2025 |
02/14/2025 |
129,500 |
107,207 |
11,792 |
0 |
11,792 |
||
|
2024 |
02/13/2024 |
126,000 |
102,102 |
11,230 |
0 |
11,230 |
||
|
2023 |
02/14/2023 |
118,000 |
97,240 |
10,696 |
0 |
10,696 |
||
|
2022 |
03/15/2022 |
104,000 |
92,610 |
10,187 |
0 |
10,187 |
||
| Property Building Permit History | |||||||||||
|---|---|---|---|---|---|---|---|---|---|---|---|
| Issued | Permit # | Provided by | Bldg # | Description | Est Construction Cost | Status | |||||
| No Building Permit records returned. | |||||||||||
| Click button on building number to access detailed information: | ||||||
|---|---|---|---|---|---|---|
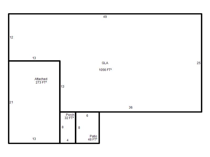
| Bldg # | Vacant/Improved Land | Bldg Description | Year Built | SqFt | # Stories | |
|
1 |
Improved |
Ranch 1 Story |
1956 |
1,056 |
1 Stories |
|