|
|
|
| Larry Stein Oklahoma County Assessor (405) 713-1200 - Public Access System |
|
|
|
|
|
|
| Real Property Display - Screen Produced 4/4/2026 5:58:21 AM | ||||
|---|---|---|---|---|
| Account: R120371230 | Type: Residential | Location: |
1708 LIONSGATE CIR |
|
| Building Name/Occupant: |
|
BETHANY |
||
| Owner Name 1: | CARTER JUSTIN |
Parcel PIN#: |
2912-12-037-1230 |
|
| Owner Name 2: | 1/4 section #: |
2912 |
||
| Owner Name 3: | Parent Acct: |
|
||
| Billing Address: | 1708 LIONSGATE CIR | Tax District: |
|
|
| City, State, Zip | BETHANY, OK 73008 | School System: |
Putnam City #1 |
|
|
Country: (If noted) |
Land Size: |
0.0833 Acres |
||
|
Land Value: 19,586 |
|
|||
|
Sect 28-T12N-R4W Qtr NW |
LIONSGATE
Block
001
Lot
024
|
|||
| Full Legal Description: LIONSGATE 001 024 |
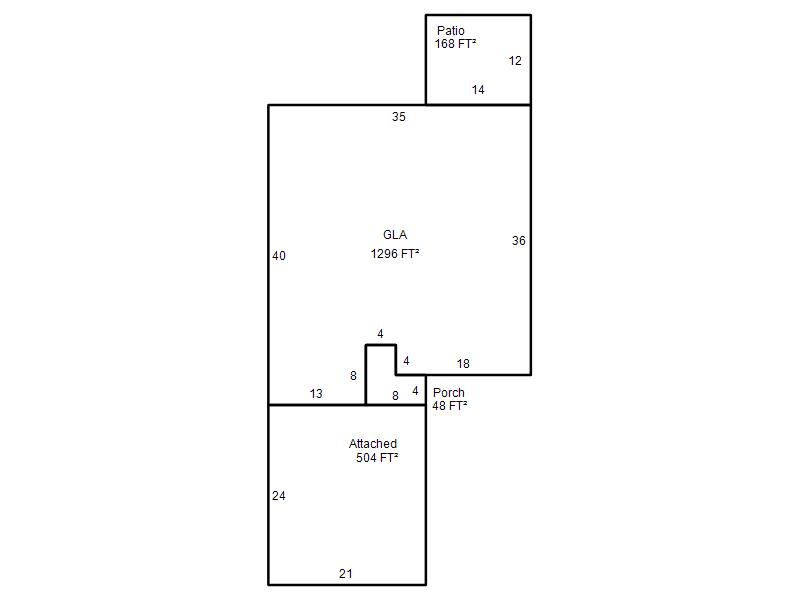
| Photo & Sketch (if available) | Comp Sales (ordered by relevancy) |
|
||||||||||||||||||
|
||||||||||||||||||||
| Value History (*The County Treasurer 405-713-1300 posts & collects actual tax amounts. Contact information HERE) | |||||||||||||
|---|---|---|---|---|---|---|---|---|---|---|---|---|---|
| Year | Market Value | Taxable Mkt Value | Gross Assessed | Exemption | Net Assessed | Millage | Est. Tax | Tax Savings | |||||
|
2026 |
160,500 |
148,747 |
16,362 |
0 |
16,362 |
122.14 |
$1,998 |
$158 |
|||||
|
2025 |
159,000 |
141,664 |
15,583 |
0 |
15,583 |
122.14 |
$1,903 |
$233 |
|||||
|
2024 |
165,500 |
134,919 |
14,840 |
0 |
14,840 |
120.52 |
$1,789 |
$405 |
|||||
|
2023 |
156,500 |
128,495 |
14,134 |
0 |
14,134 |
123.06 |
$1,739 |
$379 |
|||||
|
2022 |
138,500 |
122,377 |
13,461 |
0 |
13,461 |
112.54 |
$1,515 |
$200 |
|||||
| Property Account Status/Adjustments/Exemptions | ||
|---|---|---|
| Account # | Exemption Description | Amount |
|
R120371230 |
5% Capped Account |
0 |
| Property Deed Transaction History (Recorded in the County Clerk's Office) | ||||||||||
|---|---|---|---|---|---|---|---|---|---|---|
| Date | Type | Book | Page | Price | Grantor | Grantee | ||||
|
11/18/2019 |
|
Deeds |
$114,500 |
PETTY RANDY |
CARTER JUSTIN |
|||||
|
9/2/2016 |
|
Deeds |
$100,000 |
WSW ENTERPRISES LLC |
PETTY RANDY |
|||||
|
4/22/2008 |
|
Hmstd Off & |
$0 |
WSW ENTERPRISES INC |
WSW ENTERPRISES LLC |
|||||
|
6/27/2006 |
|
Deeds |
$89,500 |
HINSON VICENT MILO |
WSW ENTERPRISES INC |
|||||
|
6/18/2003 |
|
Deeds |
$0 |
HINSON JESSIE MAE |
HINSON VINCENT MILO |
|||||
| Last Mailed Notice of Value (N.O.V.) Information/History | ||||||||
|---|---|---|---|---|---|---|---|---|
| Year | Date | Market Value | Taxable Market Value | Gross Assessed | Exemption | Net Assessed | ||
|
2026 |
02/23/2026 |
160,500 |
148,747 |
16,362 |
0 |
16,362 |
||
|
2025 |
02/14/2025 |
159,000 |
141,664 |
15,583 |
0 |
15,583 |
||
|
2024 |
02/13/2024 |
165,500 |
134,919 |
14,840 |
0 |
14,840 |
||
|
2023 |
02/14/2023 |
156,500 |
128,495 |
14,134 |
0 |
14,134 |
||
|
2022 |
03/15/2022 |
138,500 |
122,377 |
13,461 |
0 |
13,461 |
||
| Property Building Permit History | |||||||||||
|---|---|---|---|---|---|---|---|---|---|---|---|
| Issued | Permit # | Provided by | Bldg # | Description | Est Construction Cost | Status | |||||
| No Building Permit records returned. | |||||||||||
| Click button on building number to access detailed information: | ||||||
|---|---|---|---|---|---|---|
| Bldg # | Vacant/Improved Land | Bldg Description | Year Built | SqFt | # Stories | |
|
1 |
Improved |
Ranch 1 Story |
1982 |
1,296 |
1 Stories |
|