|
|
|
| Larry Stein Oklahoma County Assessor (405) 713-1200 - Public Access System |
|
|
|
|
|
|
| Real Property Display - Screen Produced 4/2/2026 7:19:12 PM | ||||
|---|---|---|---|---|
| Account: R175721000 | Type: Residential | Location: |
6700 NW 19TH ST |
|
| Building Name/Occupant: |
|
BETHANY |
||
| Owner Name 1: | WESLEY REGINALD |
Parcel PIN#: |
2912-17-572-1000 |
|
| Owner Name 2: | 1/4 section #: |
2912 |
||
| Owner Name 3: | Parent Acct: |
|
||
| Billing Address: | 6700 NW 19TH ST | Tax District: |
|
|
| City, State, Zip | BETHANY, OK 73008-5907 | School System: |
Putnam City #1 |
|
|
Country: (If noted) |
Land Size: |
0.1978 Acres |
||
|
Land Value: 30,580 |
|
|||
|
Sect 28-T12N-R4W Qtr NW |
BRENTMARK VII
Block
001
Lot
001
|
|||
| Full Legal Description: BRENTMARK VII 001 001 |
| Photo & Sketch (if available) | Comp Sales (ordered by relevancy) |
|
||||||||||||||||||
|
||||||||||||||||||||
| Value History (*The County Treasurer 405-713-1300 posts & collects actual tax amounts. Contact information HERE) | |||||||||||||
|---|---|---|---|---|---|---|---|---|---|---|---|---|---|
| Year | Market Value | Taxable Mkt Value | Gross Assessed | Exemption | Net Assessed | Millage | Est. Tax | Tax Savings | |||||
|
2026 |
182,000 |
144,248 |
15,867 |
1,000 |
14,867 |
122.14 |
$1,816 |
$629 |
|||||
|
2025 |
181,000 |
140,047 |
15,404 |
1,000 |
14,404 |
122.14 |
$1,759 |
$672 |
|||||
|
2024 |
192,000 |
135,968 |
14,955 |
1,000 |
13,955 |
120.52 |
$1,682 |
$863 |
|||||
|
2023 |
182,500 |
132,008 |
14,520 |
1,000 |
13,520 |
123.06 |
$1,664 |
$807 |
|||||
|
2022 |
161,000 |
128,164 |
14,096 |
1,000 |
13,096 |
112.54 |
$1,474 |
$519 |
|||||
| Property Account Status/Adjustments/Exemptions | ||
|---|---|---|
| Account # | Exemption Description | Amount |
|
R175721000 |
3% Cap Homestead |
0 |
|
R175721000 |
Homestead |
1,000 |
| Property Deed Transaction History (Recorded in the County Clerk's Office) | ||||||||||
|---|---|---|---|---|---|---|---|---|---|---|
| Date | Type | Book | Page | Price | Grantor | Grantee | ||||
|
3/30/2009 |
|
Deeds |
$104,500 |
BELINDA GRAY & ASSOCIATES LLC |
WESLEY REGINALD |
|||||
|
10/14/2008 |
|
Hmstd Off & |
$0 |
GRAY BELINDA |
BELINDA GRAY & ASSOCIATES LLC |
|||||
|
10/8/2008 |
|
Deeds |
$76,000 |
DEUTSCHE BANK NATIONAL TRUST CO AS TRS |
GRAY BELINDA |
|||||
|
1/4/2008 |
|
Hmstd Off & |
$0 |
FAWCETT CHARLES W & JACQUELINE S |
DEUTSCHE BANK NATIONAL TRUST CO AS TRS |
|||||
|
6/1/2004 |
|
Deeds |
$89,000 |
MCDONALD GORDON W & STACY R |
FAWCETT CHARLES W & JACQUELINE S |
|||||
| Last Mailed Notice of Value (N.O.V.) Information/History | ||||||||
|---|---|---|---|---|---|---|---|---|
| Year | Date | Market Value | Taxable Market Value | Gross Assessed | Exemption | Net Assessed | ||
|
2026 |
02/23/2026 |
182,000 |
144,248 |
15,867 |
1,000 |
14,867 |
||
|
2025 |
02/14/2025 |
181,000 |
140,047 |
15,404 |
1,000 |
14,404 |
||
|
2024 |
02/13/2024 |
192,000 |
135,968 |
14,955 |
1,000 |
13,955 |
||
|
2023 |
02/14/2023 |
182,500 |
132,008 |
14,520 |
1,000 |
13,520 |
||
|
2022 |
03/15/2022 |
161,000 |
128,164 |
14,096 |
1,000 |
13,096 |
||
| Property Building Permit History | |||||||||||
|---|---|---|---|---|---|---|---|---|---|---|---|
| Issued | Permit # | Provided by | Bldg # | Description | Est Construction Cost | Status | |||||
| No Building Permit records returned. | |||||||||||
| Click button on building number to access detailed information: | ||||||
|---|---|---|---|---|---|---|
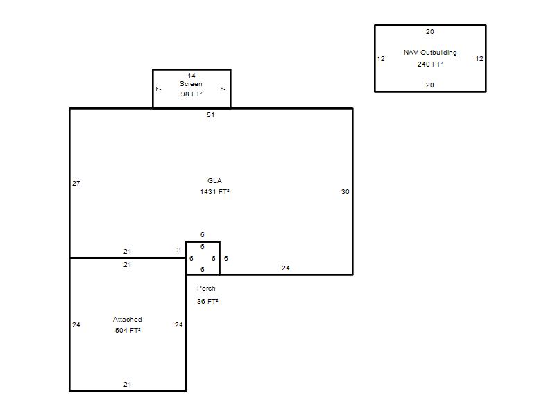
| Bldg # | Vacant/Improved Land | Bldg Description | Year Built | SqFt | # Stories | |
|
1 |
Improved |
Ranch 1 Story |
1982 |
1,431 |
1 Stories |
|