|
|
|
| Larry Stein Oklahoma County Assessor (405) 713-1200 - Public Access System |
|
|
|
|
|
|
| Real Property Display - Screen Produced 3/23/2026 1:15:13 PM | ||||
|---|---|---|---|---|
| Account: R153181045 | Type: Residential | Location: |
3129 DELMAR RD |
|
| Building Name/Occupant: |
|
DEL CITY |
||
| Owner Name 1: | MILES EDDIE JOE & SANDRA JOY |
Parcel PIN#: |
1423-15-318-1045 |
|
| Owner Name 2: | 1/4 section #: |
1423 |
||
| Owner Name 3: | Parent Acct: |
|
||
| Billing Address: | 3129 DELMAR RD | Tax District: |
|
|
| City, State, Zip | DEL CITY, OK 73115-1103 | School System: |
Mid-Del #52 |
|
|
Country: (If noted) |
Land Size: |
0.1598 Acres |
||
|
Land Value: 24,012 |
|
|||
|
Sect 6-T11N-R2W Qtr SW |
DEL RANCHO 4TH ADDITION
Block
001
Lot
005
|
|||
| Full Legal Description: DEL RANCHO 4TH ADDITION 001 005 |
| Photo & Sketch (if available) | Comp Sales (ordered by relevancy) |
|
||||||||||||||||||
|
||||||||||||||||||||
| Value History (*The County Treasurer 405-713-1300 posts & collects actual tax amounts. Contact information HERE) | |||||||||||||
|---|---|---|---|---|---|---|---|---|---|---|---|---|---|
| Year | Market Value | Taxable Mkt Value | Gross Assessed | Exemption | Net Assessed | Millage | Est. Tax | Tax Savings | |||||
|
2025 |
112,500 |
101,430 |
11,157 |
0 |
11,157 |
114.72 |
$1,280 |
$140 |
|||||
|
2024 |
105,000 |
96,600 |
10,626 |
0 |
10,626 |
117.21 |
$1,245 |
$108 |
|||||
|
2023 |
92,000 |
92,000 |
10,120 |
0 |
10,120 |
112.46 |
$1,138 |
$0 |
|||||
|
2022 |
83,000 |
67,897 |
7,468 |
1,000 |
6,468 |
110.76 |
$716 |
$295 |
|||||
|
2021 |
70,500 |
65,920 |
7,251 |
1,000 |
6,251 |
114.70 |
$717 |
$172 |
|||||
| Property Account Status/Adjustments/Exemptions | ||
|---|---|---|
| Account # | Exemption Description | Amount |
|
R153181045 |
5% Capped Account |
0 |
| Property Deed Transaction History (Recorded in the County Clerk's Office) | ||||||||||
|---|---|---|---|---|---|---|---|---|---|---|
| Date | Type | Book | Page | Price | Grantor | Grantee | ||||
|
3/5/2026 |
|
Deeds |
$137,000 |
AXTON DAVID & REBECKA |
MILES EDDIE JOE & SANDRA JOY |
|||||
|
6/9/2022 |
|
Deeds |
$50,000 |
ROBBINS PAUL S & SHERRI L CO TRS |
AXTON DAVID & REBECKA |
|||||
|
6/7/2022 |
|
Deeds |
$0 |
ROBBINS PAUL S |
ROBBINS PAUL S & SHERRI L CO TRS |
|||||
|
7/18/2014 |
|
Deeds |
$0 |
ROBBINS SCOTT |
ROBBINS PAUL S CO TRS |
|||||
|
5/1/2009 |
|
Deeds |
$57,000 |
MCLAREN RODDIE M & SHERRY L |
ROBBINS SCOTT |
|||||
| Last Mailed Notice of Value (N.O.V.) Information/History | ||||||||
|---|---|---|---|---|---|---|---|---|
| Year | Date | Market Value | Taxable Market Value | Gross Assessed | Exemption | Net Assessed | ||
|
2026 |
02/06/2026 |
114,000 |
106,501 |
11,714 |
0 |
11,714 |
||
|
2025 |
01/31/2025 |
112,500 |
101,430 |
11,157 |
0 |
11,157 |
||
|
2024 |
01/22/2024 |
105,000 |
96,600 |
10,626 |
0 |
10,626 |
||
|
2023 |
01/23/2023 |
92,000 |
92,000 |
10,120 |
0 |
10,120 |
||
|
2022 |
02/22/2022 |
83,000 |
67,897 |
7,468 |
1,000 |
6,468 |
||
| Property Building Permit History | |||||||||||
|---|---|---|---|---|---|---|---|---|---|---|---|
| Issued | Permit # | Provided by | Bldg # | Description | Est Construction Cost | Status | |||||
| No Building Permit records returned. | |||||||||||
| Click button on building number to access detailed information: | ||||||
|---|---|---|---|---|---|---|
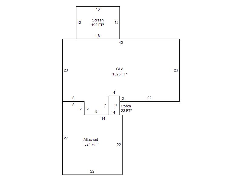
| Bldg # | Vacant/Improved Land | Bldg Description | Year Built | SqFt | # Stories | |
|
1 |
Improved |
Ranch 1 Story |
1962 |
1,026 |
1 Stories |
|