|
|
|
| Larry Stein Oklahoma County Assessor (405) 713-1200 - Public Access System |
|
|
|
|
|
|
| Real Property Display - Screen Produced 3/16/2026 7:44:06 AM | ||||
|---|---|---|---|---|
| Account: R120181030 | Type: Residential | Location: |
7917 NW 14TH ST |
|
| Building Name/Occupant: |
|
OKLAHOMA CITY |
||
| Owner Name 1: | VALLEJOS LAWRENCE E JR |
Parcel PIN#: |
2915-12-018-1030 |
|
| Owner Name 2: | VALLEJOS MIRIAM | 1/4 section #: |
2915 |
|
| Owner Name 3: | Parent Acct: |
|
||
| Billing Address: | 7917 NW 14TH ST | Tax District: |
|
|
| City, State, Zip | OKLAHOMA CITY, OK 73127-3138 | School System: |
Putnam City #1 |
|
|
Country: (If noted) |
Land Size: |
0.1860 Acres |
||
|
Land Value: 18,630 |
|
|||
|
Sect 29-T12N-R4W Qtr SW |
SANDY HILLS ESTATES
Block
001
Lot
000
|
|||
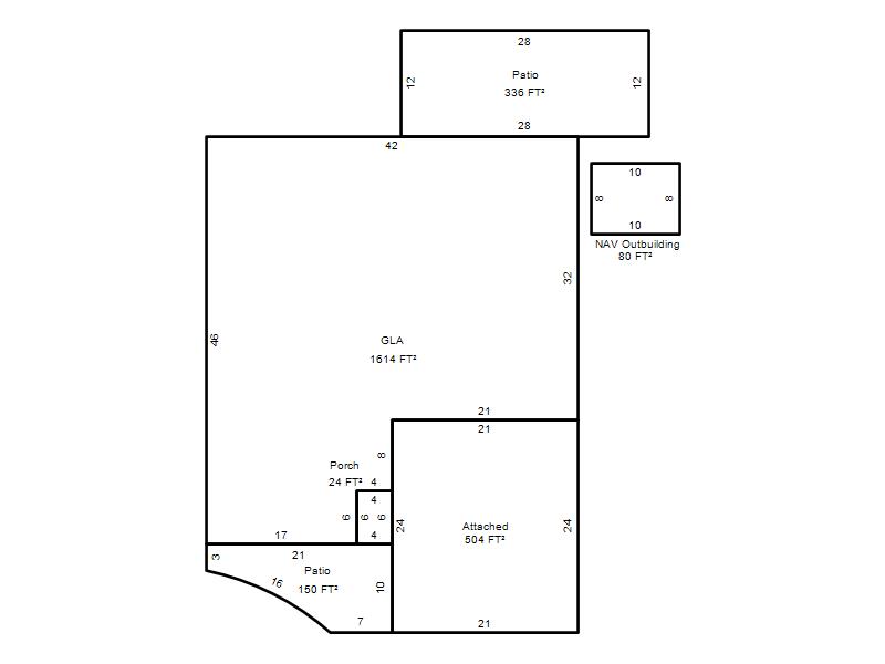
| Full Legal Description: SANDY HILLS ESTATES 001 000 E12FT LOT 3 & W48FT OF LOT 4 |
| Photo & Sketch (if available) | Comp Sales (ordered by relevancy) |
|
||||||||||||||||||
|
||||||||||||||||||||
| Value History (*The County Treasurer 405-713-1300 posts & collects actual tax amounts. Contact information HERE) | |||||||||||||
|---|---|---|---|---|---|---|---|---|---|---|---|---|---|
| Year | Market Value | Taxable Mkt Value | Gross Assessed | Exemption | Net Assessed | Millage | Est. Tax | Tax Savings | |||||
|
2025 |
236,500 |
180,909 |
19,899 |
0 |
19,899 |
123.17 |
$2,451 |
$753 |
|||||
|
2024 |
232,000 |
172,295 |
18,952 |
0 |
18,952 |
122.30 |
$2,318 |
$803 |
|||||
|
2023 |
220,500 |
164,091 |
18,049 |
0 |
18,049 |
121.91 |
$2,200 |
$756 |
|||||
|
2022 |
194,000 |
156,278 |
17,189 |
0 |
17,189 |
123.41 |
$2,121 |
$512 |
|||||
|
2021 |
165,500 |
148,837 |
16,371 |
0 |
16,371 |
122.23 |
$2,001 |
$224 |
|||||
| Property Account Status/Adjustments/Exemptions | ||
|---|---|---|
| Account # | Exemption Description | Amount |
|
R120181030 |
5% Capped Account |
0 |
| Property Deed Transaction History (Recorded in the County Clerk's Office) | |||||||
|---|---|---|---|---|---|---|---|
| Date | Type | Book | Page | Price | Grantor | Grantee | |
|
9/28/2017 |
|
Deeds |
$130,000 |
JOHNSON BRUCE R JR & JAMI |
VALLEJOS LAWRENCE E JR |
||
|
2/22/2013 |
|
Deeds |
$130,000 |
CHOWNING SADONA LYNN |
JOHNSON BRUCE R JR & JAMI |
||
|
10/11/1994 |
|
Historical |
$0 |
CHOWNING A. NEAL & S. LYNN |
CHOWNING SADONA LYNN |
||
|
9/15/1986 |
|
Historical |
$66,150 |
ADMR OF VETERANS AFFAIRS |
CHOWNING A. NEAL & S. LYNN |
||
|
11/1/1985 |
|
Historical |
$0 |
|
ADMR OF VETERANS AFFAIRS |
||
| Last Mailed Notice of Value (N.O.V.) Information/History | ||||||||
|---|---|---|---|---|---|---|---|---|
| Year | Date | Market Value | Taxable Market Value | Gross Assessed | Exemption | Net Assessed | ||
|
2026 |
02/23/2026 |
237,000 |
189,954 |
20,893 |
0 |
20,893 |
||
|
2025 |
02/14/2025 |
236,500 |
180,909 |
19,899 |
0 |
19,899 |
||
|
2024 |
02/13/2024 |
232,000 |
172,295 |
18,952 |
0 |
18,952 |
||
|
2023 |
02/14/2023 |
220,500 |
164,091 |
18,049 |
0 |
18,049 |
||
|
2022 |
03/15/2022 |
194,000 |
156,278 |
17,189 |
0 |
17,189 |
||
| Property Building Permit History | |||||||||||
|---|---|---|---|---|---|---|---|---|---|---|---|
| Issued | Permit # | Provided by | Bldg # | Description | Est Construction Cost | Status | |||||
| No Building Permit records returned. | |||||||||||
| Click button on building number to access detailed information: | ||||||
|---|---|---|---|---|---|---|
| Bldg # | Vacant/Improved Land | Bldg Description | Year Built | SqFt | # Stories | |
|
1 |
Improved |
Ranch 1 Story |
1981 |
1,614 |
1 Stories |
|