|
|
|
| Larry Stein Oklahoma County Assessor (405) 713-1200 - Public Access System |
|
|
|
|
|
|
| Real Property Display - Screen Produced 3/16/2026 12:52:47 PM | ||||
|---|---|---|---|---|
| Account: R140024000 | Type: Residential | Location: |
1313 N BROADVIEW DR |
|
| Building Name/Occupant: |
|
OKLAHOMA CITY |
||
| Owner Name 1: | ANDERSON MICHAEL |
Parcel PIN#: |
2915-14-002-4000 |
|
| Owner Name 2: | 1/4 section #: |
2915 |
||
| Owner Name 3: | Parent Acct: |
|
||
| Billing Address: | 1313 N BROADVIEW DR | Tax District: |
|
|
| City, State, Zip | OKLAHOMA CITY, OK 73127-3158 | School System: |
Putnam City #1 |
|
|
Country: (If noted) |
Land Size: |
0.2097 Acres |
||
|
Land Value: 24,208 |
|
|||
|
Sect 29-T12N-R4W Qtr SW |
RICH OAK
Block
001
Lot
004
|
|||
| Full Legal Description: RICH OAK 001 004 |
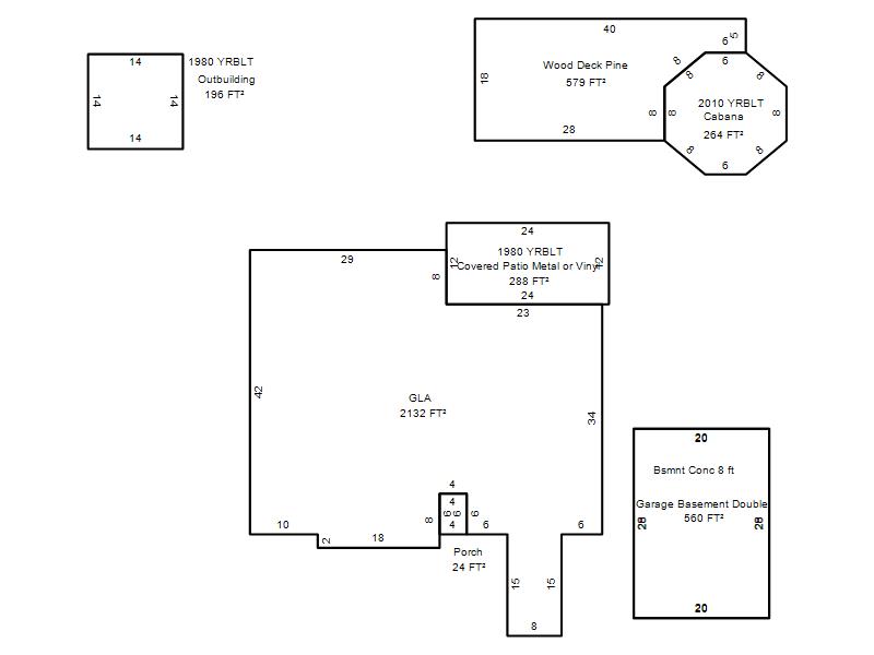
| Photo & Sketch (if available) | Comp Sales (ordered by relevancy) |
|
||||||||||||||||||
|
||||||||||||||||||||
| Value History (*The County Treasurer 405-713-1300 posts & collects actual tax amounts. Contact information HERE) | |||||||||||||
|---|---|---|---|---|---|---|---|---|---|---|---|---|---|
| Year | Market Value | Taxable Mkt Value | Gross Assessed | Exemption | Net Assessed | Millage | Est. Tax | Tax Savings | |||||
|
2025 |
296,000 |
296,000 |
32,560 |
0 |
32,560 |
123.17 |
$4,010 |
$0 |
|||||
|
2024 |
290,500 |
290,500 |
31,955 |
0 |
31,955 |
122.30 |
$3,908 |
$0 |
|||||
|
2023 |
279,500 |
229,122 |
25,203 |
0 |
25,203 |
121.91 |
$3,073 |
$676 |
|||||
|
2022 |
251,500 |
218,212 |
24,003 |
0 |
24,003 |
123.41 |
$2,962 |
$452 |
|||||
|
2021 |
217,000 |
207,821 |
22,859 |
0 |
22,859 |
122.23 |
$2,794 |
$123 |
|||||
| Property Account Status/Adjustments/Exemptions | ||
|---|---|---|
| Account # | Exemption Description | Amount |
|
R140024000 |
100% DAV Exemption |
100 |
|
R140024000 |
DAV Homestead |
0 |
| Property Deed Transaction History (Recorded in the County Clerk's Office) | ||||||||||
|---|---|---|---|---|---|---|---|---|---|---|
| Date | Type | Book | Page | Price | Grantor | Grantee | ||||
|
5/2/2025 |
|
Deeds |
$320,000 |
DUNN RYAN |
ANDERSON MICHAEL |
|||||
|
4/10/2023 |
|
Deeds |
$275,000 |
KEY ROBERT M & MICHELLE |
DUNN RYAN |
|||||
|
10/3/2016 |
|
Deeds |
$173,000 |
HENDERSON GIGET N |
KEY ROBERT M & MICHELLE |
|||||
|
5/16/2012 |
|
Deeds |
$162,500 |
COY LEAGUE HOMES INC |
HENDERSON GIGET N |
|||||
|
2/14/2012 |
|
Deeds |
$155,000 |
MARTIN ROBERT & MECHELLE |
COY LEAGUE HOMES INC |
|||||
| Last Mailed Notice of Value (N.O.V.) Information/History | ||||||||
|---|---|---|---|---|---|---|---|---|
| Year | Date | Market Value | Taxable Market Value | Gross Assessed | Exemption | Net Assessed | ||
|
2025 |
02/14/2025 |
296,000 |
296,000 |
32,560 |
0 |
32,560 |
||
|
2024 |
02/13/2024 |
290,500 |
290,500 |
31,955 |
0 |
31,955 |
||
|
2023 |
02/14/2023 |
279,500 |
229,122 |
25,203 |
0 |
25,203 |
||
|
2022 |
03/15/2022 |
251,500 |
218,212 |
24,003 |
0 |
24,003 |
||
|
2021 |
03/19/2021 |
217,000 |
207,821 |
22,860 |
0 |
22,860 |
||
| Property Building Permit History | |||||||||||
|---|---|---|---|---|---|---|---|---|---|---|---|
| Issued | Permit # | Provided by | Bldg # | Description | Est Construction Cost | Status | |||||
| No Building Permit records returned. | |||||||||||
| Click button on building number to access detailed information: | ||||||
|---|---|---|---|---|---|---|
| Bldg # | Vacant/Improved Land | Bldg Description | Year Built | SqFt | # Stories | |
|
1 |
Improved |
Ranch 1 Story |
1977 |
2,132 |
1 Stories |
|