|
|
|
| Larry Stein Oklahoma County Assessor (405) 713-1200 - Public Access System |
|
|
|
|
|
|
| Real Property Display - Screen Produced 3/23/2026 1:15:13 PM | ||||
|---|---|---|---|---|
| Account: R153182005 | Type: Residential | Location: |
832 FONTANA LN |
|
| Building Name/Occupant: |
|
DEL CITY |
||
| Owner Name 1: | FLEMING PATRICK F |
Parcel PIN#: |
1423-15-318-2005 |
|
| Owner Name 2: | ROULSTON LISA M | 1/4 section #: |
1423 |
|
| Owner Name 3: | Parent Acct: |
|
||
| Billing Address: | 832 FONTANA LN | Tax District: |
|
|
| City, State, Zip | DEL CITY, OK 73115-1336 | School System: |
Mid-Del #52 |
|
|
Country: (If noted) |
Land Size: |
0.1491 Acres |
||
|
Land Value: 22,411 |
|
|||
|
Sect 6-T11N-R2W Qtr SW |
DEL RANCHO 4TH ADDITION
Block
004
Lot
026
|
|||
| Full Legal Description: DEL RANCHO 4TH ADDITION 004 026 |
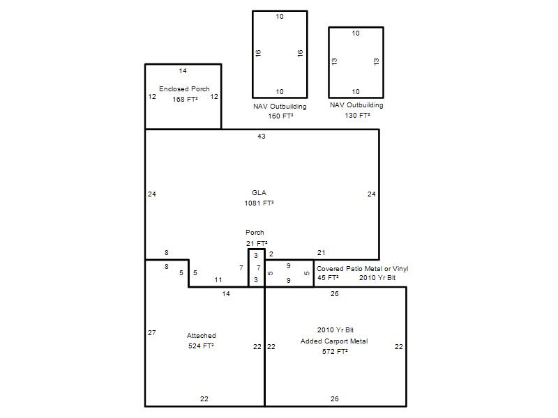
| Photo & Sketch (if available) | Comp Sales (ordered by relevancy) |
|
||||||||||||||||||
|
||||||||||||||||||||
| Value History (*The County Treasurer 405-713-1300 posts & collects actual tax amounts. Contact information HERE) | |||||||||||||
|---|---|---|---|---|---|---|---|---|---|---|---|---|---|
| Year | Market Value | Taxable Mkt Value | Gross Assessed | Exemption | Net Assessed | Millage | Est. Tax | Tax Savings | |||||
|
2025 |
127,500 |
81,147 |
8,925 |
1,000 |
7,925 |
114.72 |
$909 |
$700 |
|||||
|
2024 |
115,000 |
78,784 |
8,665 |
1,000 |
7,665 |
117.21 |
$899 |
$584 |
|||||
|
2023 |
99,500 |
76,490 |
8,413 |
1,000 |
7,413 |
112.46 |
$834 |
$397 |
|||||
|
2022 |
90,500 |
74,263 |
8,168 |
1,000 |
7,168 |
110.76 |
$794 |
$309 |
|||||
|
2021 |
77,000 |
72,100 |
7,931 |
1,000 |
6,931 |
114.70 |
$795 |
$177 |
|||||
| Property Account Status/Adjustments/Exemptions | ||
|---|---|---|
| Account # | Exemption Description | Amount |
|
R153182005 |
3% Cap Homestead |
0 |
|
R153182005 |
Homestead |
1,000 |
| Property Deed Transaction History (Recorded in the County Clerk's Office) | |||||||
|---|---|---|---|---|---|---|---|
| Date | Type | Book | Page | Price | Grantor | Grantee | |
|
5/31/1994 |
|
Historical |
$39,500 |
CLONTS MICHAEL G & KENDRA W |
FLEMING PATRICK F |
||
|
7/9/1990 |
|
Historical |
$0 |
CLONTS MICHAEL G |
CLONTS MICHAEL G & KENDRA W |
||
|
6/1/1986 |
|
Historical |
$45,000 |
|
CLONTS MICHAEL G |
||
| Last Mailed Notice of Value (N.O.V.) Information/History | ||||||||
|---|---|---|---|---|---|---|---|---|
| Year | Date | Market Value | Taxable Market Value | Gross Assessed | Exemption | Net Assessed | ||
|
2026 |
02/06/2026 |
126,000 |
83,581 |
9,193 |
1,000 |
8,193 |
||
|
2025 |
01/31/2025 |
127,500 |
81,147 |
8,925 |
1,000 |
7,925 |
||
|
2024 |
01/22/2024 |
115,000 |
78,784 |
8,665 |
1,000 |
7,665 |
||
|
2023 |
01/23/2023 |
99,500 |
76,490 |
8,413 |
1,000 |
7,413 |
||
|
2022 |
02/22/2022 |
90,500 |
74,263 |
8,168 |
1,000 |
7,168 |
||
| Property Building Permit History | |||||||||||
|---|---|---|---|---|---|---|---|---|---|---|---|
| Issued | Permit # | Provided by | Bldg # | Description | Est Construction Cost | Status | |||||
| No Building Permit records returned. | |||||||||||
| Click button on building number to access detailed information: | ||||||
|---|---|---|---|---|---|---|
| Bldg # | Vacant/Improved Land | Bldg Description | Year Built | SqFt | # Stories | |
|
1 |
Improved |
Ranch 1 Story |
1963 |
1,081 |
1 Stories |
|