|
|
|
| Larry Stein Oklahoma County Assessor (405) 713-1200 - Public Access System |
|
|
|
|
|
|
| Real Property Display - Screen Produced 3/23/2026 1:15:13 PM | ||||
|---|---|---|---|---|
| Account: R153182035 | Type: Residential | Location: |
820 FONTANA LN |
|
| Building Name/Occupant: |
|
DEL CITY |
||
| Owner Name 1: | BURTON CHARLES PATRICK & TRINA |
Parcel PIN#: |
1423-15-318-2035 |
|
| Owner Name 2: | 1/4 section #: |
1423 |
||
| Owner Name 3: | Parent Acct: |
|
||
| Billing Address: | 820 FONTANA LN | Tax District: |
|
|
| City, State, Zip | DEL CITY, OK 73115-1336 | School System: |
Mid-Del #52 |
|
|
Country: (If noted) |
Land Size: |
0.1491 Acres |
||
|
Land Value: 22,411 |
|
|||
|
Sect 6-T11N-R2W Qtr SW |
DEL RANCHO 4TH ADDITION
Block
004
Lot
029
|
|||
| Full Legal Description: DEL RANCHO 4TH ADDITION 004 029 |
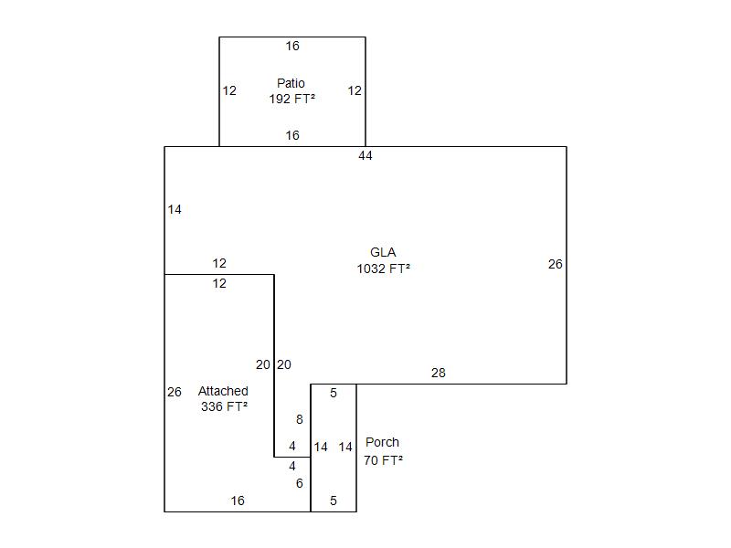
| Photo & Sketch (if available) | Comp Sales (ordered by relevancy) |
|
||||||||||||||||||
|
||||||||||||||||||||
| Value History (*The County Treasurer 405-713-1300 posts & collects actual tax amounts. Contact information HERE) | |||||||||||||
|---|---|---|---|---|---|---|---|---|---|---|---|---|---|
| Year | Market Value | Taxable Mkt Value | Gross Assessed | Exemption | Net Assessed | Millage | Est. Tax | Tax Savings | |||||
|
2025 |
123,000 |
76,510 |
8,416 |
1,000 |
7,416 |
114.72 |
$851 |
$701 |
|||||
|
2024 |
111,000 |
74,282 |
8,170 |
1,000 |
7,170 |
117.21 |
$841 |
$591 |
|||||
|
2023 |
96,000 |
72,119 |
7,933 |
1,000 |
6,933 |
112.46 |
$780 |
$408 |
|||||
|
2022 |
86,000 |
70,019 |
7,701 |
1,000 |
6,701 |
110.76 |
$742 |
$305 |
|||||
|
2021 |
72,500 |
67,980 |
7,477 |
1,000 |
6,477 |
114.70 |
$743 |
$172 |
|||||
| Property Account Status/Adjustments/Exemptions | ||
|---|---|---|
| Account # | Exemption Description | Amount |
|
R153182035 |
3% Cap Homestead |
0 |
|
R153182035 |
Homestead |
1,000 |
| Property Deed Transaction History (Recorded in the County Clerk's Office) | |||||||
|---|---|---|---|---|---|---|---|
| Date | Type | Book | Page | Price | Grantor | Grantee | |
|
8/9/2007 |
|
Deeds |
$0 |
HALSTEAD SUSAN ANNETTE HALSTEAD JIMMY C |
BURTON CHARLES PATRICK & TRINA |
||
|
8/8/2007 |
|
Deeds |
$40,000 |
BRIGHT RONNIE EUGENE |
BURTON CHARLES PATRICK & TRINA |
||
|
7/24/2007 |
|
Deeds |
$0 |
BRIGHT RONNIE EUGENE HALSTEAD SUSAN ANNETTE |
BRIGHT RONNIE EUGENE |
||
|
7/9/2007 |
|
Hmstd Off & |
$0 |
WHITT BETTY J C/O RONNIE E BRIGHT |
BRIGHT RONNIE EUGENE HALSTEAD SUSAN ANNETTE |
||
|
11/11/1911 |
|
Historical |
$0 |
|
WHITT BETTY J |
||
| Last Mailed Notice of Value (N.O.V.) Information/History | ||||||||
|---|---|---|---|---|---|---|---|---|
| Year | Date | Market Value | Taxable Market Value | Gross Assessed | Exemption | Net Assessed | ||
|
2026 |
02/06/2026 |
122,000 |
78,805 |
8,668 |
1,000 |
7,668 |
||
|
2025 |
01/31/2025 |
123,000 |
76,510 |
8,416 |
1,000 |
7,416 |
||
|
2024 |
01/22/2024 |
111,000 |
74,282 |
8,170 |
1,000 |
7,170 |
||
|
2023 |
01/23/2023 |
96,000 |
72,119 |
7,933 |
1,000 |
6,933 |
||
|
2022 |
02/22/2022 |
86,000 |
70,019 |
7,701 |
1,000 |
6,701 |
||
| Property Building Permit History | |||||||||||
|---|---|---|---|---|---|---|---|---|---|---|---|
| Issued | Permit # | Provided by | Bldg # | Description | Est Construction Cost | Status | |||||
| No Building Permit records returned. | |||||||||||
| Click button on building number to access detailed information: | ||||||
|---|---|---|---|---|---|---|
| Bldg # | Vacant/Improved Land | Bldg Description | Year Built | SqFt | # Stories | |
|
1 |
Improved |
Ranch 1 Story |
1962 |
1,032 |
1 Stories |
|