|
|
|
| Larry Stein Oklahoma County Assessor (405) 713-1200 - Public Access System |
|
|
|
|
|
|
| Real Property Display - Screen Produced 3/23/2026 1:15:13 PM | ||||
|---|---|---|---|---|
| Account: R153182185 | Type: Residential | Location: |
837 S SCOTT ST |
|
| Building Name/Occupant: |
|
DEL CITY |
||
| Owner Name 1: | PICKEL JON |
Parcel PIN#: |
1423-15-318-2185 |
|
| Owner Name 2: | WALL OLIVIA | 1/4 section #: |
1423 |
|
| Owner Name 3: | Parent Acct: |
|
||
| Billing Address: | 837 S SCOTT ST | Tax District: |
|
|
| City, State, Zip | DEL CITY, OK 73115-1344 | School System: |
Mid-Del #52 |
|
|
Country: (If noted) |
Land Size: |
0.1491 Acres |
||
|
Land Value: 22,411 |
|
|||
|
Sect 6-T11N-R2W Qtr SW |
DEL RANCHO 4TH ADDITION
Block
005
Lot
010
|
|||
| Full Legal Description: DEL RANCHO 4TH ADDITION 005 010 |
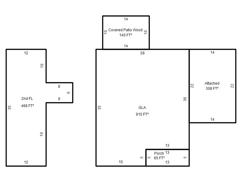
| Photo & Sketch (if available) | Comp Sales (ordered by relevancy) |
|
||||||||||||||||||
|
||||||||||||||||||||
| Value History (*The County Treasurer 405-713-1300 posts & collects actual tax amounts. Contact information HERE) | |||||||||||||
|---|---|---|---|---|---|---|---|---|---|---|---|---|---|
| Year | Market Value | Taxable Mkt Value | Gross Assessed | Exemption | Net Assessed | Millage | Est. Tax | Tax Savings | |||||
|
2025 |
160,000 |
150,675 |
16,574 |
0 |
16,574 |
114.72 |
$1,901 |
$118 |
|||||
|
2024 |
143,500 |
143,500 |
15,785 |
0 |
15,785 |
117.21 |
$1,850 |
$0 |
|||||
|
2023 |
102,500 |
102,500 |
11,275 |
0 |
11,275 |
112.46 |
$1,268 |
$0 |
|||||
|
2022 |
93,500 |
78,828 |
8,670 |
0 |
8,670 |
110.76 |
$960 |
$179 |
|||||
|
2021 |
77,000 |
75,075 |
8,258 |
0 |
8,258 |
114.70 |
$947 |
$24 |
|||||
| Property Account Status/Adjustments/Exemptions | ||
|---|---|---|
| Account # | Exemption Description | Amount |
|
R153182185 |
5% Capped Account |
0 |
| Property Deed Transaction History (Recorded in the County Clerk's Office) | |||||||
|---|---|---|---|---|---|---|---|
| Date | Type | Book | Page | Price | Grantor | Grantee | |
|
4/7/2023 |
|
Deeds |
$170,000 |
STP HOMES INC |
PICKEL JON |
||
|
6/30/2022 |
|
Mult Parcel |
$490,000 |
FARRIS RENTAL PROPERTY LLC |
STP HOMES INC |
||
|
6/8/2004 |
|
Other |
$0 |
FARRIS CARROLL D & NELL R |
FARRIS RENTAL PROPERTY LLC |
||
|
6/8/2004 |
|
Other |
$0 |
FERRIS CARROLL D & NELL |
FARRIS RENTAL PROPERTY LLC |
||
|
10/1/1983 |
|
Historical |
$0 |
|
FARRIS CARROLL D & NELL R |
||
| Last Mailed Notice of Value (N.O.V.) Information/History | ||||||||
|---|---|---|---|---|---|---|---|---|
| Year | Date | Market Value | Taxable Market Value | Gross Assessed | Exemption | Net Assessed | ||
|
2026 |
02/06/2026 |
159,500 |
158,208 |
17,402 |
0 |
17,402 |
||
|
2025 |
01/31/2025 |
160,000 |
150,675 |
16,574 |
0 |
16,574 |
||
|
2024 |
01/22/2024 |
143,500 |
143,500 |
15,785 |
0 |
15,785 |
||
|
2023 |
01/23/2023 |
102,500 |
102,500 |
11,275 |
0 |
11,275 |
||
|
2022 |
02/22/2022 |
93,500 |
78,828 |
8,670 |
0 |
8,670 |
||
| Property Building Permit History | ||||||
|---|---|---|---|---|---|---|
| Issued | Permit # | Provided by | Bldg # | Description | Est Construction Cost | Status |
|
8/13/2003 |
10281529 |
DEL CITY |
1 |
Carport |
1,000 |
Inactive |
| Click button on building number to access detailed information: | ||||||
|---|---|---|---|---|---|---|
| Bldg # | Vacant/Improved Land | Bldg Description | Year Built | SqFt | # Stories | |
|
1 |
Improved |
1½ Story Fin |
1962 |
1,383 |
1.5 Stories |
|