|
|
|
| Larry Stein Oklahoma County Assessor (405) 713-1200 - Public Access System |
|
|
|
|
|
|
| Real Property Display - Screen Produced 3/23/2026 1:15:13 PM | ||||
|---|---|---|---|---|
| Account: R153182245 | Type: Residential | Location: |
861 S SCOTT ST |
|
| Building Name/Occupant: |
|
DEL CITY |
||
| Owner Name 1: | GOOD MARK J |
Parcel PIN#: |
1423-15-318-2245 |
|
| Owner Name 2: | 1/4 section #: |
1423 |
||
| Owner Name 3: | Parent Acct: |
|
||
| Billing Address: | 861 S SCOTT ST | Tax District: |
|
|
| City, State, Zip | DEL CITY, OK 73115-1344 | School System: |
Mid-Del #52 |
|
|
Country: (If noted) |
Land Size: |
0.1491 Acres |
||
|
Land Value: 22,411 |
|
|||
|
Sect 6-T11N-R2W Qtr SW |
DEL RANCHO 4TH ADDITION
Block
005
Lot
016
|
|||
| Full Legal Description: DEL RANCHO 4TH ADDITION 005 016 |
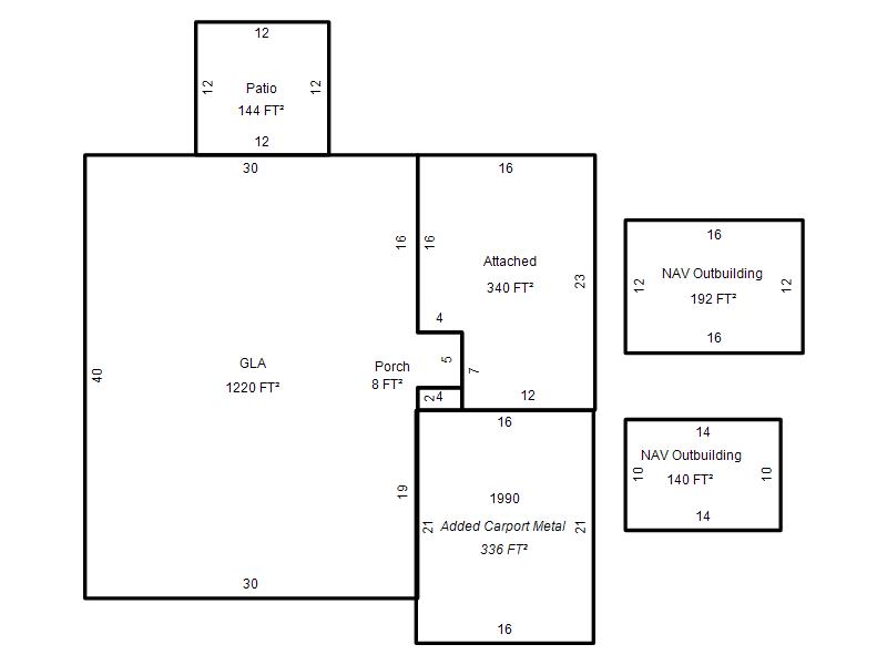
| Photo & Sketch (if available) | Comp Sales (ordered by relevancy) |
|
||||||||||||||||||
|
||||||||||||||||||||
| Value History (*The County Treasurer 405-713-1300 posts & collects actual tax amounts. Contact information HERE) | |||||||||||||
|---|---|---|---|---|---|---|---|---|---|---|---|---|---|
| Year | Market Value | Taxable Mkt Value | Gross Assessed | Exemption | Net Assessed | Millage | Est. Tax | Tax Savings | |||||
|
2025 |
130,500 |
82,886 |
9,116 |
1,000 |
8,116 |
114.72 |
$931 |
$716 |
|||||
|
2024 |
118,000 |
80,472 |
8,851 |
1,000 |
7,851 |
117.21 |
$920 |
$601 |
|||||
|
2023 |
102,500 |
78,129 |
8,593 |
1,000 |
7,593 |
112.46 |
$854 |
$414 |
|||||
|
2022 |
92,500 |
75,854 |
8,343 |
1,000 |
7,343 |
110.76 |
$813 |
$314 |
|||||
|
2021 |
78,500 |
73,645 |
8,100 |
1,000 |
7,100 |
114.70 |
$814 |
$176 |
|||||
| Property Account Status/Adjustments/Exemptions | ||
|---|---|---|
| Account # | Exemption Description | Amount |
|
R153182245 |
Homestead |
1,000 |
|
R153182245 |
3% Cap Homestead |
0 |
| Property Deed Transaction History (Recorded in the County Clerk's Office) | |||||||
|---|---|---|---|---|---|---|---|
| Date | Type | Book | Page | Price | Grantor | Grantee | |
|
9/17/1998 |
|
Historical |
$48,000 |
DOUGLAS MARCUS W |
GOOD MARK J |
||
|
9/1/1998 |
|
Historical |
$0 |
DOUGLAS MARCUS W & ANGELA M |
DOUGLAS MARCUS W |
||
|
11/4/1996 |
|
Historical |
$43,000 |
MIXAY KEUTKEO & AMONE |
DOUGLAS MARCUS W & ANGELA M |
||
|
12/1/1984 |
|
Historical |
$0 |
|
MIXAY KEUTKEO & AMONE |
||
| Last Mailed Notice of Value (N.O.V.) Information/History | ||||||||
|---|---|---|---|---|---|---|---|---|
| Year | Date | Market Value | Taxable Market Value | Gross Assessed | Exemption | Net Assessed | ||
|
2026 |
02/06/2026 |
129,000 |
85,372 |
9,390 |
1,000 |
8,390 |
||
|
2025 |
01/31/2025 |
130,500 |
82,886 |
9,116 |
1,000 |
8,116 |
||
|
2024 |
01/22/2024 |
118,000 |
80,472 |
8,851 |
1,000 |
7,851 |
||
|
2023 |
01/23/2023 |
102,500 |
78,129 |
8,593 |
1,000 |
7,593 |
||
|
2022 |
02/22/2022 |
92,500 |
75,854 |
8,343 |
1,000 |
7,343 |
||
| Property Building Permit History | |||||||||||
|---|---|---|---|---|---|---|---|---|---|---|---|
| Issued | Permit # | Provided by | Bldg # | Description | Est Construction Cost | Status | |||||
| No Building Permit records returned. | |||||||||||
| Click button on building number to access detailed information: | ||||||
|---|---|---|---|---|---|---|
| Bldg # | Vacant/Improved Land | Bldg Description | Year Built | SqFt | # Stories | |
|
1 |
Improved |
Ranch 1 Story |
1965 |
1,220 |
1 Stories |
|