|
|
|
| Larry Stein Oklahoma County Assessor (405) 713-1200 - Public Access System |
|
|
|
|
|
|
| Real Property Display - Screen Produced 4/4/2026 1:51:57 PM | ||||
|---|---|---|---|---|
| Account: R140411130 | Type: Residential | Location: |
8017 GOLDEN OAKS RD |
|
| Building Name/Occupant: |
|
OKLAHOMA CITY |
||
| Owner Name 1: | WOJTYSIAK LUCAS & CHRISTINE |
Parcel PIN#: |
2918-14-041-1130 |
|
| Owner Name 2: | 1/4 section #: |
2918 |
||
| Owner Name 3: | Parent Acct: |
|
||
| Billing Address: | 8017 GOLDEN OAKS RD | Tax District: |
|
|
| City, State, Zip | OKLAHOMA CITY, OK 73127-3034 | School System: |
Putnam City #1 |
|
|
Country: (If noted) |
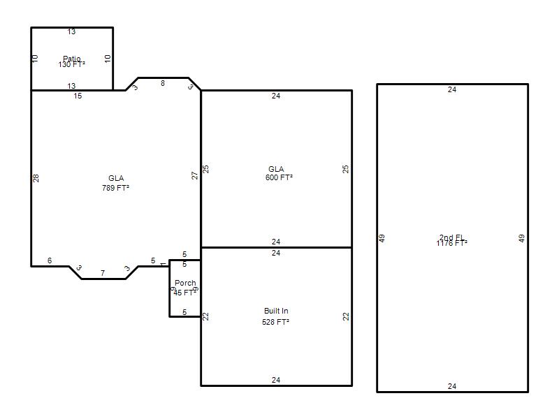
Land Size: |
0.1719 Acres |
||
|
Land Value: 29,586 |
|
|||
|
Sect 30-T12N-R4W Qtr SE |
GLEN BRIAR ESTATES
Block
001
Lot
000
|
|||
| Full Legal Description: GLEN BRIAR ESTATES 001 000 THE E60FT OF LOT 13 & THE W10FT OF LOT 14 |
| Photo & Sketch (if available) | Comp Sales (ordered by relevancy) |
|
||||||||||||||||||
|
||||||||||||||||||||
| Value History (*The County Treasurer 405-713-1300 posts & collects actual tax amounts. Contact information HERE) | |||||||||||||
|---|---|---|---|---|---|---|---|---|---|---|---|---|---|
| Year | Market Value | Taxable Mkt Value | Gross Assessed | Exemption | Net Assessed | Millage | Est. Tax | Tax Savings | |||||
|
2026 |
278,000 |
278,000 |
30,580 |
1,000 |
29,580 |
123.17 |
$3,643 |
$123 |
|||||
|
2025 |
286,000 |
286,000 |
31,460 |
0 |
31,460 |
123.17 |
$3,875 |
$0 |
|||||
|
2024 |
282,000 |
220,965 |
24,305 |
1,000 |
23,305 |
122.30 |
$2,850 |
$943 |
|||||
|
2023 |
278,000 |
214,530 |
23,598 |
1,000 |
22,598 |
121.91 |
$2,755 |
$973 |
|||||
|
2022 |
250,000 |
208,282 |
22,909 |
1,000 |
21,909 |
123.41 |
$2,704 |
$690 |
|||||
| Property Account Status/Adjustments/Exemptions | ||
|---|---|---|
| Account # | Exemption Description | Amount |
|
R140411130 |
Homestead |
1,000 |
| Property Deed Transaction History (Recorded in the County Clerk's Office) | ||||||||||
|---|---|---|---|---|---|---|---|---|---|---|
| Date | Type | Book | Page | Price | Grantor | Grantee | ||||
|
4/30/2025 |
|
Deeds |
$289,000 |
OGLE PROPERTY SOLUTIONS LLC |
WOJTYSIAK LUCAS & CHRISTINE |
|||||
|
7/26/2024 |
|
Deeds |
$120,000 |
ROOSA JAMES W |
OGLE PROPERTY SOLUTIONS LLC |
|||||
|
8/20/2003 |
|
Deeds |
$146,000 |
PRIMACY CLOSING CORP |
ROOSA JAMES W |
|||||
|
8/5/2003 |
|
|
$0 |
GROVER DEANNE GILL TERENCE A |
PRIMACY CLOSING CORP |
|||||
|
8/5/1996 |
|
Historical |
$100,000 |
SMITHSON EVERETT L & JUDY F |
GROVER DEANNE |
|||||
| Last Mailed Notice of Value (N.O.V.) Information/History | ||||||||
|---|---|---|---|---|---|---|---|---|
| Year | Date | Market Value | Taxable Market Value | Gross Assessed | Exemption | Net Assessed | ||
|
2025 |
02/14/2025 |
286,000 |
286,000 |
31,460 |
0 |
31,460 |
||
|
2024 |
02/13/2024 |
282,000 |
220,965 |
24,305 |
1,000 |
23,305 |
||
|
2023 |
02/14/2023 |
278,000 |
214,530 |
23,598 |
1,000 |
22,598 |
||
|
2022 |
03/15/2022 |
250,000 |
208,282 |
22,909 |
1,000 |
21,909 |
||
|
2021 |
03/19/2021 |
211,000 |
202,216 |
22,243 |
1,000 |
21,243 |
||
| Property Building Permit History | |||||||||||
|---|---|---|---|---|---|---|---|---|---|---|---|
| Issued | Permit # | Provided by | Bldg # | Description | Est Construction Cost | Status | |||||
| No Building Permit records returned. | |||||||||||
| Click button on building number to access detailed information: | ||||||
|---|---|---|---|---|---|---|
| Bldg # | Vacant/Improved Land | Bldg Description | Year Built | SqFt | # Stories | |
|
1 |
Improved |
Split Level |
1970 |
2,565 |
1 Stories |
|