|
|
|
| Larry Stein Oklahoma County Assessor (405) 713-1200 - Public Access System |
|
|
|
|
|
|
| Real Property Display - Screen Produced 3/23/2026 8:47:01 AM | ||||
|---|---|---|---|---|
| Account: R153211165 | Type: Residential | Location: |
3236 LONGRIDGE RD |
|
| Building Name/Occupant: |
|
DEL CITY |
||
| Owner Name 1: | EAKLY PROPERTIES LLC |
Parcel PIN#: |
1423-15-321-1165 |
|
| Owner Name 2: | 1/4 section #: |
1423 |
||
| Owner Name 3: | Parent Acct: |
|
||
| Billing Address: | PO BOX 14783 | Tax District: |
|
|
| City, State, Zip | OKLAHOMA CITY , OK 73113-0783 | School System: |
Mid-Del #52 |
|
|
Country: (If noted) |
Land Size: |
0.1521 Acres |
||
|
Land Value: 16,894 |
|
|||
|
Sect 6-T11N-R2W Qtr SW |
DEL RANCHO 3RD
Block
014
Lot
011
|
|||
| Full Legal Description: DEL RANCHO 3RD 014 011 W53FT |
| Photo & Sketch (if available) | Comp Sales (ordered by relevancy) |
|
||||||||||||||||||
|
||||||||||||||||||||
| Value History (*The County Treasurer 405-713-1300 posts & collects actual tax amounts. Contact information HERE) | |||||||||||||
|---|---|---|---|---|---|---|---|---|---|---|---|---|---|
| Year | Market Value | Taxable Mkt Value | Gross Assessed | Exemption | Net Assessed | Millage | Est. Tax | Tax Savings | |||||
|
2025 |
120,500 |
81,042 |
8,914 |
0 |
8,914 |
114.72 |
$1,023 |
$498 |
|||||
|
2024 |
107,000 |
77,183 |
8,489 |
0 |
8,489 |
117.21 |
$995 |
$384 |
|||||
|
2023 |
93,000 |
73,508 |
8,085 |
0 |
8,085 |
112.46 |
$909 |
$241 |
|||||
|
2022 |
84,500 |
70,008 |
7,700 |
0 |
7,700 |
110.76 |
$853 |
$177 |
|||||
|
2021 |
70,000 |
66,675 |
7,334 |
0 |
7,334 |
114.70 |
$841 |
$42 |
|||||
| Property Account Status/Adjustments/Exemptions | ||
|---|---|---|
| Account # | Exemption Description | Amount |
|
R153211165 |
5% Capped Account |
0 |
| Property Deed Transaction History (Recorded in the County Clerk's Office) | ||||||||||
|---|---|---|---|---|---|---|---|---|---|---|
| Date | Type | Book | Page | Price | Grantor | Grantee | ||||
|
10/24/2013 |
|
Hmstd Off & |
$0 |
WILLIAMS ISAAC A JR |
ISAAC A WILLIAMS JR LLC |
|||||
|
10/24/2013 |
|
Hmstd Off & |
$0 |
ISAAC A WILLIAMS JR LLC |
EAKLY PROPERTIES LLC |
|||||
|
1/18/2011 |
|
Deeds |
$0 |
WILLIAMS ISAAC A JR & JEANETTA J |
ISAAC A WILLIAMS JR LLC |
|||||
|
10/23/2005 |
|
Hmstd Off & |
$0 |
WILLIAMS ISAAC ALEXANDER JR |
ISAAC A WILLIAMS JR LLC |
|||||
|
4/14/2004 |
|
Other |
$0 |
WILLIAMS ISAAC A JR & JEANETTA J |
ISAAC A WILLIAMS JR LLC |
|||||
| Last Mailed Notice of Value (N.O.V.) Information/History | ||||||||
|---|---|---|---|---|---|---|---|---|
| Year | Date | Market Value | Taxable Market Value | Gross Assessed | Exemption | Net Assessed | ||
|
2026 |
02/06/2026 |
118,500 |
85,094 |
9,359 |
0 |
9,359 |
||
|
2025 |
01/31/2025 |
120,500 |
81,042 |
8,914 |
0 |
8,914 |
||
|
2024 |
01/22/2024 |
107,000 |
77,183 |
8,489 |
0 |
8,489 |
||
|
2023 |
01/23/2023 |
93,000 |
73,508 |
8,085 |
0 |
8,085 |
||
|
2022 |
02/22/2022 |
84,500 |
70,008 |
7,700 |
0 |
7,700 |
||
| Property Building Permit History | |||||||||||
|---|---|---|---|---|---|---|---|---|---|---|---|
| Issued | Permit # | Provided by | Bldg # | Description | Est Construction Cost | Status | |||||
| No Building Permit records returned. | |||||||||||
| Click button on building number to access detailed information: | ||||||
|---|---|---|---|---|---|---|
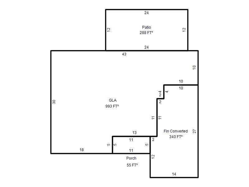
| Bldg # | Vacant/Improved Land | Bldg Description | Year Built | SqFt | # Stories | |
|
1 |
Improved |
Ranch 1 Story |
1964 |
993 |
1 Stories |
|